随着社会经济和技术的发展,人们对生活环境质量的提出了更高、更精细化的要求;社会整体建设高峰期已经过去,过去30年来建成的大量建筑物,面临着如何进一步更新优化以适应当前及未来更为个性化需求的问题。因此在新时期如何利用有效的活化新生策略,为既有建筑的创新升级注入更多活力,激发建筑空间环境深层次的潜力,使其在现实生活中发挥更积极的作用,无疑是广大建筑师面临的极为迫切的时代课题。
广东省人民医院(下文简称省医)创建于1946年,主院区位于广州市越秀区中山二路106号,医院建筑面积近23万平方米。省医餐厅楼始建于1993年,最初是作为制剂楼而设计的,2004年增加了两层半圆形的钢结构作为就餐空间,改造为餐厅楼。历经改造的餐厅楼,受原有空间结构的制约,使用中在交通组织、安全疏散、使用功能、层高限制、结构安全等方面均存在缺陷和不足,不仅影响了使用功能也影响了整体的环境质量。
2004年改造后,餐厅楼经过16年的使用,历经功能变化以及外部建筑环境的更替,其功能和空间又跟不上省医的发展需求,于是领导班子决定做一个全面的整体升级改造。我们团队在2019年5月正式接受省医餐厅楼升级改造的任务,在此之前我们已经开展了一年多的省医整体空间环境研究,以期提升省医的整体空间环境质量。研究内容包括总体功能布局的现状及优化对策、外部环境空间整体优化对策、管线系统的现状及优化对策等方面,通过全面深入了解现状,为未来的整体升级更新打下基础。
基于扎实的整体空间研究,设计团队针对省医餐厅楼改造的现状及目标,思考“建筑师能为社会做什么?”这一深刻的职业问题,以“建筑六式”为指引,回归建筑本质,提出了“弱建筑、强氛围”的活化新生策略,顺利通过方案汇报、规划审批、设计审查,最终在疫情期间施工,并于2021年12月竣工投入使用。改造后的省医餐厅楼,获得了业主、广大医护人员、前来就诊的广大病患以及家属的一致认同和高度评价。从建成的环境来看,不仅为省医职工提供了一个高品质的放松舒适的就餐环境,还为省医整体空间环境品质的提升做出了积极的贡献,也为老建筑的更新改造提供了一种有效的创新策略,体现了团队在思考“建筑如何为社会、为人创造更为有价值空间环境”方面的探索和努力(图4-图6)。设计以简约明快的建筑形象、清晰明确的技术手段,实现超越时空与场所的对话的精神性追求,以此致敬路易斯·康(Louis Isadore Kahn)一直崇尚的建筑的精神性追求。
1 场所对话、空间交融
省医的外部空间是一个有机关联的整体,其空间架构、功能布局、交通组织、景观营造、人文氛围等规划设计元素和空间体验等元素互相作用,共同形成一个省医的外部公共空间系统。由于长期渐进式的无组织更新,导致省医院的外部公共空间显得局促断裂、整体性缺失,从而渐渐失去其个性和特色,变得消极,不适应当前和未来的发展需求。
省医职工餐厅楼的更新改造是从根本上提升空间环境质量的一个重要契机,设计基于前期扎实的调研分析工作与场所对话和空间交融为目标和策略,以“建筑六式”为指引,制定出整体性的优化设计策略。设计重心不仅要处理好餐厅更新改造的内部功能、交通空间的优化提升,更要通过整体性的优化设计,提升省医外部公共空间的环境质量。建成后,省医餐厅楼不仅很好地融入了省医整体外部公共空间环境中,成为外部公共空间系统中的积极一员,更在深层次激活了整体空间活力,展现出积极的场所对话氛围,形成良好的看与被看的对话关系(图7-图9)。
通过省医餐厅楼的升级改造,以一个“弱建筑”来强化整体空间场所氛围,建筑实体退隐为外部公共空间的背景,体现出连续、延绵、渐变的建筑特质,为广大使用者提供了舒适宜人的高品质外部公共空间环境。在这里可以体验绿树清风、天光云影,感受时节变动,疗愈疲惫身心。
2 自然入境、精神栖所
在老城区高密度的老旧医院中,如何为使用者营造出一个既能适应特定功能需求、又能符合当前社会对空间环境质量日益提高的趋势,既安全高效、又舒适宜人的整体空间环境,是我一直追求的目标。在对物质空间环境提升和重建的过程中,物质性和形式感固然重要,但如何让空间超越实体呈现精神性的特质,却是我更为关注的方面。
省医场地环境中,既有建筑群以其复杂的功能和庞大的体量,构成外部空间中占据绝对优势的存在,而外部空间则被挤压成零星的片段,广场、绿地、灌木、路径等空间元素关系游离、整体破碎。经过系统研究,我发现“自然”可以作为一个有效的整合因素,藉此修复相互分离的元素。通过引入和凸显“自然”,建筑实体可以放弃空间主体的垄断地位,退而成为环境外部公共空间的一个有机组成部分,新旧建筑、树荫凉风、天光云影、四时变幻,再次成为省医外部公共空间的主角(图10),它们相得益彰、互相映衬,营造出一种亲和自然、轻松愉快的环境氛围,有效缓解了广大医护工作者、就医病患及其家属在医院环境中紧张焦虑的情绪。
面向省医内庭院的通透玻璃立面,展现出超宽广的景观视野,将室外室内外空间的时光流逝、光影变化悉数呈现,通过这个立面设计,整体空间环境体现了连续、延绵、渐变的特征(图11)。对于在此就餐的医护人员而言,这里不仅提供了一个轻松愉悦的就餐空间,更是一个可以让他感受自然、放下压力、给身体和精神充电的中转站。通过建筑的透明性,将空间内温暖轻松的氛围,传到传递到外部公共空间的每个角落,使整个医院都笼罩上一层温和而暖心的面纱(图12)。
3 社区明灯、希望之光
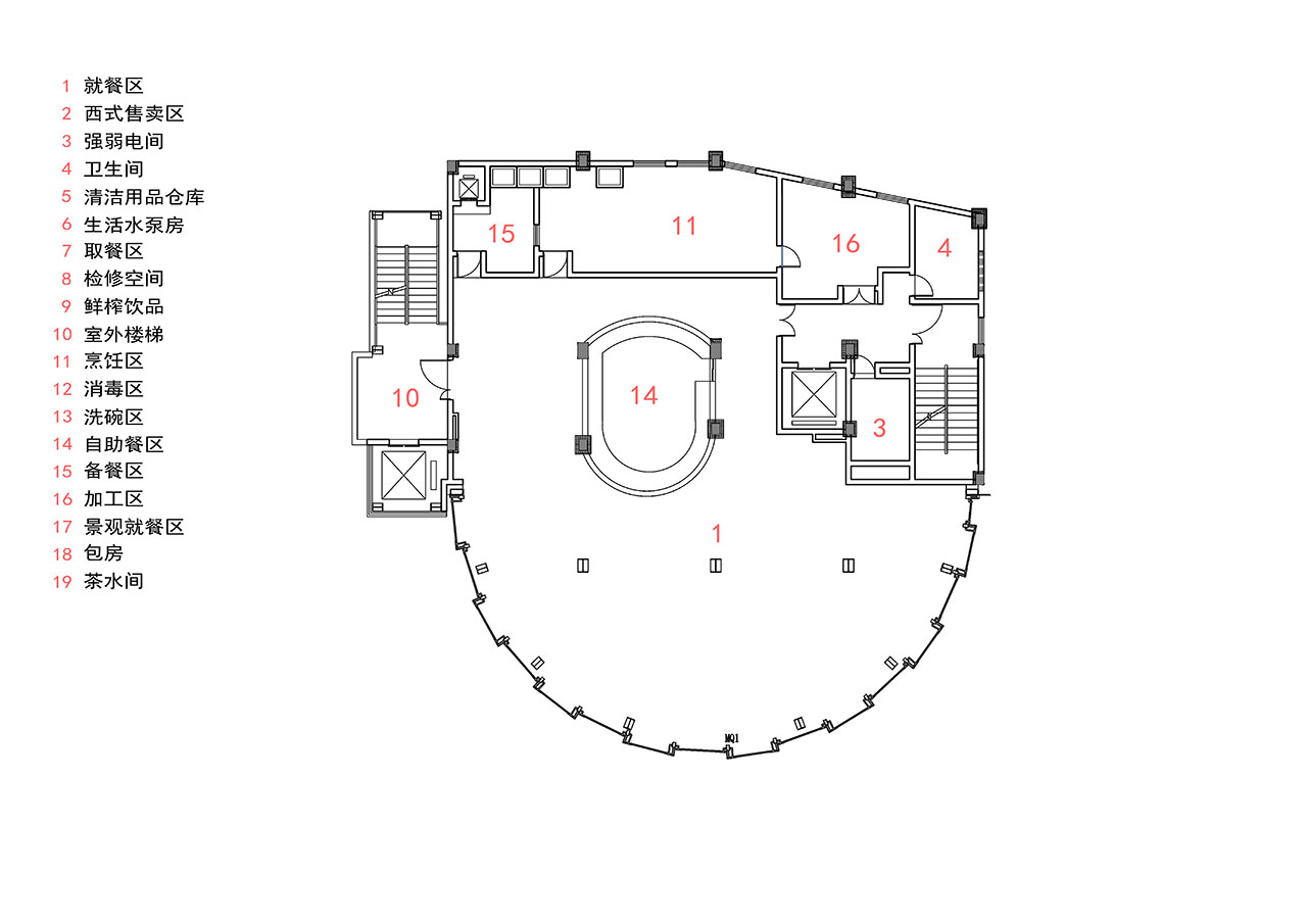
省医餐厅楼2004年的改造已经在6层主体结构的西侧,加建了一个半圆形的两层钢结构作为就餐空间的补充。但由于其原有的交通、消防、功能以及结构的缺陷等问题一直没有得到根本性的改善,因此本次改造需拆除后架的半圆形结构,将半圆形的体量改建成五层,同时增加一个疏散楼梯和观光电梯,以满足当前及未来的个性化需求。改建的五层仍采用半圆形体量,以圆润的姿态,迎接来自内庭院所有方位的视线,形成视觉焦点,同时强化整体空间连续、延绵、渐变的特征。
新加建的五层半圆形体量,采用通透玻璃的立面做法,意在凸显建筑建筑物面对内庭院的180°景观视野。经过多方案比较和多角度研究,半圆形玻璃面被分解成2.0m×4.5m的平面化矩形玻璃单元,单元之间相互错位安装,形成丰富的肌理层次。鳞次栉比的玻璃单元随着时节变换,在太阳光照和室内外灯光照明的不同条件下,呈现出极其丰富而细腻的建筑表情,展现出具有生命活力的生动形态:建筑背光时玻璃总体上呈现通透的特性,室内活动及场景氛围外溢至户外公共空间,体现出内庭院空间连续延绵的对话语境;午后阳光开始爬上玻璃,天光被不同角度的玻璃面反映出来,每块玻璃呈现出不同的光影效果,整体上看既有统一的肌理感又有戏剧性的变化张力,精彩绝伦(图13);夜幕降临,华灯初上,坚硬的玻璃褪去冰冷,化身晶莹剔透的温暖水晶,变幻出莫测的神秘特征(图14),营造出温馨轻松的环境氛围,在省医点亮了一盏希望的明灯,传达出超越物质实体的场所精神力量(图15)。
4 执器问道、追随建筑
我在拙著《建筑六式》中总结了传统经验、现代主义大师和当代多元化建筑的创作案例及其启示,提出了“连续、延绵、渐变、抽象、时节、流动”六种创作手法和技巧,用以指导建筑创作实践;省医餐厅楼改造以“建筑六式”为指引,在功能优化、交通整合、结构完善、空间营造、造型设计等方面进行了全方位的尝试和探索。设计于1992年的制剂楼是全手工绘制的施工图,设计图纸结构清晰、逻辑严密。这个老建筑经过近30年的使用,在结构安全、抗震性能方面均不能满足当前和未来的需求,因此在改造设计的过程中对建筑主体结构进行了安全鉴定,然后结合功能需求对梁、板、柱进行了全方位的加固改造;改造后的餐厅楼引入咖啡室和花店,同时在不同楼设置的自选餐厅、自助餐厅、点菜餐厅、包间等各种类型的餐饮服务,为全体职工提供了一个安全、卫生、高效、舒适的就餐休息场所;另外通过双层中空玻璃的运用,使建筑物在满足绿色节能要求的前提下,尽可能降低空调能耗。建成后的环境氛围是宜人舒适的;同时通过交通体系的完善,补充了观光梯和消防疏散梯,增加安全性和便利性;以上具体措施是形而下的“器”。藉由“器”,我们呈现出“建筑的全貌”。
建筑是物质性和精神性的统一体,其中物质性是相对显性的元素,往往通过造型、功能、空间、结构等方面呈现出来,是相对容易学习和掌握的内容,也是建筑最基本的属性。好的建筑往往通过恰当的设计技巧呈现出良好的物质性特征;同时通过物质性的充分展示,将人的主观体验、精神性感受很好地体现出来;因而建筑的物质性是通向精神性的必要媒介。建筑的精神性虽由建筑物质性传递出来,但人的体验感受才是建筑精神性得以体现的途径,也就是说没有人就没有建筑的精神性。我们用“建筑六式”这些技术措施和手段去实现省医餐厅楼的存量优化和整体品质提升,最主要的目的是希望通过空间环境的优化提升,探讨形而上的“建筑之道”——既精神性的提炼与表达。于是很有意思地,我们的关注点又重新回到“人”这个层面上来。
在当前和未来很长一段时间内,社会发展要求我们将更加注重城市内部空间的精细化利用、全面提升建筑空间的环境品质。通过藉由形而下的“器”,凸显建筑空间环境的精神性,让人们更容易体会到美好的生活空间环境所营造出来的意境。对于省医省餐厅楼更新改造而言,我们意图传达的精神性是安全、便利、舒适、温暖的空间体验,感受像“家”一样轻松、舒适的就医及工作环境氛围,而“连续、延绵、渐变、抽象、时节、流动”这“建筑六式”就是帮助我们实现这个目标的有效途径。这就是我所要阐述的所谓“建筑的全貌”。在这个认知体系内,建筑物质性、使用主体(人)、建筑精神性,三者是相互成就的关系,它们共同作用下呈现出建筑更为全面的整体面貌。这种认知更加贴合路易斯·康建筑精神性的终极目标,因此我把建筑看成是一种认识世界、表达思想的媒介,是值得为之奉献一生的道路。省医餐厅楼改造就是这样一个有意思的探索的开始,它似乎为我打开了一扇门,让我看到我原本认知系统之外的更多可能性。
项目名称:广东省人民医院餐厅楼改造
项目地址:广州市越秀区中山二路106号
用地面积:528平方米
建筑面积:2518平方米
业主:广东省人民医院
项目类型:教育建筑
设 计 方:华南理工大学建筑设计研究院有限公司
设计年份:2019年12月~2020年5月
完成年份:2021年12月
项目负责人及主创:陈文东——华南理工大学建筑设计研究院有限公司 二院副院长,建筑学博士(师从何镜堂院士,2008年博士毕业),高级工程师,硕导,主攻城市大型公共建筑、医疗建筑、校园规划及其建筑设计等,2023年出版专著《建筑六式》,中国建筑工业出版社,2024天河体育中心花市牌楼主创
团队:陈文东、陈承邦、佘万里、刘洪文、翁鑫威、劳晓杰、周颖彬、郑洋、李耿吉、郑景富、李慧雯等
业 主 方 广东省人民医院
施 工 方 广东建雅室内工程设计施工有限公司
摄影版权:诺金浮图摄影工作室徐勉

一横一竖设计

北京对角线设计

不也设计工作室

纬图设计

南京拙木空间设计

星球建筑事务所

构看建筑设计

芝作室

厦门方式设计机构

線状建筑设计研究室

無界设计

南京悦设空间设计

名谷设计

浆果创意

于强室内设计师事务所

上海绿建建筑设计事务所

未已空间

朴开十向设计事务所

此西设计

甲板设计

安隆设计

苏格SG空间设计事务所

白菜设计

不止设计

如室建筑设计研究事务

维度华伍德设计

林子设计

IN·X屋里门外

无之设计

白菜设计

堺工作室

野核设计事务所

JK DESIGN STUDIO

自在生成建筑空间设计事务所

FUNUN LAB设计研究室

RooMoo

凡西空间装饰设计

MOC DESIGN OFFICE

壹壹文化

IN·X屋里门外

hhhhs studio

有七设计工作室

IN·X屋里门外

IN·X屋里门外

借光建筑空间设计

IN·X屋里门外

力场(北京)建筑设计

于市设计

芒果建筑设计

FUNUN LAB设计研究室

非木建筑

栋三尺设计

杭州澜廷设计

黑珍珠空间设计事务所

WAY Studio

拿云室内设计

Mirabeau Architecture

IN·X屋里门外

方夏设计

反正建筑事务所

杭州慢珊瑚设计