引言
帝国已经遍布城市,重压着大地和百姓,到处是拥挤繁忙的交通,到处是过多的装饰和庞大的建筑,是复杂的等级结构,于是,他梦境里出现了像风筝一样轻盈的城市。
—— Italo Calvino《看不见的城市》
背景
2000年前,中国人用竹子和丝绸制作了一个简单的结构体,第一只风筝由此诞生,这是人类有史以来第一次了解到,如何让一个结构离开地面并成功的滞空。
1885年,澳洲发明家Lawrence Hargrave发明了箱式风筝,并以此为基础,开发出了一种载人装置。
当飞机和直升机还只是幻想时,载人的风筝是人类最接近飞行梦想的东西。而如今,科技的发展并未带来人的解放,反而被重压到难以呼吸。
场地
关于纸鸢屋的畅想,开始于一片温柔的树林,这里原为农场内供游客露营的林地,草木茂盛,并没有具体的用地红线,漫是自然生长的椿树,撒下清凉,我们坐在草地上,可以听到风的声音。
现场片刻的松弛成为了笃定的愿望,我们意图建造一座如纸鸢般轻质的茶庭,最大程度的保护原始林地,任由阳光与微风穿过,并以此安抚负重的心灵。
建筑
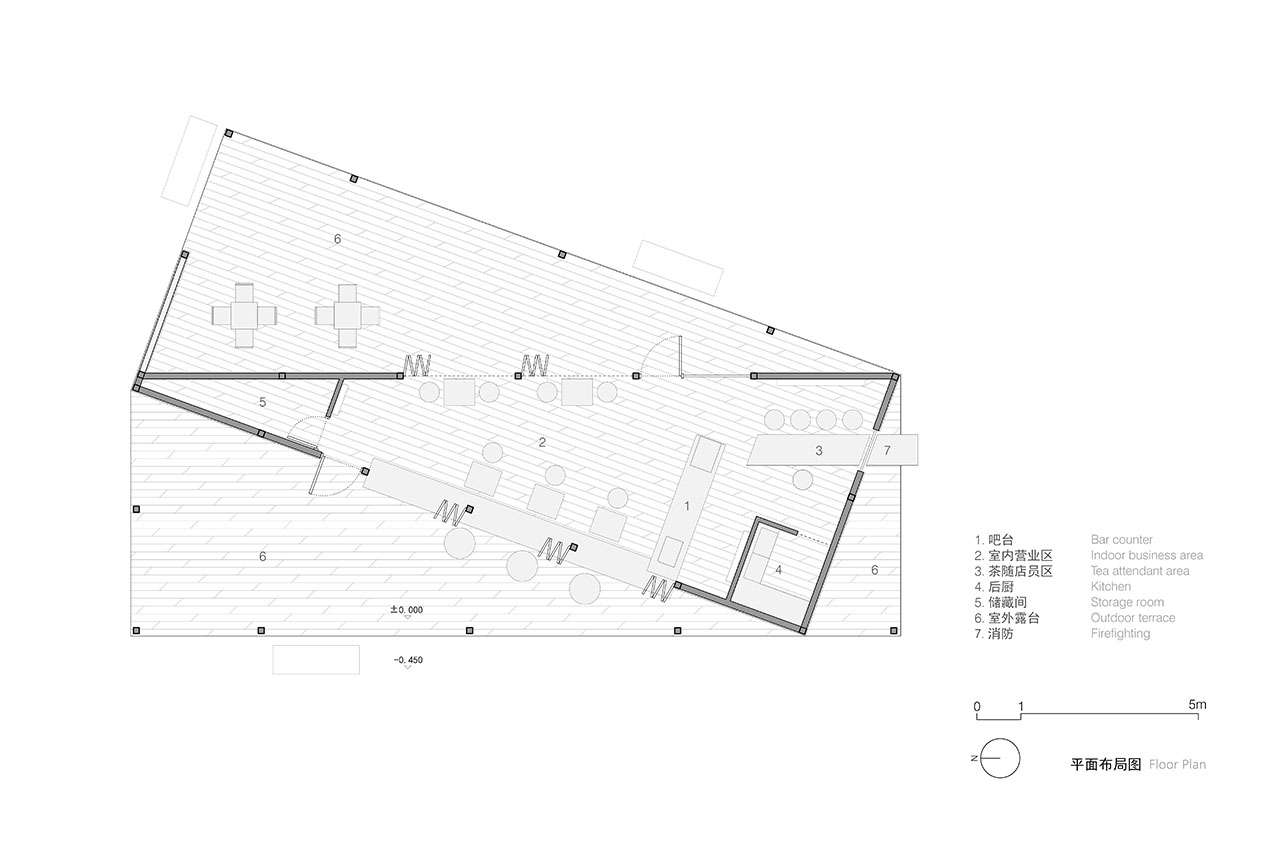
无界的场地意味着五向的观感。
面对场地,建筑与西侧道路以平行关系塑造入口空间,再旋转20度与东南侧森林景观形成互动,两个矩形的交错形成了三角形的室内空间,于是,整个建筑平面布局呈现四个不同角度的三角形,每个三角形面向不同的视野与景观,也承载着不同功能。
外围的三角形灰空间分别作为入口平台、观景平台、与展示平台,多向联系着绿意盎然的景观视野,室内的三角形空间通过切分两端的储藏间与厨房,以达到异形空间的适用。
特殊的造型逻辑使得建筑物面对不同方向呈现出各不相同的观感,北向呈现类似双坡屋顶的形式,东西向呈现水平长向的简洁造型,南向呈现具有穿插感的体量组合,屋顶更是呈现出形如纸鸢的几何构图。
延展的平台是室内外空间的过渡,营业时作为经营场所的拓展,闭店后则成为了林间小动物的庇护所。
建造与节能
温柔的草木意味着轻质的介入。
建筑采用点状基础,结合预制钢结构柱脚,将地面整体抬起,与草地形成空腔,防止湿气对建筑的侵扰,亦能最大程度的保护原始草地。木质的主体与轻薄的聚碳酸酯板围护,减少了现场施工的湿作业内容并有效缩短了工期。同时,屋顶采用双层中空屋面,在确保防水的基础上,更利用保温空腔实现了良好的节能效果。
室内
室内空间意图营造柔软细腻的“内胆”和漫无目的的宁静氛围。设计保留了暖色的木质梁柱,利用木饰面板进行脱缝填充,并以实木地板通铺室内外,形成了原始质朴的空间氛围。
家具陈设展现原始调性,以原木、烧杉木、裸色金属、草编、大地色布艺为元素进行组合。特殊的绿色桌面与茶牲板把手,作为美拉德配色的点缀,并呼应室外的自然绿意。
墙面展架同样试图表达轻薄观感,通过预制钢板结合实木抓点实现。
吧台侧面的“茶随店员”区域,长向的桌面从室内穿透落地玻璃延伸至室外,室外部分则通过镜面材质将树影与天空反射进室内,传递出“自然无界”的理念。
克制的灯光设计意图降低光线对林间鸟兽的干扰,当夜幕降临,温暖的“内胆”仿佛林间的营火。
愿景
当沉重而固拙的建筑浸嵌为城市的伤疤,囚役着疲惫不堪的人们,纸鸢屋以其轻盈的木构支撑和柔软的空腔围护,为生灵提供庇所,在敬畏自然的同时营造松弛氛围,更承载着关于自由的执着愿望。
项目名称:椿序茶庭
项目地点:西安市米禾农场
建筑面积:150㎡
设计单位:即时设计研究所(IM Design)
主持建筑师:周小富
艺术总监:傅帅
设计团队:邓若楠、王乔熙
竣工时间:2024.10
施工单位:马世忠团队
结构形式:钢木结构
材料:进口松木、聚碳酸酯板、布艺、茶甡板等
摄影:Kevin

艾洛设计

戈多设计

观筑设计

山地土壤室内设计

黄锋室内设计

杭州诺瓦空间设计

杭州慢珊瑚设计

艺合境建筑设计事务所

未来以北工作室

启仓设计

凡西空间装饰设计

Neutra Architects

介介工作室

浆果创意

西水湾路工作室

TEMP

普悦设计

善祥建筑设计

万相纳间设计

加减智库设计事务所

易禾上品设计

零墨装饰设计

华南理工大学历史环境保护更新研究所

栋三尺设计

東形西見

仝屿建筑空间设计

艾洛设计

香港郑中设计事务所

PLAT ASIA

本哲建筑

門觉建筑

风合睦晨空间设计

門觉建筑

MHD建筑事务所

mint+studio

HOOOLDESIGN事务所

徽宗设计研究室

壹所设计工作室

创境合美设计

杭州水丁集设计事务所

借光建筑空间设计

观筑设计

空舍设计

研造社

壹山设计

重庆浩丰设计机构