“学珍食堂”位于重庆渝北上域街社区之中,周围分布大量中高层居民楼,沿街开着各类独立店铺。此社区已形成较为完备的舒适生活圈。“学珍食堂”正好坐落在进入居民区前的道路转角处。希望成为当地一处不仅提供餐食更是友好而温暖的空间。
主入口一侧通过内退,创造出可全开放式的门脸。根据天气与光线情况可以灵活自由地改变空间状态。低调的招牌设置与两侧加入的公共长椅区,让其处于商业空间与公共空间的边界,以善意的设计模糊邻里与顾客的体验界限。这里既是开放式的就餐区,也是周围居民自由交流的场所。将友好性与持续性首先纳入到空间策略之中,是对当下社区商业空间兴起的真诚回应。
“学珍食堂”的原始场地是由转角两个铺面打通合成。室内室外存在一定高差,选择以“生长的屋檐”整合空间,自然地给人安全舒适感。屋檐从前至后顺势延伸,连接两块原本分离的空间,同时也向内生长连接室内与室外。
转角右侧的休息区,通过进一步退让增设出绿植区。长条型的窗户设置让空间的开放性与私密性得以平衡,给予顾客与周围居民更自由的空间选择。
夜幕下的学珍食堂,逐渐成为街区中最温暖的一角,为夜归的居民提供餐食,为寻常路过的行人提供光亮与方便。作为社区店在提供基础便利的同时,让空间治愈也成为一种可能。
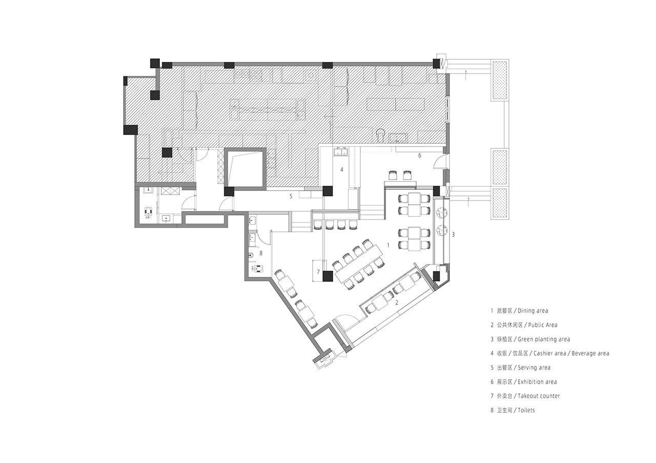
开放式的门脸区域,可以根据经营的不同场景需求,灵活自由地转化为就餐区、活动区、产品展示区等。
步入室内,利用两层高差,将就餐区进行从开放感到私密感的动静转化。为不同喜好的顾客提供不同的选择。通过置入木隔栅系统,将各功能区合理分割并形成室内的平和秩序。
内部设置了多种就坐方式:吧座单人位、对坐双人位、四人桌位、八人长桌位。以多人位为主的设置让大家能自然地产生更多交流。二层的单人位相对私密,可滑动的木窗为交流留出可能。
在空间的选材上,使用全实木的椅桌让所触皆是温和与踏实。配合天然的水洗石墙面,组合出空间整体低饱和度的色彩印象,与日常的餐食构成舒适的就餐体验。
“学珍食堂”面对社区空间营造的新一轮竞争,保持克制与善意,回归邻里社交的生活节奏。从设计到落地主张空间的友好性与持续性,是对当下社区型空间的一次真实探索与生活方式提案。
项目名称: 学珍食堂
项目地址: 重庆市渝北区上域街5号附38号
建筑面积: 110㎡
设计机构: 勉强设计事务所
主创及设计团队: 黎俊波 唐文琦 高兴 党苒
使用材料: 水洗石、 实木、 艺术漆
摄影: 日野摄影工作室

一横一竖设计

北京对角线设计

不也设计工作室

纬图设计

南京拙木空间设计

星球建筑事务所

构看建筑设计

芝作室

厦门方式设计机构

線状建筑设计研究室

無界设计

南京悦设空间设计

名谷设计

浆果创意

于强室内设计师事务所

上海绿建建筑设计事务所

未已空间

朴开十向设计事务所

此西设计

甲板设计

安隆设计

苏格SG空间设计事务所

白菜设计

不止设计

如室建筑设计研究事务

维度华伍德设计

林子设计

IN·X屋里门外

无之设计

白菜设计

堺工作室

野核设计事务所

JK DESIGN STUDIO

自在生成建筑空间设计事务所

FUNUN LAB设计研究室

RooMoo

凡西空间装饰设计

MOC DESIGN OFFICE

壹壹文化

IN·X屋里门外

hhhhs studio

有七设计工作室

IN·X屋里门外

华南理工大学建筑设计研究院

IN·X屋里门外

借光建筑空间设计

IN·X屋里门外

力场(北京)建筑设计

于市设计

芒果建筑设计

FUNUN LAB设计研究室

非木建筑

栋三尺设计

杭州澜廷设计

黑珍珠空间设计事务所

WAY Studio

拿云室内设计

Mirabeau Architecture

IN·X屋里门外

方夏设计

反正建筑事务所