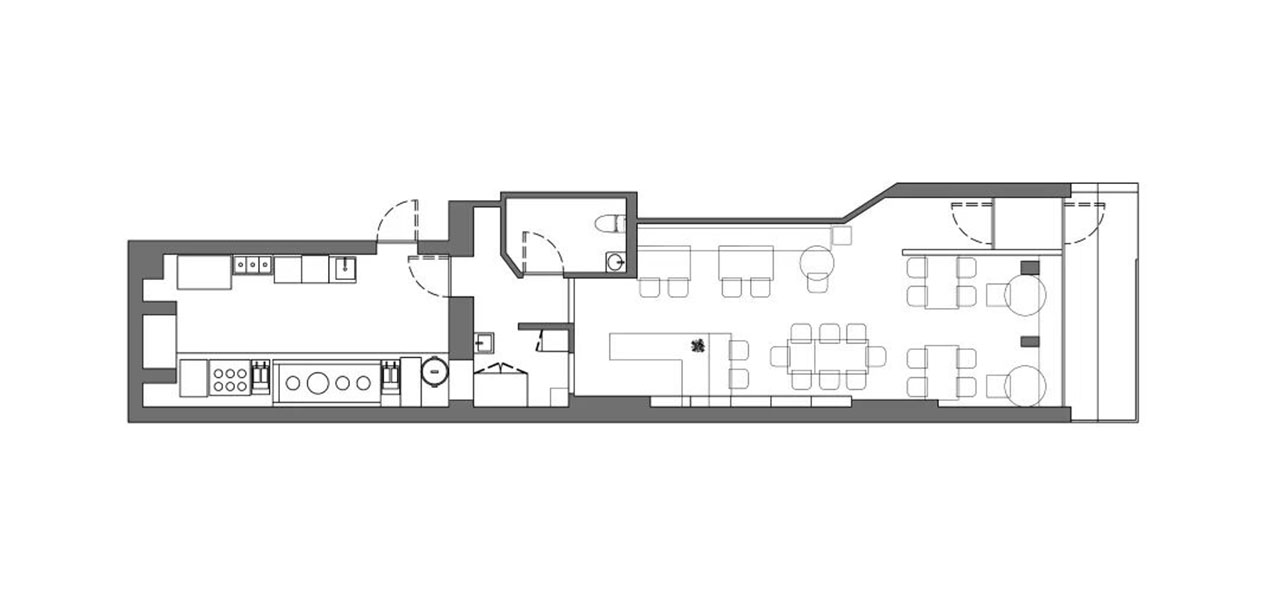
Twilight Lounge 朝暮是位于纽约的一家中餐厅,主要经营粤菜与川菜融合菜品。本次委托白菜做空间设计,希望能够打造具有品质感与轻松氛围的餐厅,输出中餐的文化。
现场位于纽约曼哈顿东城区,曾经是一家日料店,具备基础的硬装和后厨的规划,我们在原有的基础上对空间进行改造,通过棚面、地面以及墙面装饰和软装营造打造氛围。
我们对于空间的定位是输出中餐的文化以及专业度,设计提取了中餐香料作为设计线索贯穿空间,运用了中式香料的咖色系来营造整体氛围,将天地墙的色系统一。
香料是中餐调味的灵魂,也是中餐哲学的延伸,香料间的碰撞造就了中餐的多样性。我们将香料作为空间中艺术装置,在空间的一周通过画布与香料装饰空间,输出了品牌对于中餐的专业度以及追求。
我们希望空间中有中式肌理感,通过木质、布艺、褶皱、陶器纹理等等来丰富肌理,在吧台上方的棚面我们植入了中式牌匾元素,通过复杂的肌理填充顶面的场域,同时将顶面装置化。
通过空间的营造,氛围感也能够传递到消费者心中,朝暮餐厅开业后也获得了商业上的成功,我们希望这个空间能够一直输出品牌的理念,成为更多人品尝和了解中餐的场所。
项目名称:朝暮餐厅
项目地址:美国纽约
建筑面积:83平米
设计方:白菜设计
项目设计:2025
完成年份:2025
设计团队:赵凯文、王猛、刘通旭
客户:朝暮餐厅
材料:肌理漆、实木
摄影版权:朱逸真

一横一竖设计

北京对角线设计

不也设计工作室

纬图设计

南京拙木空间设计

星球建筑事务所

构看建筑设计

芝作室

厦门方式设计机构

線状建筑设计研究室

無界设计

南京悦设空间设计

名谷设计

浆果创意

于强室内设计师事务所

上海绿建建筑设计事务所

未已空间

朴开十向设计事务所

此西设计

甲板设计

安隆设计

苏格SG空间设计事务所

不止设计

如室建筑设计研究事务

维度华伍德设计

林子设计

IN·X屋里门外

无之设计

白菜设计

堺工作室

野核设计事务所

JK DESIGN STUDIO

自在生成建筑空间设计事务所

FUNUN LAB设计研究室

RooMoo

凡西空间装饰设计

MOC DESIGN OFFICE

壹壹文化

IN·X屋里门外

hhhhs studio

有七设计工作室

IN·X屋里门外

华南理工大学建筑设计研究院

IN·X屋里门外

借光建筑空间设计

IN·X屋里门外

力场(北京)建筑设计

于市设计

芒果建筑设计

FUNUN LAB设计研究室

非木建筑

栋三尺设计

杭州澜廷设计

黑珍珠空间设计事务所

WAY Studio

拿云室内设计

Mirabeau Architecture

IN·X屋里门外

方夏设计

反正建筑事务所

杭州慢珊瑚设计