在上海,生活化的街道更具有社交属性。3½的新店坐落于太原路上,对于SomeThoughts来说,这是我们明显地寻求平衡性表达的项目。在我们的想象中,3½应该具备包容性的同时又具备商业的多样性。
3½的外立面在街道拥有相当大尺度的展面,但对于材料、入口以及店招的设计,我们选择了最为克制的表达。希望将建筑隐匿于街道,以一种近乎自然的状态迎接每一位访客。
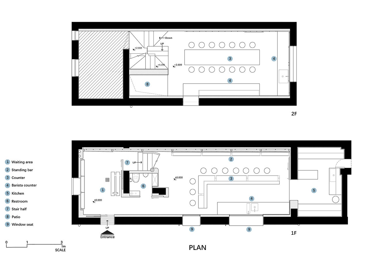
入口处的空间,我们将其设置为“稍作停顿”的状态。希望访客在产品体验之前有一个情绪的停留,并预示着接下来全新的感官体验。
所有的功能组织及动线都将围绕“对谈”而展开。L型吧台横穿整个空间,产品与服务的感官体验成为了空间探讨的主体。SomeThoughts将商业设计中对“符号性”的探索,转化为对“感官维度”的一种理解。而这便是通过设计语言的保留与行为模式的便利性来赋予的。
顺着旋梯拾级而上,二楼是功能性更复合的空间。参与其中的访客仿佛能体验到“主厨厨房”的专业性与松弛感。而这也是客观、真实的存在,因为除了日常的营业外,产品的研发、业内的分享以及不定期的活动都将在这里进行。
“有机树脂”与“玻璃纤维”反复的混合、凝固、打磨,肌理所透出的是随机而交织的状态。利用自然与人工之间的相互作用激活着自然。在改造过程中,我们目的性的对原建筑状态进行了保留,尝试利用材料对结构的“渗透”来实现建筑与自然的平衡。
3½表示,3分代表“好的咖啡”,而3½,寓意着想要追求比好更好一点的咖啡品质。在此,SomeThoughts认为在“内容输出性”的差异化产品面前,空间无须讨论流行,更无须成为众人的焦点,通过时间慢慢地传播开来就好。
项目名称:3½coffee
项目地点:上海市徐汇区太原路305弄1号
室内面积:100㎡
项目业主:上海欧普思餐饮管理有限公司
空间与陈列设计:Some Thoughts空间设计工作室
主持设计师:李京泽
设计师:谢朕、金强
设计时间:08/2022-10/2022
建造时间:11/2022-4/2023
主要用材:微水泥,碳化软木,玻璃钢,透明蜂窝阳光板、花岗岩、哑光抗指纹乱纹不锈钢、木饰面
摄影:SFAP
撰文及图纸由Some Thoughts提供

飞界灵感设计有限公司

简线建筑

静谧设计研究室

安森设计事务所

深点设计PDD

锦莳设计

栋栖设计

壹悦设计

DA STUDIO

不迫工作室

兑话设计

尚水希木乡村振兴工作室

慕达建筑

白菜设计

苏格SG空间设计事务所

山地土壤室内设计

KiKi建筑设计事务所

里外工作室

未见筑设计事务所

川岛雅矢建筑环境设计室

B.L.U.E.建筑设计事务所

木石设计

朴野设计

即时设计研究所

衡建筑

未无设计

都市游牧

锵设计

舍近空间设计事务所

杭州慢珊瑚设计

753studio

梓泉建筑设计

屋已设计

中和营造工作室

观念建筑

借光建筑空间设计

拙讷建筑设计事务所

Studio COLY

另外建筑

另外建筑

另外建筑

red design

斗西设计

本哲建筑

大舟建筑设计事务所

未知设计事务所

文青设计机构

OFFICE AIO

现象设计

大栋建筑

春田空间设计工作室

MOC DESIGN OFFICE

LAE Design

知一设计研究室

未来以北工作室

平衡空间设计

中和营造工作室

所在设计研究社

耕井伫建筑工作室

秩合予美空间设计

B.L.U.E.建筑设计事务所

鳞见设计工作室

浆果创意