当教育空间离开校园的围墙,与老社区深度叠合,会产生怎样的化学反应?在成都玉林,标榜职业学院与有门建筑联手将一栋老式居民楼改造为实验性教学综合体——C-SCHOOL,以“社区即教室”的理念探索教育空间的更多可能性。
SCHOOL取“社区学校”之意。因其处在社区中,课程设置乃至教学空间设计考量,都与社区有着各种层面的联系。首批入驻的设计系学生不再闭门造车,而是参与大量的设计实践与在地研究课题,实现产、学、研一体化循环。
老居民楼原为厂职工宿舍,在原始格局基础上局部改扩建后,首层成为学校的公共空间,兼具教学、工坊、展览、图书室功能。除基本的固定置物架以外,桌椅家具均为模块化设计,可拼合或打散以适应多元场景。改造刻意保留了居民楼的岁月痕迹,老式水磨石地面、走廊高窗等,经打磨修缮后焕发新的生命力。而建于上世纪的昏暗公寓在阳台处被尽可能打开,扩建形成新的沿街界面,在“隐私高度”之上用玻璃引入自然光,同时保留学生靠窗坐下后专注学习的安全感。
改造设计有意地模糊学校与社区的界线。沿街新增雨棚下方的空间没有被纳入室内,而是设座椅、成为社区街角的微型口袋公园。学校公共空间在教学时间向社区敞开,欢迎居民进门看书、看展或与师生交流。原有绿化带和老银杏树得到保留,树下花坛边常能看到学生闲坐聊天。
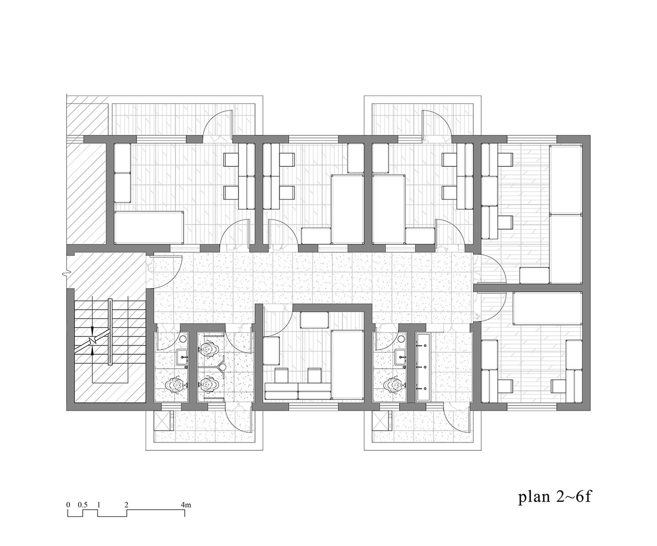
老居民楼的二至六层被改为宿舍区,根据需求设计了全套模块化家具,包括可自行调整隔层板的衣柜组合、书桌+置物架组合,带隐私隔板的上下铺,方便寒暑假期间改装为青旅或邀请艺术家短期驻地。
当“传统校园+固定教室”的模式被解构,C-SCHOOL展现出教育空间的社会价值。不仅在于学习行为的场所,更在于其作为社区关系催化剂的潜能。
项目名称:C-SCHOOL
项目地址:成都武侯区芳草街道蓓蕾街17号
建筑面积:708 ㎡
设计方:有门建筑
项目设计、完成年份:2024
主创及设计团队:唐倩文、周柯地、徐嘉韵
客户:四川国际标榜职业学院
装修主材:水泥自流平、艺术涂料、不锈钢、手工砖
摄影版权:李斌、徐嘉韵

杭州物相空间设计

利落建造

0321 studio

劢可丹建筑设计

朴居設計研究室

archive studio

unarchitecte

VARY几里设计

隐一设计

多么工作室

谱观建筑设计

事建组

梓泉建筑设计

都市游牧

太谷设计

知一设计研究室

陌至建筑設計事務所

REAL建筑事务所

杭州巨合建筑设计事务所

研己设计

青草地设计

多么工作室

門觉建筑

平介设计

栖斯设计

多么工作室