 
      
         
        几年前初次踏勘场地,甲方种植多年的高大树木将厂区四周团团围住,俨然是个小树林,在周边看不出内侧工厂面貌。
进入厂区后,用于本次建设的地块位于厂区东南侧,长方形的场地上肆意种植一些乔木,朝向东南侧视野相对开阔,西北临近厂房,目之所及却不能让人有所触动。工厂主要生产以轻GRC水泥为材质的植栽容器及花园精美摆件,产品种类繁多,口碑甚佳,销往欧洲大陆居多,甲方H总希望在此建设用于展示产品和接待访客的空间。
困扰之际,结合甲方明确的、模糊的诉求,首先定调了此处应塑造一处静谧的场所为原则,因预判项目建设周期需些年头,建议用地四周先种植树木植被以颐养土地,未来作为进入建筑内部的过度区域,避免从厂区空间直接进入内部的唐突。再者,运用设计中基本的场地设计手法,将用于后勤的楼梯及卫生间等“服务空间”沿西侧集中布置,避开不利朝向,集中布置的”服务空间“为其它空间灵活性预留了可能。最后,朝向东南的方向的空间可根据不同功能属性梳理各自特质。
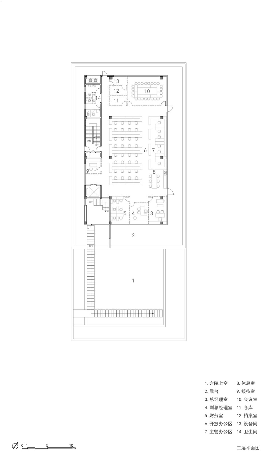
周围工业园内的厂房建筑高度大体在8米左右,呈现连续铺开的状态,在此高度以上视线开阔,为此,建筑朝向东南面二层以上,外墙主要以超白玻璃作为透明隔断,有意将室内外视野打开,确立了每层远眺南太武山脉的视线关系。同时,厂区内部生产车间人员进出频繁,为了减少室内外的相互干扰,建筑一层及一层以上分别以内向型和退台方式呈现,在考虑到一层多功能厅大开间尺寸,到二层只需部分办公功能,故在二层做了斜柱结构方式,斜柱同时也作为开放式办公的室内空间元素,随着工厂人员的增加,使用面积不足,斜柱底下的斜角空间被用来作为柜子使用,少了点结构的真实表现感。
前面讲述的第一次踏勘场地的不佳体验,项目的建设也是为了能够改善这一印象,基本确定了内向型空间原则。建筑的功能分为了接待、展览、办公,为此,对应梳理了三种不同动线。
由宽阔的厂区道路进入已植养几年的小庭园,空间由此变小且静谧,悬挑的檐口让外庭院和内庭院有了空间上的咬合,通透的格栅面处于阴影之下,弱化它的金属质感,内外庭院视线得以连贯,在这里才能看清建筑入口玄关的全貌。往里走内向型的“园中方院”就此展开。中国人骨子里酷爱山水,甲方常提起自然中的“空灵”,此意指“灵活却无法捕捉”,委托朋友到山涧里寻找岩石,藉由大型吊机在庭园中结合绿植、水体摆弄其中,享受乐趣,几年过去了,也甚得生机。
围绕方院梳理了两条动线,玄关左转为接待流线是其一,侧重空间行走的体验感。经过多次的实际模拟和推敲,13.5米大跨度的梁与间隙50MM的500MM*150MM厚钢筋混凝土踏面板一次浇筑成形,形成横跨水面上的平缓的台阶,行进犹如平地步行感受但又有身体抬升之用,可使人轻松拾级至第一级平台,在此过程体验场所的步移景异。平台有意拉长,延伸至庭院外墙,可感受不经意的空间变换。在深化图纸过程中,因一层多功能空间高度的需要,层高由原来4.5米抬高至5.4米,因此斜向台阶的空间尺度过于夸大,故移植一株老树植于方院一角,树梢与上升的台阶界定出与人身体呼应的尺度,人从树梢经过,出其不意的与人发生了对话。接着再踏着由剪力墙悬挑而出的踏板慢步而上,为塑造轻盈的台阶,每级踏板间隔50mm,阳光被每级独立的踏板切开,投射到墙壁上形成均质阴影之美。人在此缓步上升,与树一道构成了方院立体而生动的背景。至一层平台围绕天井式楼梯而上可至每层平台并抵达顶层接待处,此路径可以感受到阳光跨过楼板打在敞开式天井楼梯的空间层次。
一层方院另一条动线为门厅及多功能厅的平时流线布置,玄关处顺着方院和边庭界定的汀步空间可引导至门厅侧面,进入门厅还需做一次身体折转,有意引导人在步行过程中身体与方院水面边沿的平行关系,门厅大门开向方院,围绕一层门厅和多功能厅的内向边庭让一层室内空间可得舒展之境。通往后勤的内部走道布置在多功能厅的边柱子外侧,两颗柱子与4级台阶界定了多功能的边界,走道可由此成为多功能的舞台,围绕纵向三跨八颗柱子的空间做了下沉,室外庭院延伸至屋面下的半室外区域,且与室内地面同处同一水平高度,与门厅间隔的背景墙由通高可折叠钢板做成,此几举意在塑造仪式感的多功能空间。
北向出入口作为展厅的后勤出入口,西侧临近生产车间,由此布置办公出入口更便于员工进出。
环二层、三层布置平台,与周围水平延展的工业区建筑取得空间呼应,建筑的栏杆内侧设置树池做法,意在阻隔周遭厂区杂乱的堆场视线,也期许未来露台绿意盎然可得更好的空间感受。每层宽阔的悬挑露台提供了休憩功能,同时也起到遮阳效果。在结构设计上,为了长向树池能够连贯以及各层露台的排水顺畅,在主框架结构悬挑的外圈再悬挑一级树池和水沟的共用构造,兼顾考虑日常方便维护。
经竖向天井式楼梯回转到达四层,视野朝远方展开,挑檐和栏杆切出天、地之间的山脉与海平线轮廓。西北侧作为甲方内部使用空间,以私密为主,取消了部分结构的楼板做法,空间上下穿透,可作植被生长之地。
栏杆与树池的构造做法使建筑的外墙抽象简洁,可与工业园区的空间尺度呼应。鉴于施工造价的低限控制,原计划清水混凝土一次呈现效果难以实现,建造伊始特意留出了水平向模板拼缝,而后进行了建筑外墙修复,最终拼接缝作为建筑外墙建造中施工痕迹保留下来,也回应了甲方工厂以轻GRC水泥为材质生产简约朴素的工艺品风格。
项目从开始设计施工至今也有六年有余,甲方H总工作繁忙,除了办公功能未待完工就已进驻外,其余大体搁置,建筑要传达出的场所感受并未清晰显现,为此投入很多精力的H总和建筑师倍感缺憾,毕竟一个项目的落成需历经不少艰辛。H总最近终于可以拨些闲暇在庭园养几尾锦鲤、收拾下草木,虫鸟白鹭纷纷沓来,环境才得以有了点生机。几年后再次行走其中,越觉得空间与环境营造的场所松弛感,时间的印记已有在建筑表面优雅显现的迹象。记忆会随时间退却,故做此文记录建造过程的思考。
项目名称:雅园方院——Gardenarts企业展厅
项目地址:中国福建漳州市
建筑面积:3372平方米
客户单位:厦门雅园工艺品有限公司
设计团队:回应建筑工作室(RESP Studio)
项目设计&完成年份:2017.1-2023.6
主创及设计团队:陈延安 周伟栋 林夏木
结构类型:框架剪力墙结构
结构设计:林勇
景观设计:叶茂乐
室内设计:由李设计
清水混凝土饰面营造修复:上海可建新材料科技有限公司
主要材料:清水混凝土、金刚砂、玻璃幕墙
摄影版权: RESP 赵奕龙

柏涛设计

10 Design

10 Design

立方设计

木君建筑与室内设计事务所

Wutopia Lab

天仝建筑

长江都市建筑设计

张大为建筑工作室

小隐建筑

goa大象设计

光湖普瑞照明设计

一十一建筑

汉诺森

阿科米星建筑设计事务所

WAU建筑事务所

GLA建筑设计

华南理工大学建筑设计研究院

浙江大学建筑设计研究院

现代之后建筑设计事务所

观筑设计

安棣建筑设计

张·雷设计研究

英国杰典国际建筑设计

小写建筑事务所

Wutopia Lab

汉齐建筑

日常建造

柏涛设计

光湖普瑞照明设计

中森止境设计工作室

华阳国际设计集团

LAD(里德)设计事务所

靠近设计

华清安地建筑设计成都分公司

启迪设计

尹培如建筑工作室