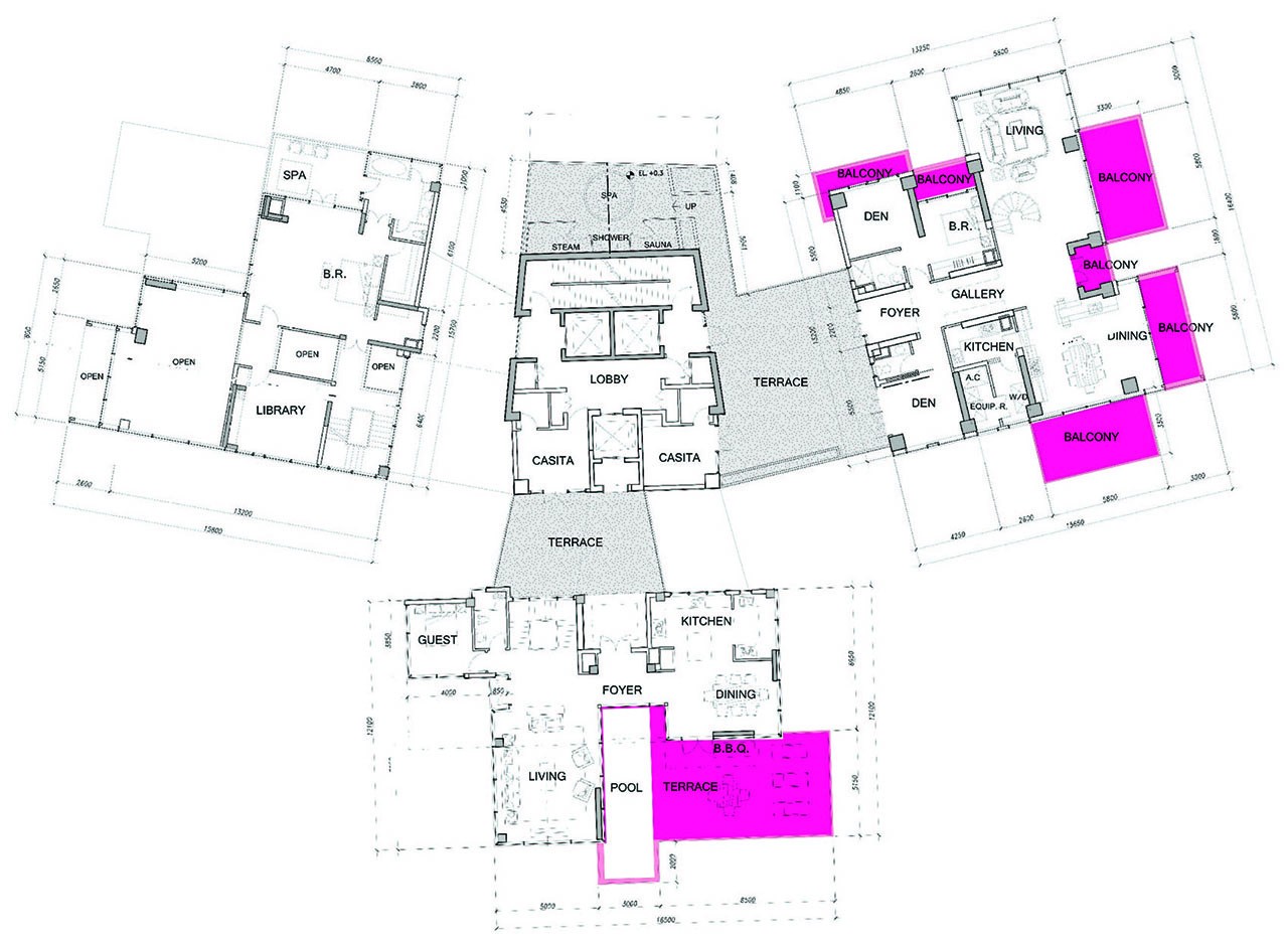
麒麟荟(Crystal Laputa)是由两座高层建筑和一座中层建筑组成的垂直社区。该项目同时涵盖了健身中心、全套的spa设施以及位于楼顶的高级公寓。
大楼的立面形式各不相同,堆叠的立方形体量将住宅单元彼此区分开来,同时位为其赋予明显的个性特征。三座塔楼彼此连通,如天空之城般漂浮在广阔的湖面之上。大楼内还包含三个种类的公共设施,包括人行道、机动车道和水运设施,以支持水上出租车的运行。
位于三层的空中花园将三座塔楼连接在一起,位于陆桥上的公园和休闲空间则为社区提供了户外活动的场地。街道层设有一系列附带有游戏空间和跑道的路径,使该项目与户外空间形成更紧密的联系。
Client: Chengdu Wide Horizon Real Estate Development
Project Type: Architecture
Location: Chengdu | China
Program: Residential high-rise, residential mid-rise, waterfront villas
Site Area: 484,376 square feet
Building Area: 731,946 square feet
Photo credit: Arch-Exist

间筑设计

汇一建筑

扉建筑

立木设计

UUA建筑师事务所

Van Bergen Kolpa 建筑事务所

朱小地建筑设计事务所

绿城利普建筑设计

天华建筑设计

天华建筑设计

天华建筑设计

天华建筑设计

UUA建筑师事务所

天元建筑设计

goa大象设计

筑弧建筑设计事务所

华域普风设计

绿城利普建筑设计

5+Design

绿城利普建筑设计

goa大象设计

goa大象设计

柏涛设计

goa大象设计

goa大象设计

朴隅建筑

家琨建筑设计事务