路易斯.康,曾改造的一个很小的项目,犹太社区中心更衣室,由严谨的几何秩序建构的简洁设计,巧妙的将机能与空间元素完美结合在一起,明确界定服务性与被服务性空间,得到空间的明确性。
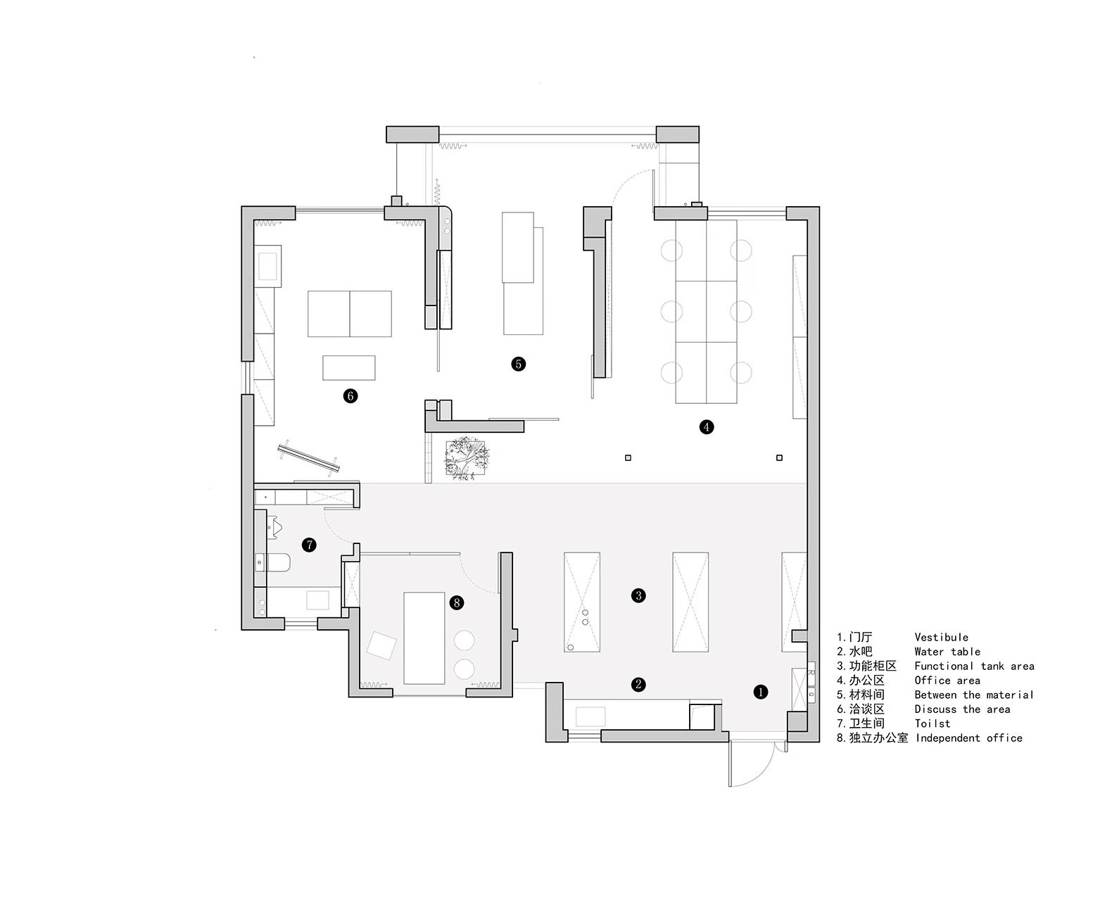
我们希望舍弃大众化的前台接待区,我们通过分析明确了空间内主要使用人群以及使用高频率,是以我们办公人员为主(客户大多以预约制上门,汇报方案为主;)深色区域以服务性功能区为主,阵列组合的置入了三个功能柜:①:私人物品;②:公司物品;③:打印办公功能;
二次分割:细化功能区:工位区/材料区/汇报区/个人区;
我们希望明确的界定服务性与被服务性空间,让日常办公效率以及日常维护上能更有效率,群体性的体验感大过于单纯的视觉享受;
本案设计中,我们采用了园林中廊架的概念,取名廊桥即连接服务空间与被服务空间,廊架作为中间的隐形的“桥梁”。廊是一种线性中介空间所依托的建筑类型,有屋顶并且有侧界面围合的室内空间中,由基面,两个侧界面,顶界面和通常缺失的端界面围合,限定而成的可供人类正常活动的线性中介空间。
服务空间,是指水吧台,书架,卫生间等为主空间服务的空间;被服务空间,是指主空间,也就是人使用空间,流动型的空间。主理人办公室也纳入到了这个空间,让这个空间并没有想象中那么小。入口两个区域或三个区域合并之后,成为很重要的一个主题空间。而且为了配合这个主题,中间柜子色系都在一个深色块的体系里面,空间形成一个很直观的序列关系。立面层次上加了一些像建筑上的立面感觉,形成非常有意思的虚拟的一个界定关系。
木格栅的设计营造了一种虚实之间的关系,就像“无”材料般存在,让空间变得轻盈。尤其加上室内光线,投射在木格栅反射出的光源,都让空间产生了一种暧昧的变化,让人一进门的时候不会很压抑。
材料区与洽谈区属于对外空间,但是之间联系紧密,洽谈的过程与材料间有直观的对应关系,所以两个空间之间的转换就尤为重要。
通过采用大面的移门,快速转化,让空间开合之间视觉最大化,移门作为空间墙面材质转变的装饰性作用,创造独立的单色空间。
艺术涂料构建了一个独立的单色空间,希望完全区分开功能分区。而被服务区可以营造一种温暖,轻松,有序的氛围空间。空间则是五感体验,从触摸,视觉,光影变化,空间内的行走,在影响了使用者的感受。
项目名称:廊桥
项目地址:武汉
项目类型:办公空间
建筑面积:134m2
项目甲方:武汉有维建筑设计
设计机构:武汉有维建筑设计
设计团队:武汉有维建筑设计
设计时间:2021年
完成年份:2021年
摄影版权:阿盛

山地土壤室内设计

边缘计划建筑工作室

未午建筑事务所

Say Architects

海浪创物

松涛建筑设计事务所

喜玛拉雅设计装修

凡筑设计

全文室内设计

超级番茄设计

千墨设计

VANISHED DESIGN

拙人营造

有田建筑空间设计

陶磊建筑事务所

愈宅设计

伊波莱茨建筑咨询

米凹工作室

隐一设计

未止工作室

十合设计

非知名设计事务所

拾集建筑

相与还空间设计

柒构设计顾问

凡西空间装饰设计

林礼聪工作室

山山园林

肃画建筑

谱观建筑设计

非知名设计事务所

脚本建筑研究室

囙设计工作室

IARA设计研究事务所

深点设计PDD

凿枘设计

PMA普玛建筑设计事务所

直线建筑设计事务所

琢磨设计

仟物栖所事务所

由里空间设计

家语设计

熹维室内设计

介介工作室

阐领建筑

SLT设计咨询

Say Architects

深思维设计

纸间营造

黑白木设计工作室

CUN寸DESIGN

里所空间设计事务所

艾洛设计

B.L.U.E.建筑设计事务所

NOTHING DESIGN工作室

十拓建筑规划设计事务所

里外工作室

里外工作室

深度进化设计事务所

立方体设计事务所

有物设计顾问

隹聿设计工作室

慕达建筑