本案是我们设计团队的新工作室。整体方案主要以极简主义作为设计的基石,以空间互动为设计的重点,在满足设计师创作表达的前提下,使不同空间紧密联合,形成和谐的序列关系。整个空间不仅做到通透,还提高了人与人之间的互动和交流。
在门厅处,我们用大片面积的黑色木材营造出一种神秘的氛围。玄关上的三角形开口设计打破了空间界限,使原本分隔的空间于若隐若现的视线交流中建立联系,增添趣味性和设计感。
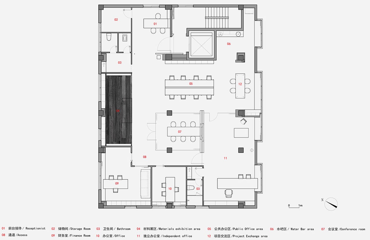
原木色的体块把材料展示区和卫生间分隔开来,既是隔断,也是展示架。木材的表面肌理与质感突显了不同材料的色彩本质,更强调了这个区域的独立性。
L型走道连接各个空间,并随着序列的递进而呈现出明显的层次和材质变化。走道延伸至总监办公室,结合另一侧的玻璃门形成一条环形回路,通过空间的互动达到使用效率的最大化。
在实践过程中,空间的视觉感受一直是我们考虑的重点,而装饰材料及软装的选择则构成项目的基本元素。
着眼于多元、高效、艺术等多种办公设计新趋势,所有墙面、柱体、照明、软装,在整体流线中环环相扣的节点皆从实用性出发,逐步放大艺术元素对办公空间的潜在价值。
诠释设计创意的有力手法是对材料特性、细节的深入研究。这是创造一个和谐舒适空间和确保优质项目高品质落地的关键。我们希望通过基本的形式语言体现最真实的空间,用质朴的建造细节来激发空间之间的对话。
项目名称|回归本原
项目地点|广东 汕头
建筑面积|310 m²
设计机构|由里空间设计
竣工时间|2023.09
主创设计|谢桂顺
施工团队|由里工程
项目摄影|陈荣坤

山地土壤室内设计

边缘计划建筑工作室

未午建筑事务所

Say Architects

海浪创物

松涛建筑设计事务所

喜玛拉雅设计装修

凡筑设计

全文室内设计

超级番茄设计

千墨设计

VANISHED DESIGN

拙人营造

有田建筑空间设计

陶磊建筑事务所

愈宅设计

伊波莱茨建筑咨询

米凹工作室

隐一设计

未止工作室

十合设计

非知名设计事务所

拾集建筑

相与还空间设计

柒构设计顾问

凡西空间装饰设计

林礼聪工作室

山山园林

肃画建筑

谱观建筑设计

非知名设计事务所

脚本建筑研究室

囙设计工作室

IARA设计研究事务所

深点设计PDD

凿枘设计

PMA普玛建筑设计事务所

直线建筑设计事务所

琢磨设计

仟物栖所事务所

家语设计

熹维室内设计

介介工作室

阐领建筑

SLT设计咨询

Say Architects

深思维设计

纸间营造

黑白木设计工作室

CUN寸DESIGN

里所空间设计事务所

艾洛设计

B.L.U.E.建筑设计事务所

NOTHING DESIGN工作室

十拓建筑规划设计事务所

里外工作室

里外工作室

深度进化设计事务所

立方体设计事务所

有维建筑设计

有物设计顾问

隹聿设计工作室

慕达建筑