概况
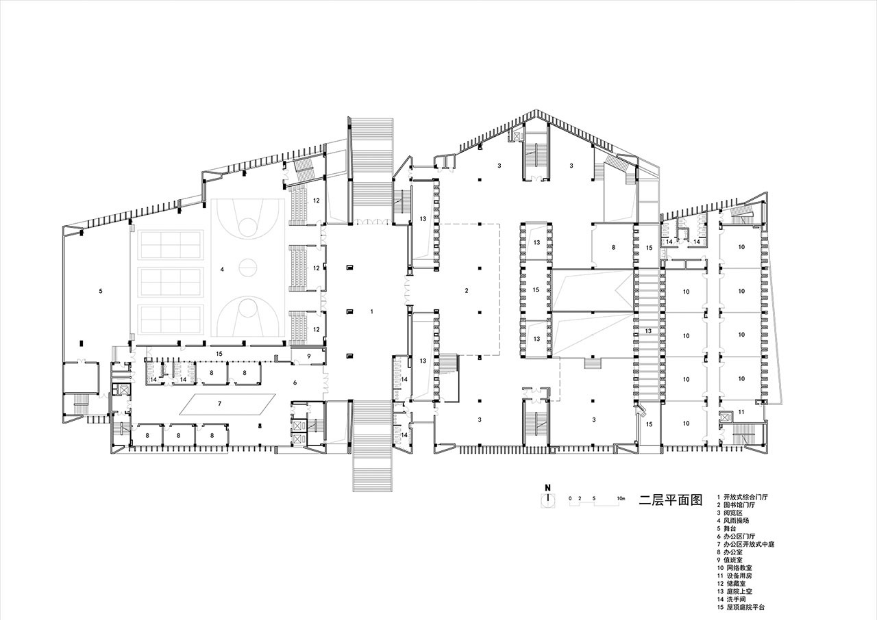
图书信息综合楼总建筑面积31266平方米,是含图书馆、行政楼、风雨操场、网络教学楼、餐厅等多功能的校园综合体。基地位于校园核心区域,处在校园中心景观轴线之上,南侧为校园中心景观湖,北侧为山体公园。
挑战
用地十分紧张且不规则,建筑则需容纳图书馆、办公、风雨操场等多种功能,人员流线复杂,这是本项目最大的挑战。如何弱化大体量的建筑对于南侧中心湖与北侧山体公园的空间阻断和隔离,来保持校园南北景观的延续和视线的贯通,也是亟需解决的问题。
策略
借鉴传统“冷巷”的智慧,引入五个南北向的夹缝天井,将建筑体量化整为零,划分为六个条状建筑,不同的条块对应不同的功能。纵向院落也将南北向景观和视线联系起来,使建筑成为南北校园空间对话的重要媒介。同时不同功能块通过相互之间的天井院落促进自然通风采光,摒弃空调,实现低造价下的被动式环保理念。
为解决图书馆、行政楼、风雨球场三大功能块的交通和动静分区问题,在三者之间设置了一个中心共享交通体,通过这个开放式综合门厅进行分流来解决复杂流线的问题,同时将“动”的风雨球场和“静”的图书馆严格分隔开,避免相互之间的噪音干扰。
立面
纵向条块在南侧保持齐平,北侧平面根据路型进行斜切和转折的变化,屋顶则通过高低起伏的折顶将几大功能体块组合成一个整体,南北立面再覆以间距、进深不等的竖向混凝土百叶,强调建筑的整体性和标志性。
项目名称:江西建设职业技术学院图文信息综合楼
项目地址:江西省南昌市小蓝经济开发区
建筑面积:31266 m2
项目类型:教育建筑
客户单位:江西建设职业技术学院
设计机构:华南理工大学建筑设计研究院有限公司 陶郅工作室
设计年份:2014.01 - 2018.12
完成年份:2020.06
设计团队:
项目总负责:陶郅 郭钦恩 陈子坚
校园规划:郭嘉 郭钦恩 陈子坚 陈健生 袁华章
建筑:郭钦恩 练文誉 陈弢 何岸咏
结构:赖洪涛 何智威 林斯嘉 熊勇
电气:黄晓峰 陈涛
给排水:肖静芳 颜正慧 余小龙
暖通:陈祖铭 谌杰 黄志详
景观室内:郭钦恩 谌珂 艾扬 黄承杰 练文誉
摄影版权:榫卯建筑摄影 SFAP

立方设计

立方设计

零壹城市

墨泰建筑设计

零壹城市

深圳市建筑设计研究总院-城市建筑与环境设计研究院

墨泰建筑设计

华南理工大学建筑设计研究院

UUA建筑师事务所

众建筑

扉建筑

法国AS建筑工作室

goa大象设计

杭州三日室内设计

圆道设计

立木设计

GOM高目建筑

土木石建筑设计事务所

大正建筑事务所

众建筑

奥凡设计

米丈建筑设计事务所

天津大学设计总院·顾志宏工作室

宁波市民用建筑设计研究院有限公司

杭州慢珊瑚设计

米丈建筑设计事务所

都市实践

都市实践

上海交通大学设计研究总院

MAT超级建筑事务所

都设营造建筑设计事务所

亚洲捷程装饰设计

西线工作室

恒新寰宇建筑设计

天元建筑设计

深圳同济人建筑设计

意构建筑

殊至建筑

梓泉建筑设计

华造建筑设计

意度建筑

和立建筑实践

浙江大学建筑设计研究院

畎亩建筑

元新建城

华南理工大学建筑设计研究院

古风建筑

BAU建筑城市设计事务所

非寻建筑

方夏设计

深圳市建筑设计研究总院合肥分院

立方设计

BAU建筑城市设计事务所

十拓建筑规划设计事务所

修舍建筑

南大建筑钟华颖工作室

思序建筑规划设计

思序建筑规划设计

思序建筑规划设计