科苑小学就像是一本书,向阅读他的人打开。
一本书会因为他的内容让人感到共情而留下记忆,然后你会忘掉他的封面。科苑小学对于在里面学习过的学生而言,是丰富的生活和恰到好处的关心;而对于社区周围的人,他是新搬来的邻居,却让你觉得有似曾相识的舒适。
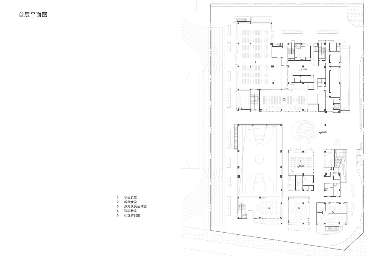
深圳南山外国语学校科苑小学是一座近20年历史的学校,地处深圳头部科技公司总部林立的南山区粤海街道核心区域。随着越来越多的科技公司子弟慕名入读这所学校,社会对于学校教育功能的要求也越来越高。学校当年建设时的硬件标准与今天高知背景家庭对学校的要求之间存在着现实的差距,尽管近年刚进行过一次小规模的扩建,但仍然没能完全解决这些缺口。在这样的背景下,区里决定对学校再进行可能是最后一次的改扩建。所谓最后一次,是因为学校周边已不再有新的用地,本次改扩建将是这个学校最后一次的升级机会。将原来36班的小学扩建为一个符合学校中长期使用需求的54班学校。
经过调研,我们发现学校最大的缺口并不是简单的班级数量,而是配套教学功能和公共教学空间的欠缺。我们对于任务书的制定使用了减法逻辑,求出学校的发展目标与现状之间的差值,这将是我们在这个小地块上需要完成的“小目标”。结果是,和一个标准学校的设计工作很不一样,在一个教学组团里,既需要普通教室、专业教室,又需要图书馆,风雨操场,食堂,还有因为校方出于对冲片区高房价对教师人才吸引力的考虑,提出的教工宿舍需求,所有这些全部要整合在这一栋教学楼里面。
这样一个典型的既要又要还要的任务书给设计带来了很大的挑战。但是,反过来,这个复杂的要求也为我们提供了一个契机,使得这栋教学楼的扩建区域功能组织上更加复合,空间上也更加灵活多义。这个项目天生就会和那些按照既定标准化的学校建设指引限制下出生的学校不同。他拥有完全不同的基因。
设计本身因为用地面积有限而不可避免的走向立体化,但我们不希望将建筑功能单纯的在垂直方向上进行叠加,而是通过对功能的有机整合,向内构建了一个花园,消解周边建筑体量带来的压迫感的同时,营造一处窗外有自然,门外有乐园的校园空间。在此基础上通过进一步创造一种疏松多孔的空间结构,提供了灵活的室内外学习空间,并回应当地气候,探索一种新的校园空间类型以适应和引领当下不断更新的教学方式。
窗外有自然,门外有乐园
建筑的空间核心是一个中心庭院,由南北两侧的教学空间围合,最大限度地引入南面的阳光。在东西侧,建筑体量在不同层相互连通,西侧向运动场水平展开,东侧向城市留空形成窗口,在不同高度上环抱出了一个向内的花园。相应的,花园的外围空间也打破了水平各层之间的空间界限,形成了一个连续的循环,一个由活动平台、操场看台、屋顶花园、公共中庭组成的多样化社交空间体系。它连接了学校内所有最公共的元素(教室、图书馆、展厅、公共学习区),以促进和激发学生与教师之间的交流。
有时间质感的建筑材料
在立面的呈现上,设计以体现材料的原真性,构造的经济性作为出发点,选择采用水刷石作为主体材料。这种完全手工的施工方法带来细腻原始的质感,灰黄调的天然质感石子肌理与周边玻璃幕墙和钢筋混凝土的现代建筑形象形成柔和的对比与互补,焕发着自然的生命力。面向城市一侧,缓缓展开的水刷石立面墙,像一本书一样打开,与城市互诉着时光和成长的故事。
身处于中国发展最快的城市区域,科苑小学像一个稳定的,被坚守的花园,作为一个要服务一代又一代孩子的文化和教育场所,以他原真的自然性静静的注视着周边的喧嚣和变化着的城市。
立体的学习社区
为了最大限度地增加活动场地,我们采用了立体化的策略来呈现一个垂直的学习社区。地面被抬升起来,下面形成了大面积的架空活动空间,同时地面层结合局部的下沉聚合了学校最公共的共享空间,包括半室外篮球场、食堂、多功能教室等;抬升的地面提供了第二层活动空间,并在这层通过连廊与原校区连接;裙楼的屋顶花园是第三个亲近自然的游乐场,这些互相联通的公共活动平台为学生在校内的日常活动提供了多样化的选择,也创造了更多社交的机会和场所。
图书馆结合半室外中庭被设置在三四层,悬挑在跑道上方。原校区的操场是一个190米的非标准跑道,虽然新的扩建用地本身已经非常紧张,但我们仍然希望去尽可能改善操场问题,通过这个悬挑的设计,释放了地面空间,为原校园带来一个全新的200米标准运动场。
促进模式更新的教学空间
传统的功能性走廊转变为半户外的宽敞活动场所,鼓励举办展览和交流等非正式活动,学生能够在不同学习场景之间灵活转换——课堂授课已经不再是学生获取知识的唯一渠道,学习和交流活动,正式和非正式的教学互动共同构成着学生获得知识的来源。设计通过功能与形式的整合,提供多层次的灵活、积极的学习空间,模糊了正式与非正式的空间界限,让更多的人有可能相遇和相互联系,从而推动了一种新的教育模式。
科苑小学是一个激发学生主动学习和探索的学习社区,一个“窗外有自然、门外有乐园”的成长花园, 一个在快速发展的城市中的时光和记忆的坚守者。他的功能复合,彼此渗透;空间开放,互联互通;它像一本城市的书,与参与其中的孩子们一起,记录着很多有趣的故事和回忆。
项目名称: 深圳南山科苑小学
项目类型:教育建筑
项目地点:深圳市南山区粤海街道
设计单位:深圳市建筑设计研究总院-城市建筑与环境设计研究院
主创建筑师: 吴超、王思文
设计团队:吴超、王思文、洪波、姚俊伟、李永燚、胡丽琼、李勰、朱靖丹、燕侨;唐志军,闫丽君(建筑设计);林文明、王丽、虞子良、(结构设计);游辉敏、徐雪峰、陈军、黄龙、陈丽媛、苏路明、周金磊(机电设计);钟常盛,奚庆创(室内施工图设计);聂颖(项目管理)
获奖:2022柏林设计奖-金奖;法国巴黎DNA设计大奖-优秀奖
建成时间:2021年
用地面积(平方米):6600㎡
建筑面积(平方米):24600㎡
景观:TOPOS 拓柏景观
室内:WAU 建筑事务所
材料:水刷石/水泥纤维板/涂料/金属铝拉网
摄影师:白羽

立方设计

立方设计

零壹城市

墨泰建筑设计

零壹城市

墨泰建筑设计

华南理工大学建筑设计研究院

华南理工大学建筑设计研究院

UUA建筑师事务所

众建筑

扉建筑

法国AS建筑工作室

goa大象设计

杭州三日室内设计

圆道设计

立木设计

GOM高目建筑

众建筑

奥凡设计

米丈建筑设计事务所

天津大学设计总院·顾志宏工作室

宁波市民用建筑设计研究院有限公司

杭州慢珊瑚设计

米丈建筑设计事务所

都市实践

都市实践

上海交通大学设计研究总院

MAT超级建筑事务所

都设营造建筑设计事务所

亚洲捷程装饰设计

西线工作室

恒新寰宇建筑设计

天元建筑设计

深圳同济人建筑设计

意构建筑

殊至建筑

梓泉建筑设计

华造建筑设计

意度建筑

和立建筑实践

浙江大学建筑设计研究院

畎亩建筑

元新建城

华南理工大学建筑设计研究院

古风建筑

BAU建筑城市设计事务所

非寻建筑

方夏设计

深圳市建筑设计研究总院合肥分院

立方设计

BAU建筑城市设计事务所

十拓建筑规划设计事务所

修舍建筑

南大建筑钟华颖工作室

思序建筑规划设计

思序建筑规划设计

思序建筑规划设计

思序建筑规划设计

思序建筑规划设计