该项目位于湖州市区一处老旧住宅区内,三口之家,一对年轻夫妇,3岁男孩,一只美短猫和一只80斤左右的金毛。屋主夫妇,性格温和,开朗善谈,喜欢安宁沉静、自由舒适的空间状态。他们从之前居住的200平方米的高层住宅搬至59平米的一楼带院的房子,希望在这里可以亲近自然,远离喧嚣,享受慢节奏的生活。
场地记忆
小区环境幽静,周围配套设施成熟齐全,很有烟火气。房子位于一层,东边户,南侧每家都带有院子。不过几乎每家都将原本的庭院加盖了屋顶,纳入室内来使用。房屋院子外侧是一个开放的社区小公园,天气好的时候,时常会看到大人、小孩、老人来这里交谈、玩耍、锻炼身体。
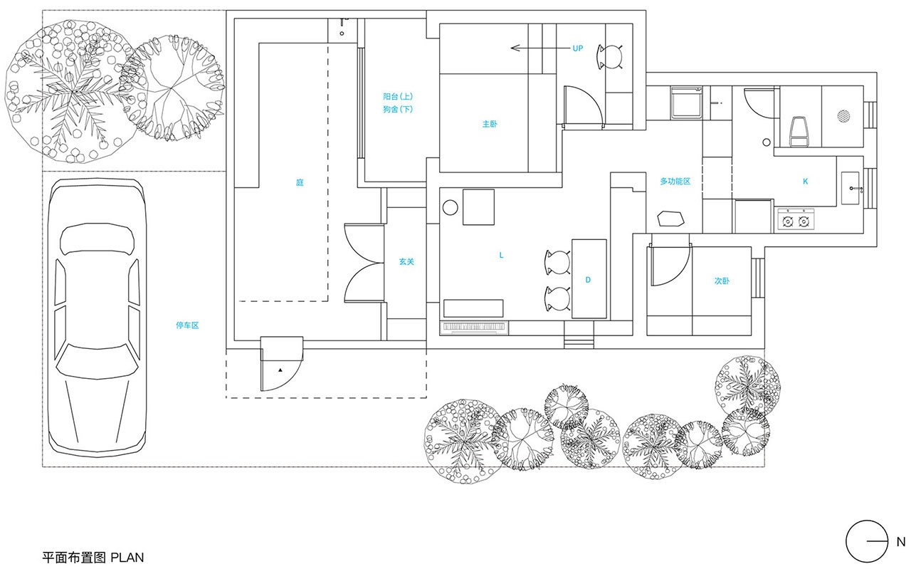
房屋的原始格局为传统的两室半户型,原入户单元门位于西侧,连通客餐厅区域,不过几乎不使用。进行现场勘察时,我们从东南侧的院子入口进入,上任屋主将这里通过墙体分隔分别作为临时客餐厅、卫生间、杂物间使用,这也直接导致中间的客厅、东侧的卧室为暗室,无直接采光。从客厅径直走到中部的餐厅区域,尺度非常狭小,餐桌椅靠近厨卫一侧摆放,四周都是门洞,空间破碎,几乎没有收纳功能;儿童房位于最东侧,房间高而窄,居住在里面,一个转身的距离,如同井一般。
设计初始,我们与业主就基本信息、功能需求及生活理念进行了详细的采集、沟通。一是需要解决所有成员的居住问题,狗狗在室外的生活空间,室内的两个卧室空间,以及猫猫的起居空间(吃饭、睡觉、日常活动、如厕等);二是因为男屋主从事音乐类工作,希望可以在家中有一个小型的编曲工作台,用于日常创作。客餐厅空间需要承载一家人的就餐、休闲以外,书架、收纳,亲子互动、电钢演奏区等。厨卫空间,干湿分离,威士忌酒柜,除此之外,还希望拥有一个家政间,用于摆放洗烘一体机、扫地机器人、脏衣物的收纳等。
在极小住宅中,如何实现空间的最大化利用?如何协调开放空间与私密空间的关系?如何在功能之下营造居住的乐趣?是我们需要去思考的问题。
庭院与狗舍
设计沟通时,我们便与业主达成一致,拆除原始加盖院子的屋顶,向外界打开。我们希望在这个狭小的场地内,改建出一个小型建筑内的微观世界,人与自然元素对话的空间,居住者可以感受到阳光、空气和风霜雨雪。
业主选择一楼带院的房子其中有很大部分原因,希望能够为狗狗提供一个自由、舒适的家,显然在庭院内单独搭建一个狗屋,很不合宜,既占据空间,又影响美观,我们思考是否能创建一个连续的空间,于是利用恢复的阳台空间,沿着梁下砌筑墙体,并现浇出一个平台,分割出上下两个空间,两种高度,上方作为室内空间使用,下方则作为对外的狗舍,狗狗的物品储存也绰绰有余,同时,在室内的人与庭院里的狗狗也能产生互动。
我们利用室内与庭院之间的高低差,设计了下沉式玄关,庭院地面的青砖通铺到室内的玄关处,创造一种内外的联结,亦是将生活空间朝外部延伸。男屋主喜欢下雨天,我们给庭院增加了一段可以既可以透光又可以遮雨的檐廊,雨天回家不至于会淋雨,檐廊外的地面做了下沉,雨水会汇集到这里然后通过地面管道排走。天气晴好的时候,阳光经过檐廊,穿入室内,光线变得柔和且静谧。有了檐廊过度空间,室内和庭院的关系变得柔和,不论是雨天还是晴天,都可以坐在屋檐下享受到自然所带来的放松和愉悦。
分散与整体
年代久的房子,特别是以前分配的职工房,随着生活的继续、家庭人口的增加,收纳不能满足需求,于是很多人都会选择借用部分墙体空间做嵌入收纳,比如在入户玄关处,客厅电视区,卧室等等。我们在这个老房子里也发现有很多,在勘测时记录了位置及尺寸,发现在原主卧的开门的一侧,有一个尺度与门接近,嵌入墙体内的壁橱,这个条件为我们打开空间提供了新的思路。
按照常规的布局,前后割裂、左右分离、功能部分各自独立分散,不能连通,无法实现我们所需的功能。且面积有限,墙体又大多是承重墙,也不能拆除,操作余地很小,我们设想是否有彼此交叠但又不互相破坏的情形,于是我们利用原始嵌入的壁橱,打开了出口,并对其做了钢结构的二次加固,占用卧室小部分区域,在各功能区之间创造了一个过渡缓冲空间,将不同功能串联,整栋住宅产生了纵深感,开阔性与整体性也得以保障,比平铺直叙的过道更丰富多彩。
建筑与家具
我们分析了场地情况,将原客厅与原卧室空间功能做了调换,两个空间尺度相近,原卧室空间距离入口更近,作为客厅使用更为合理方便;卧室相对客厅来说需要更多的私密性,因此将它放在了离院子入口最远的距离,回家后可以直接从玄关进入到客厅。客厅区域,我们结合原始窗洞设计了一组多功能收纳柜,解决日常书籍展陈、生活用品收纳以及电钢摆放的集合,使得户外的景致与室内的光线自然的融合,提供居住者享受空间表情变化的乐趣。打开侧面新的通道以后,原始卧室的门洞没有进行封闭,而是利用一组水平长条型的卡座,让其成为整个空间串联、互动的窗口,创造出更多的留白空间。
原始餐厅区域狭小,且难以利用,打开一个新的门洞后,压缩部分卧室空间,获得了从客厅进入多功能区以及厨房的自由。原卫生间没有进行干湿分离,我们内退了部分墙体,将干区从内部择出来,与外部空间结合。由于业主平日在家烹饪较少,选择了开放式厨房,我们通过置入一组Z字型大家具,集合干区、猫咪如厕空间(自动猫砂盆)、开放式厨房、家政间功能、酒柜于一体,通过柜体分割空间,隔而不断。因为空间面积小,家具的高度没有到顶,只预留了足够通人高度,让空间拥有纵向上的丰富度和层次感。大家具在体量上远不如建筑体量,但在功能和形式上就好比微缩的建筑,各个功能需合理有序的排列组合,同时还兼顾到和周围空间以及人的行为关系的发生和变化。Z字型大家具上方的留白区域,顺理成章地成为了猫咪的生活空间,原先在卫生间内部的落水管,墙体内退后,显露了出来,我们选择用麻绳包裹,于是成为了猫爬架。
北侧最小的房间作为儿童房,长度是2.1米,宽度是1.8米,4个平方都不到,层高确有2.7米,我们通过地面抬高,来消除这种狭小且高耸的消极感,所有功能通过家具的一体化设计让它充分利用而又整体简洁,睡眠、衣物收纳以及成大后需要独立学习的空间,一一实现。
主卧让出一个过道的面积给公共空间的同时,还在内部通过不同高度的设置界定出了3个功能空间,各功能虽在同一空间内,却互不打扰。首先,进入的是编曲工作台与次净衣的组合功能区,转身上三步台阶来到另一个高度的卧室睡眠区,穿过睡眠区再上一个台阶是休闲阳台,这里也是室内高度最高的地方,站在或瘫坐在这里,可以和外面的家人和狗狗互动,视线透过院子的围墙,在围墙与出挑的屋檐之间形成一道长而高的水平观景视线,既摒弃了繁杂无趣的小区日常生活,又能在这条缝隙中获得和自然亲密对话的契机。
我们一直把自然、城市、社区、街道、建筑再到室内部分作为设计的一个完整的视角,比设计空间更重要的,是连接人与人之间的关系。家其实更像是一种微缩的社区,我们希望通过此次改造来创造一个既开放又封闭、既安静又活泼,而且能充分融入自然、社区和家人情感联结的住宅,让彼此都能找寻到生活的乐趣。
项目名称:市陌河住宅
项目地点:浙江湖州
建筑面积:60平方米
设计单位:MOU建筑工社
主持设计:吴状
参与人员:付仕玉、陈静
建成时间:2023年4月
主要材料:松木胶合板、云杉实木、灰泥、青砖、不锈钢、聚碳酸酯板
项目摄影:DONG建筑影像

有维建筑设计

有维建筑设计

蜚声设计

山止川行设计

耕造建筑设计

木卡工作室

木卡工作室

木卡工作室

舍近空间设计事务所

系园建筑设计工作室

两间室内设计

PONE普利策设计

氹边建筑工作室

木卡工作室

愈宅设计

愈宅设计

涵舍空间设计事务所

崔庠工作室

川岛雅矢建筑环境设计室

山地土壤室内设计

隅间空间设计工作室

边学婷设计工作室

梓泉建筑设计

未止工作室

七巧天工设计工作室

来去建筑工作室

尺度森林工作室

Wutopia Lab

一绗建筑工作室

辰境设计

听任工作室

未止工作室

NOTHING DESIGN工作室

辰境设计

构看建筑设计

wooom studio

辰境设计

有维建筑设计

蜚声设计

木卡工作室

木卡工作室

O筑设计

O筑设计

那漠含风设计