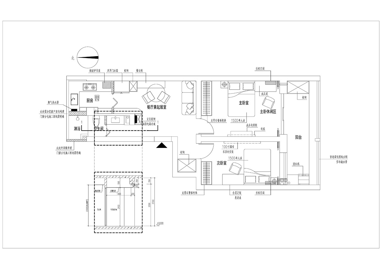
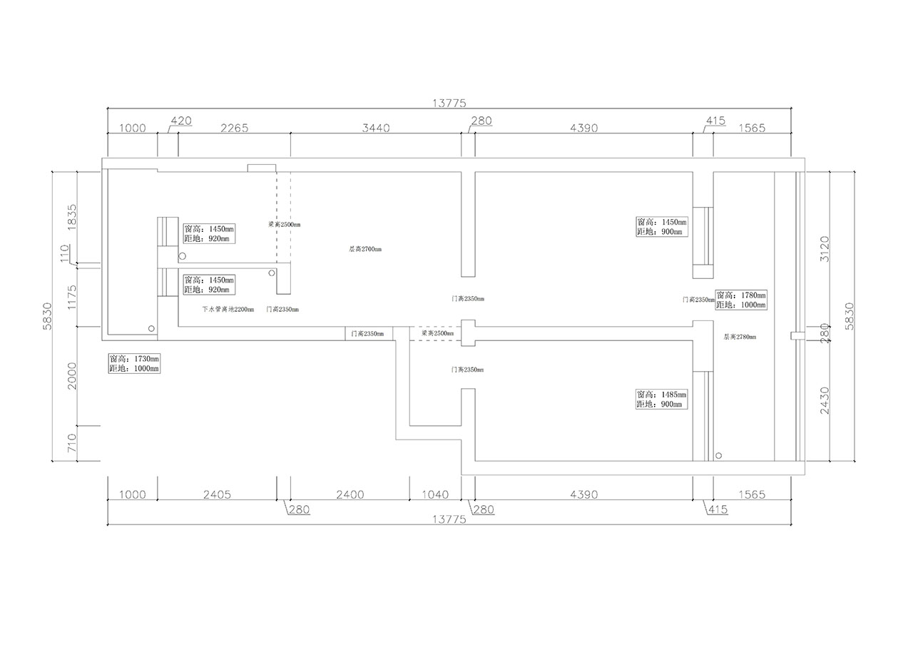
南京东久儿园小区,是上世纪80年代的单位福利分房,为标准的“赫鲁晓夫式”住宅楼。位于2楼的本案,都有着苏式住宅的一个共性特点:卫生间落水管净高较低。设计将通向卫生间的过道吊顶,设置成内弧形,藏住了只有2.1米净高的落水管同时,又从视觉上提高了空间感。此外,大吊顶与悬浮柜的相应弧形,呼应了整个空间关系。整体空间采用了原木色与白色,用彩色的收纳框来跳脱空间里的色彩。布局上,厨房与卫生间外扩,取消了原始户型的北阳台,更加充分的利用了建筑使用面积。项目于2023年设计并施工,2024年落地交付。
项目名称:南京东九儿园
项目地点:南京
设计机构:南京梓泉建筑设计顾问有限公司
设计主创:张宁泉

有维建筑设计

有维建筑设计

蜚声设计

山止川行设计

耕造建筑设计

木卡工作室

木卡工作室

木卡工作室

舍近空间设计事务所

系园建筑设计工作室

两间室内设计

PONE普利策设计

氹边建筑工作室

木卡工作室

愈宅设计

愈宅设计

涵舍空间设计事务所

崔庠工作室

川岛雅矢建筑环境设计室

山地土壤室内设计

隅间空间设计工作室

边学婷设计工作室

未止工作室

七巧天工设计工作室

来去建筑工作室

尺度森林工作室

Wutopia Lab

一绗建筑工作室

辰境设计

MOU建筑工社

听任工作室

未止工作室

NOTHING DESIGN工作室

辰境设计

构看建筑设计

wooom studio

辰境设计

有维建筑设计

蜚声设计

木卡工作室

木卡工作室

O筑设计

O筑设计

那漠含风设计