城市生活总体上属于定居模式,通常人们以居住地为圆心再向外展开外溢到街道,连接着工作地以及生活社交,构建起紧密相连的生活网格。
住宅作为家庭生活的起点,其功能不仅仅局限于日常起居,也常常为职业活动提供场所。一个舒适的生活区域常常由熟悉的日常事件展开,例如吃饭、睡觉、洗漱、与他人联系又或者双手劳作 ,这些日常生活的点滴构建起一个复杂而隐秘的空间结构。
此次项目的委托方的职业是一名艺术工作者,对居所的愿景是最大程度的保留自然肌理并结合个人的收藏偏好将空间融合为一个可对话的生活场所,回归居住最本真的状态。如何通过设计最大程度保留生活的真实性以及如何利用空间特质与人产生亲密的连接是我们此次设计思考的方向。
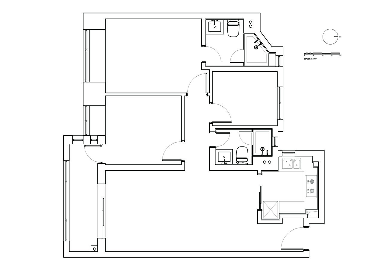
项目场地位于上海市嘉定区,整体面积约为105平方的精装修住宅。原始空间格局为三室一厅的标准化城市住宅模板,根据业主提供的委托清单,我们试图重构其内部空间。
在空间规划上我们结合使用需求将三间卧室整合为两间,修正原先的规划结构,为日常物品储存提供足够的容量;对于家庭电器的布局我们将体积较大的冰箱隐藏在过道前端,表皮饰面跟随整体空间,最大化的减少大体积物品带人们的视觉压迫;厨房连接着餐厅以及会客区域,通过设计减法将墙体消隐,扩宽活动空间的使用面积。
过道在家庭空间中起着重要的连接作用,入口处的石板是此区域重要的转接环。在日常的城市生活里我们通常会用错层来连接多个场所,例如高架天桥,地下通道或者阶梯走廊,这些上下错综的关系都会通过第一个踏步来进入另一个场所。住宅空间的过道也是如此,在设计上,我们将高度做了调整并使用天然石板做了替代,再结合整体空间将过道用老木板包裹赋予独特的材质纹理。
空间材质的选择上我们使用了大量的循环可回收材料,通过设计整合赋予材料新的生命。例如墙面木板,门锁拉手以及布艺选择,洗漱区域的面盆以及淋浴间的隔断我们也选取了经过自然氧化多年的老石板,住宅家具的选择大部分是中古为主,在服务美学的同时也保留了地方特色和历史连续性,最大程度的减少了资源浪费。
项目名称:F住宅
项目类型:住宅空间
项目地址:上海市
建筑面积:105平方米
室内设计:杭州山地土壤室内设计
设计总监:董甜甜
完成年份:2025年04月
主要材料:艺术涂料、天然石板、老木头
摄影版权:Wen Studio

有维建筑设计

有维建筑设计

蜚声设计

山止川行设计

耕造建筑设计

木卡工作室

木卡工作室

木卡工作室

舍近空间设计事务所

系园建筑设计工作室

两间室内设计

PONE普利策设计

氹边建筑工作室

木卡工作室

愈宅设计

愈宅设计

涵舍空间设计事务所

崔庠工作室

川岛雅矢建筑环境设计室

隅间空间设计工作室

边学婷设计工作室

梓泉建筑设计

未止工作室

七巧天工设计工作室

来去建筑工作室

尺度森林工作室

Wutopia Lab

一绗建筑工作室

辰境设计

MOU建筑工社

听任工作室

未止工作室

NOTHING DESIGN工作室

辰境设计

构看建筑设计

wooom studio

辰境设计

有维建筑设计

蜚声设计

木卡工作室

木卡工作室

O筑设计

O筑设计

那漠含风设计