家乡的山间有一条小溪。溪水相互拍打去到不知名的远方,山峰沉静地矗立在原地。命运是条奔涌不止的溪流,想念是一座座沉默的山峰。
家乡的山间有一条小溪。溪水奔流而去冲破所有羁绊,像风华正茂的少年冲脱一切束缚。山峰却留在原地怀念,像被时光遗落的老父亲孑然无助。溪水是我,山峰也是我。
在人世变幻的溪流中,我找寻着与永恒群山的相处之道。溪流是我,群山也是我。
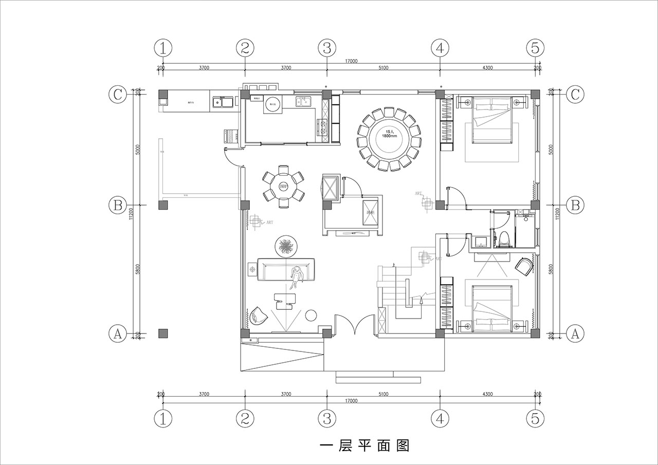
房子是在原有宅基地上建成的。需要5~6间卧室,一二层相对独立的起居空间,以应对节假日不同人群的招待。基地处于高山峡谷之中,背面靠山,两侧视线深远,只有正面与邻居家的二楼卧室相互对望。
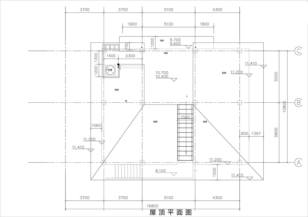
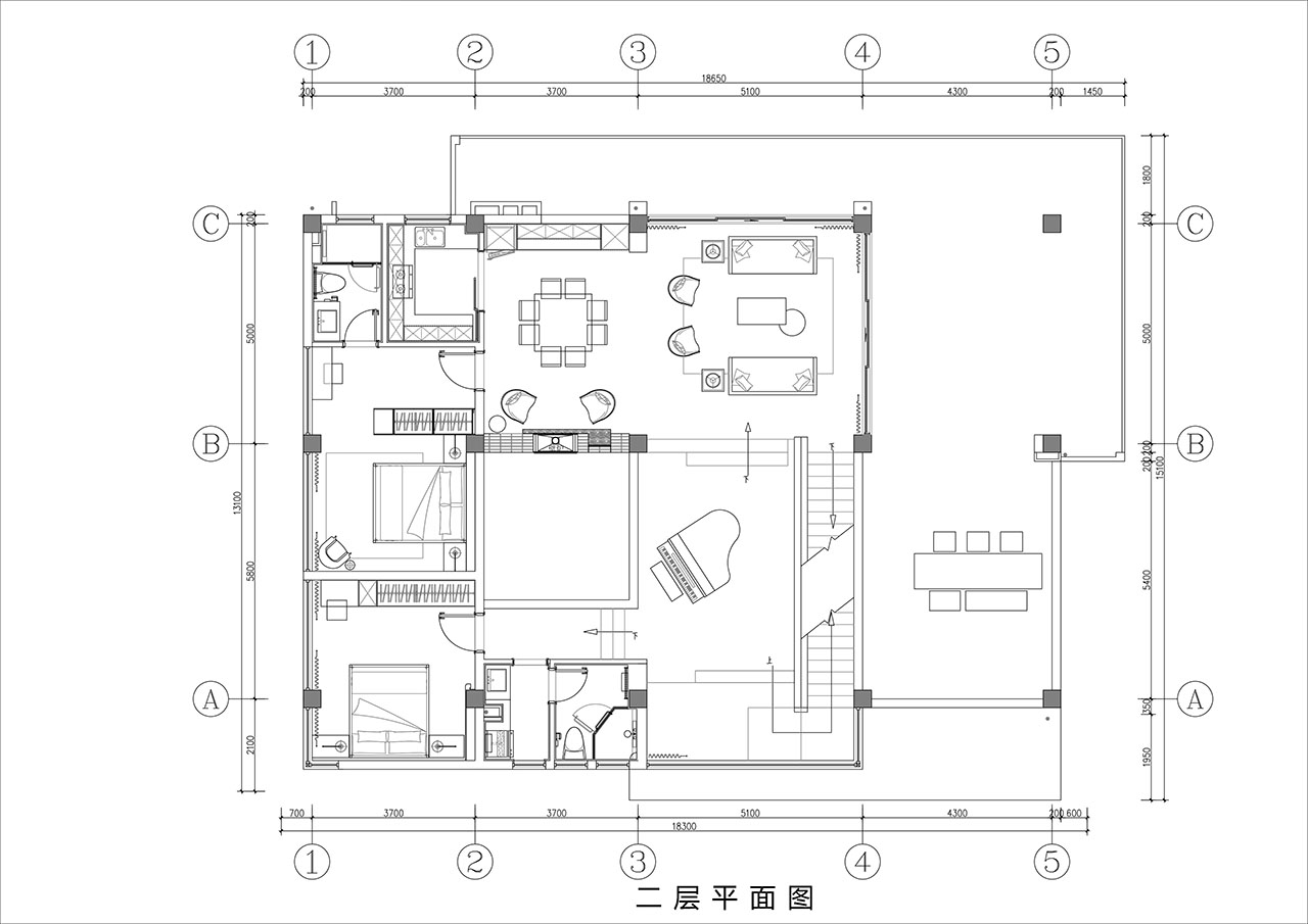
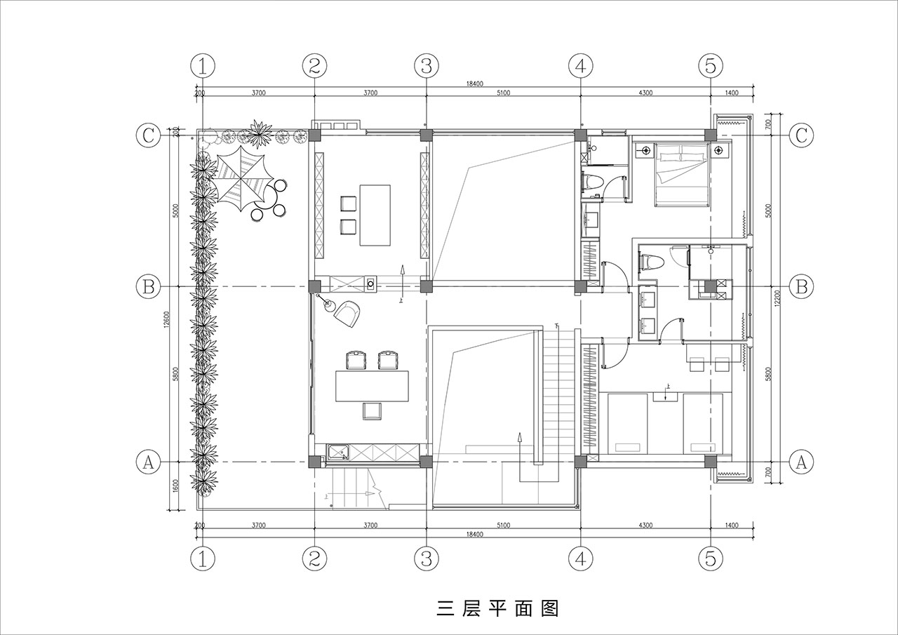
设计在原有宅基地轮廓上,首先确定两侧为主要的开窗面,并尽量避免建筑低层与邻居的对望。然后将各层体量左右错动,留出不同方向的观景平台。楼梯置于平面中部,上下楼的过程得益于体量的错动能看到不同方向的风景。二层客厅和阳台朝向前方的开口,增加了一个倾斜的植物攀爬网,将视线从邻家建筑引向山峦和天空。最后将第三层的体量再次错动,开辟了一条通往屋顶露台的路径。路径上先会看到群山脚下熙熙攘攘的屋舍,然后是直面后山的梯道。直到登上屋顶转过身来,独自面对壮阔沉静的群山。
建筑一层布置了朝向左边(东北)的客餐厨空间和朝向右边(西南)的两间卧室。二层是坐拥270°景观的起居空间和朝向左边(东北)的两间卧室。三层是朝向左边(东北)的茶室兼书房,以及朝向右边(西南)的两间卧室。
建筑最终呈现的状态,游走其中不时会遇见各处山峰带来的惊喜。为居住者与群山之间,营造了一个宁静有趣的对话与游戏场所。
项目名称:与山居
项目地点:湖北
设计团队:有种建筑
主持建筑师:刘九三

土驻设计事务所

郦文曦建筑事务所

郦文曦建筑事务所

阿穆隆设计工作室

植田建筑室内设计

小写建筑事务所

王旭潭

察社办公室

元秀万建筑事务所

中国美术学院风景建筑设计研究院

有种建筑

来建筑设计工作室

源计划

微建筑工作室

DOES设计事务所

空格建筑

空间进化

木答答木建筑事务所

神奇建筑研究室

研筑舍建筑设计工作室

梓泉建筑设计

本哲建筑

杭州也间室内设计

Studio MOR

nota建筑设计工作室

氙建筑

氙建筑

泛式建筑事务所

在场建筑

及物建筑设计工作室

博风建筑

浙江大学建筑设计研究院

Studio MOR

柯笠建筑

拾号建筑

三月设计工作室

之行建筑事务所

中国美院风景建筑研究总院-青创中心

周凌工作室

郦文曦建筑事务所

三文建筑 – 何崴工作室

借光建筑空间设计

悦集建筑设计事务所

造作建筑工作室

上滕联合建筑师事务所

庄子玉工作室

氙建筑

gad · Line+ Studio