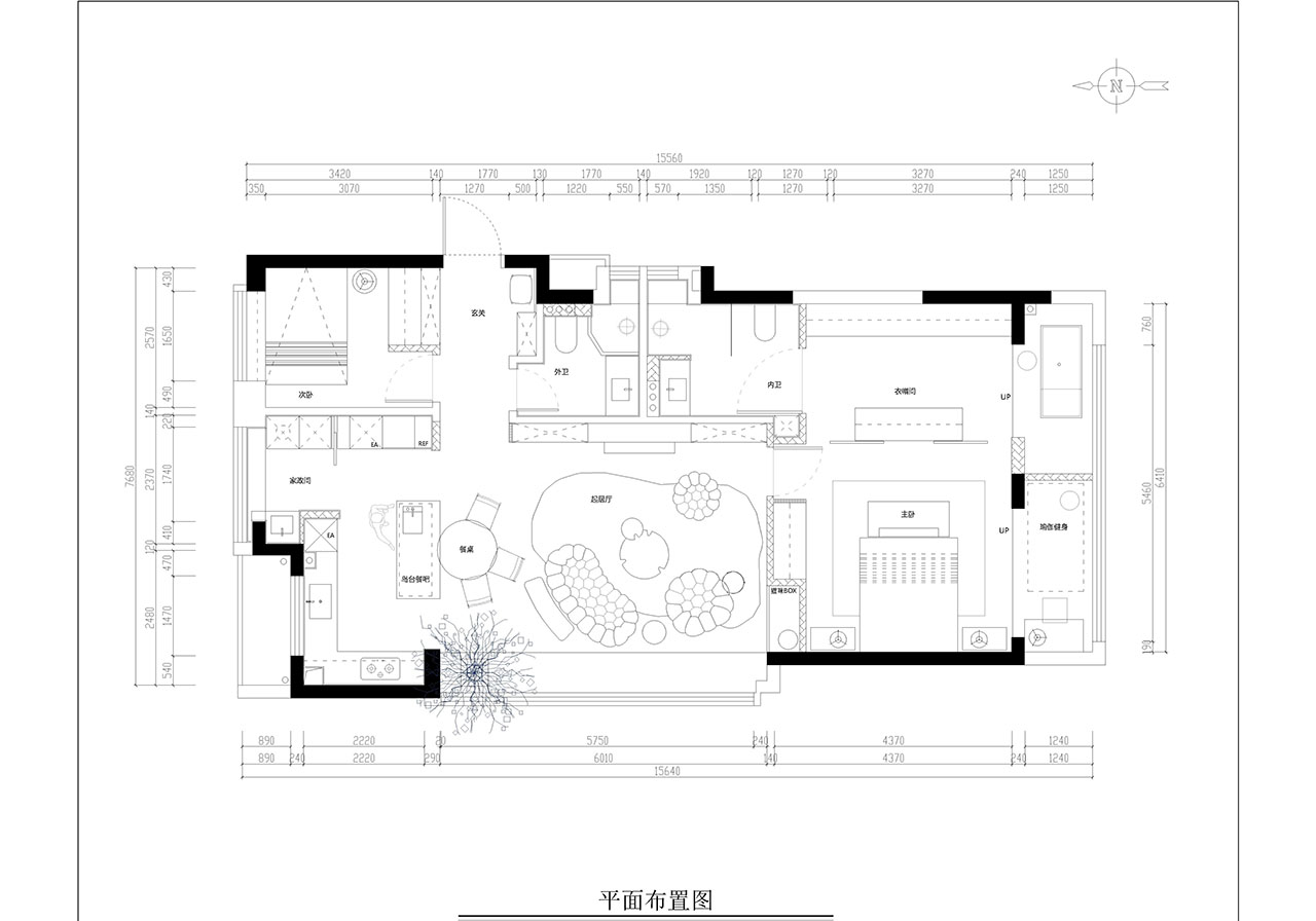
本案位于金华东阳的滨江上品,面积125㎡。是一位小姐姐的独居房,业主小姐姐对 “理想家” 有着清晰且独特的构想,希望空间能充分承载个人生活态度与审美偏好。
独居属性赋予了空间设计更高的自由度,在空间分配上我们打破了原有的格局,将四房改造成两个房间,让空间变得更加通透。对独居生活而言,空间设计的核心从来不是功能的堆砌,而是对“精致”与 “自我”的极致呼应。
01客厅
女主人喜欢舒适惬意的居家氛围,因此客厅的设计非常松弛,根据女主人平时的生活习惯,我们没有做传统的电视背景墙,而是用法式的壁炉和两侧艺术展示架来代替,冬天坐在有地暖的地板上看着壁炉里的火光,非常惬意,两侧的置物架可以放一些书籍和女主人淘来的艺术品。
女主人的独居生活还有两只小猫作伴,在客厅沙发旁边还给小猫打造了一个专属的猫爬柜。
把原先6米多长的飘窗做成了一整排的抽屉,增加了收纳空间,并且还在正对大门处设计了一处绿植角,为空间增添绿意和生机。
02餐厨区
本案女主人平时喜欢烘焙做美食,原先厨房的面积不够大,使用起来会很局促,于是将原先厨房旁边的一间房拆除,做了开放式的厨房,空间上更宽阔,用起来也会更方便。厨房的台面用了实心的不锈钢材质,不仅颜值高,而且非常好打理。烟粉色大理石的岛台非常温柔,非常符合女主人的气质,也是整个餐厨空间的点睛之笔,一旁黑色的圆桌可以根据不同的场景进行变换,可以既能用来享受精致的单人餐,也能满足三五好友共同聚餐。
03主卧
一个人住的主卧套房配置非常丰富,梳妆台、衣帽间、大浴缸、卫浴区该有的都有。原先的双阳台根据功能分区一隔为二,一边是梳妆台和瑜伽健身的区域,一边是浴缸泡澡区域。在睡房区和衣帽间、卫浴之间有双动线的移门,让整个空间的动线更加灵活多变,使用起来也会更加方便。
项目名称:东阳滨江上品
项目地点:浙江东阳
项目面积:125㎡
设计公司:涵舍空间设计事务所
摄影团队:瀚墨视觉

有维建筑设计

有维建筑设计

蜚声设计

山止川行设计

耕造建筑设计

木卡工作室

木卡工作室

木卡工作室

舍近空间设计事务所

系园建筑设计工作室

两间室内设计

PONE普利策设计

氹边建筑工作室

木卡工作室

愈宅设计

愈宅设计

崔庠工作室

川岛雅矢建筑环境设计室

山地土壤室内设计

隅间空间设计工作室

边学婷设计工作室

梓泉建筑设计

未止工作室

七巧天工设计工作室

来去建筑工作室

尺度森林工作室

Wutopia Lab

一绗建筑工作室

辰境设计

MOU建筑工社

听任工作室

未止工作室

NOTHING DESIGN工作室

辰境设计

构看建筑设计

wooom studio

辰境设计

有维建筑设计

蜚声设计

木卡工作室

木卡工作室

O筑设计

O筑设计

那漠含风设计