项目位于北京昌平区雪山村,地处城市与村庄交接之处,驾车至城市二环仅需约30分钟,在八街九陌的“大北京”里已属近便。房主是我的校友,家中这块京郊宅基地闲置多年,2022年他萌生了将其利用起来的想法,而如何使用并不确定。记得在我们第一次沟通时,他说有三种可能性,分别是:(1)作为自住的第二居所,父母有可能偶尔会住;(2)三年后作为他的公司办公室;(3)没考虑好时则出租。因此,我们的设计便开始于分别梳理这三种不同的功能需求与空间的配合关系。
随着设计的进行,我们发现它越来越像一个“组合大柜”,承载着我们和房主共同完成的一次关于城市与乡村、工作与生活是否可以兼容的建设实验。
实验一:复合功能
如何将看起来各不相关的三种功能复合进同一空间,让主人回转于居住、办公、展示与商业等使用状态之间,并达到自洽,是我们在这里展开的第一个实验,与建筑学有关。
1.居住需求
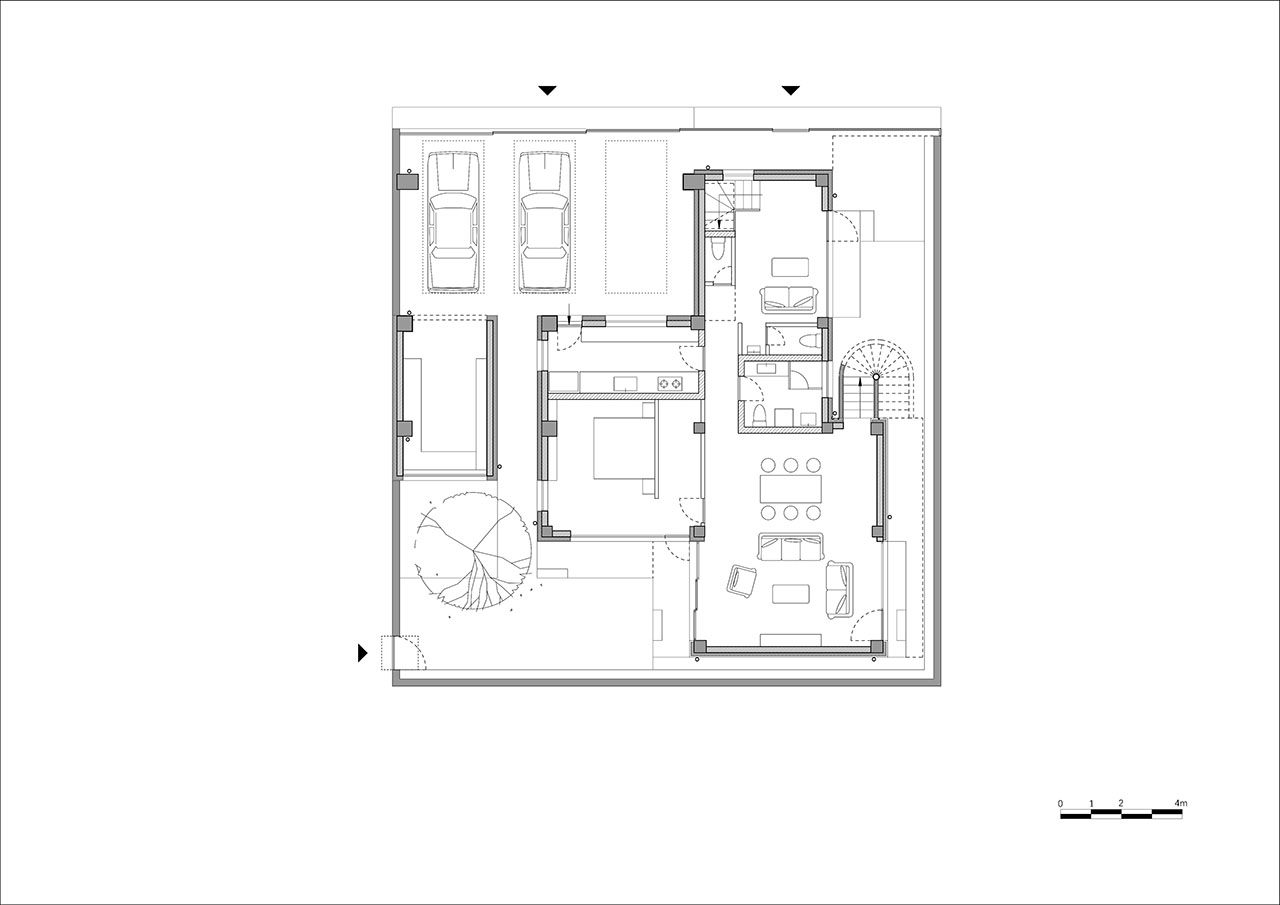
项目位于村庄东北角,与另外几户住宅共处于同一地块,地块毗邻村庄东侧的城市道路。场地基地边界方正,北侧和西侧面向村庄内部道路,场地的东与南则紧挨邻居院墙。房主的空间需求类似传统的三室两厅,不同的是希望每一个房间都能直接进出院落,方便照料花草,但又保持与邻近院落相隔的私密性。
首先,我们将乡村住宅“房包院”的常规空间关系进行反转,集中建筑体量,令不同尺度的院落环绕于建筑四周,也为相邻的室内空间赋予更为模糊多变的可能性。与此同时,为了保证居住私密性,我们把建筑形体做成退台,为二层的卧室提供了露台空间,并将围墙提高到1.6米,避免与邻居视线互相干扰。居住功能的人行出入口被设定于场地西侧,紧邻村内道路,与南侧亲戚家大门临近,方便串门。
在日常工作之外,房主热衷于车辆机械,需要至少三个车位的车库,这一需求也几乎确定了临主路的一侧必须留给车库功能。于是,三车位车库以平移门的形式面向北侧村路展开,大门可整面打开,既可满足办公等对外空间的出入功能,又以开放的姿态打破乡村街面的封闭惯常。
同时,街面空间也与内部庭院在两个方向上贯通连接,结合院墙的开放与封闭,为院落提供了内外属性转换的可能。庭院、露台与屋顶平台最大程度地将建筑与自然环境融合,每个房间均可直接通往室外,因使用功能不同造成的空间感受差异,在共同追求景观渗透性的过程中得以消减。
再者,房主及其父亲则都喜好手作加工,需要一间手工坊,我们将手工坊与车库相结合,兼作3D打印加工空间,用于木作加工和雨水节能配件的设计与制作。如此一来,在缩短操作流线的同时,又令其独立于房屋主体之外,确保操作过程中产生的灰尘与噪音仅与户外交换。
随着房子建成,这个手工坊几乎是最先投入使用的房间,房主做了非标的排水配件,房主父亲亲手做了实木门牌,甚至为房子设计了logo。
2.办公需求
房主从事景观水系统相关设计及研发工作,之前的主要办公地点位于二环内中心城区,但由于同事天南海北分散各地远程办公,办公室的使用率并不高,因此,结合雪山村相对便捷的交通条件,他便有了将本项目作为第一办公室,承担日常办公事务的想法。虽然最开始只是一种设想,但设计却要顾全。
室内以流畅的大空间为主,方便根据需要自如地定义使用场景。
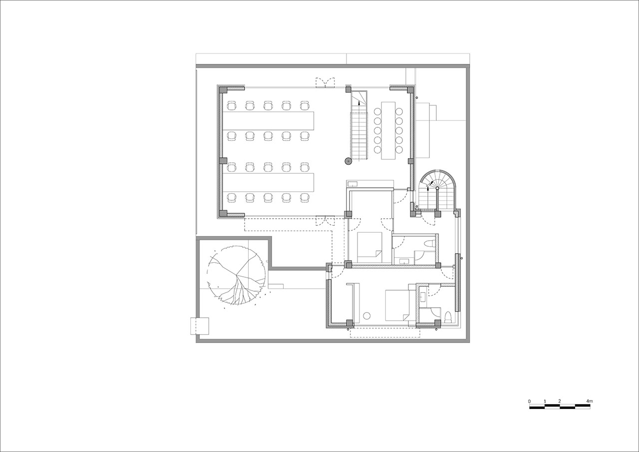
一层公共空间与庭院组合相伴,将空间的流动性从室外延伸至室内。灵活的大空间目前作为展示空间,也可扩展为办公空间或起居室。在二层东南角保留居住功能,其余开敞空间则为可容纳十几人的开放办公室。临街北侧设置办公独立出入口、庭院门厅、独立楼梯和卫生间,如此一来,保证跟居住功能互不干扰的同时,也留了一道门来转换办公和居住的分离或连通。
经过一年多的设计和建造,房主已经决定在城里仅保留一间办公室用于接待洽谈,其他办公皆迁至本项目。除办公外,同时兼顾一部分展示功能,用以展示科研设计成果,相应地,原来居住功能的起居室便转换为展厅。并且,房子本身也是一座展示雨水收集再处理技术成果的展品,地面和屋顶的花园更是其景观种植的实验地。
3.经营需求
原初房主出于投资建设回报和场地周边需求的测算分析,认为该项目在临街商业、办公及居住等方面具有长期租赁潜力。事实也是如此,在建筑刚刚完工时,房主曾临时放出招租广告试验,得到的反馈证明确有此类需求。而在设计过程中,房主对环境更加熟悉后,想法也逐渐发生了变化——从整栋长租转变为自主经营。因此设计的重心也随之发生变化,希望此建筑能够作为样板间,以点带面,为雪山村增加公共文化和商业空间,形成城乡结合部一种可复制的自主建设开发模式,试着把独立建设变为系统开发,为乡村带来更多价值的同时,也可获得长期利润。
与之相应的,建筑在材料构造和型体节能等方面也整合得更经济有效,减少了一些个性化的造型表达。在未来的村庄规划中,东侧市政路将拓宽,建筑东立面因此直接临街,故此扩大此处对外玻璃幕的面积,为之后开展临街经营提供条件。同时,在目前实际使用中,将原本首层卧室调整为社区图书室,面向邻里与街道开放,出入便利。
实验二:适用控制
由于上述提到的未来经营设想,我们希望这是一栋姿态中性、场地适应性强、易于复制的建筑,并且低成本且低能耗。从最终专业能耗分析的评定结果来看,本建筑基本达到了被动节能的预期。
建筑外观低调型体实用,施工工法尽量可靠普适,试着减少些我们过往常用的审美惯性和个体叙事。希望能系统批判地对待这个设计,这对于我们也是一次新的尝试。
建筑采取了被动式节能方案。除基本的体型系数考量和墙地顶保温隔热作法的选择之外,也反复比较推敲了其他因素:例如室内空间门窗开闭形成的微环境变化,屋顶种植屋面的隔热性能,各个空间中外窗的形式、大小和方位等等。结合院墙高度位置的设置,最终实现夏季通过穿堂风对流促进自然通风,同时在冬季有效阻隔西北风对建筑和庭院的冷侵袭。
结合房主的雨水节能专业经验,景观设计则由我们共同完成。庭院中及院墙下预留种植池,石块铺装根据雨水流程分为渗水区和不渗水快速排流区,并留一半屋顶覆土作为屋顶绿化种植实验区,寻找土壤与雨水之间的微妙关联,将庭院景观与屋顶绿化作为雨水回收处理设施,完成雨水收集、渗透、再利用等一系列的雨水资源有效管理。
实验三:生活范式
办公与居住,展示与加工,商业和出租,在一栋小房子里相互容纳,这里是房主可以同时触碰工作与生活的空间媒介。通过一个独立的建筑项目创造一种生活范式,为我们的大胆构想提供了勇气——在雪山村建设一个承载更多内容的、容易复制的自主开发住宅样本,这便是第三种实验的源头。
位于城市边缘区域的便捷交通条件,让房价更为低廉的雪山村拥有了得天独厚的区位优势,城市的便利,乡村的便宜,向自由拓展职业发展的群体散发着源源不断的吸引力,同时也为乡村带来新的活力引擎,把人留住、把人带来是我们的目标。
在村庄建设层面上,自由度和规划手续的可行性,使得房屋租赁与改建工作具备了化繁为简的基础条件,也给自主小规模开发带来了可能性。此建筑相邻的地块因为多隶属于亲戚邻居,他们中的许多人都有类似的建设愿望,因此随着逐步扩散开发,院墙拆除,住宅便不单是若干个独立个体,也是有机生长的小型社区聚落。
在建设过程中,房主与我们便谋划着能为这里配以更多产业支持:因从西直门到昌平北站的火车线路已经开通,所以我们计划在车站和村庄之间运营通勤班车,使火车通勤变得可行;又比如在村庄中置入供原住民和新移民相互切换使用的市集小菜场和咖啡小酒馆等等,使村中生活体验与城市生活接轨。以上策划都在规划推进中,为乡村的有机生长铺垫更多可能。
未来实验
如上,这是一个私人住宅,也是一个设计公司办公室,还是一个乡间公共活动空间。
作为基于生活方式与未来构想之上的实验,它既隶属于建筑学范畴,亦横跨在社会学界限之内。我们期望,这栋小房子的落地,可以为更多人提供一种新的生活模板与框架,最终走入新的人生时态里。
故此,我们把这个建筑作为某种批判性提案,而非解决方案;把这个建筑作为某种当代艺术行动,而非浪漫乡村的审美怀旧;把这个建筑作为某种未来社会实验,而非集体记忆想象。
项目:雪山村住宅
位置:北京,昌平区
时间:2022.8-2024.1
建筑面积:350㎡
业主:赵先生
建筑: 大料建筑 (刘阳,蔡卓群)
结构:高雪梅
水暖:果海凤
景观&雨水节能设计:北京雨人润科生态技术有限责任公司
摄影:朱雨蒙

土驻设计事务所

郦文曦建筑事务所

郦文曦建筑事务所

阿穆隆设计工作室

植田建筑室内设计

小写建筑事务所

王旭潭

察社办公室

元秀万建筑事务所

中国美术学院风景建筑设计研究院

有种建筑

来建筑设计工作室

源计划

微建筑工作室

DOES设计事务所

空格建筑

空间进化

木答答木建筑事务所

神奇建筑研究室

研筑舍建筑设计工作室

梓泉建筑设计

本哲建筑

杭州也间室内设计

Studio MOR

有种建筑

nota建筑设计工作室

氙建筑

氙建筑

泛式建筑事务所

在场建筑

及物建筑设计工作室

博风建筑

浙江大学建筑设计研究院

Studio MOR

柯笠建筑

拾号建筑

三月设计工作室

之行建筑事务所

中国美院风景建筑研究总院-青创中心

周凌工作室

郦文曦建筑事务所

三文建筑 – 何崴工作室

借光建筑空间设计

悦集建筑设计事务所

造作建筑工作室

上滕联合建筑师事务所

庄子玉工作室

氙建筑

gad · Line+ Studio