项目位于北京怀柔大水峪村,大水峪在北京民宿村里比较出名,距离几个景区都比较近。甲方希望此项目的定位为轻奢。
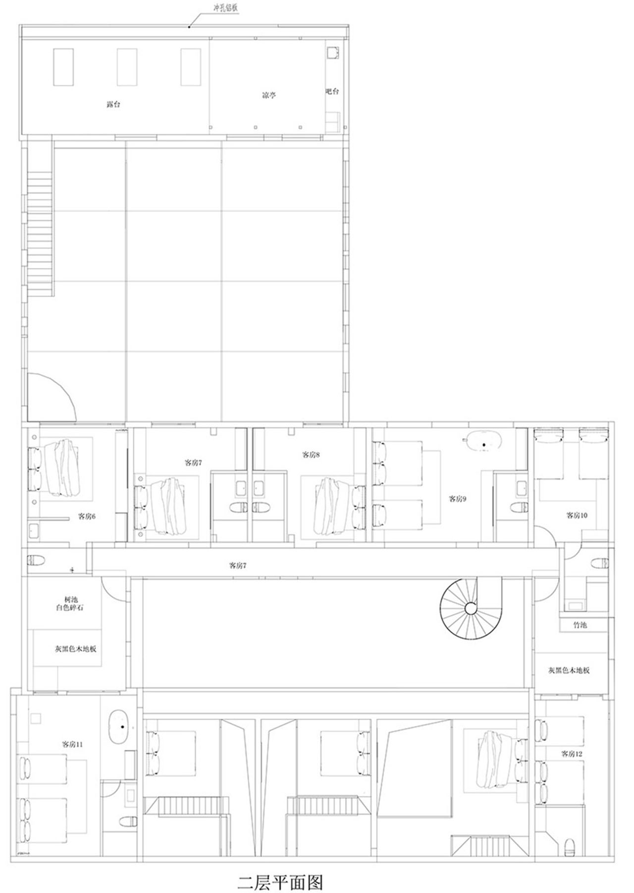
项目现状为农家院,分前后两个院,都是玻璃封闭的室内院子。设计的策略是梳理空间关系,通过外包的方式赋予新的效果,而减少对原有建筑的破坏。设计大量采用了冲孔铝板,通过对桁架,外立面,扶手,室内楼梯扶手等的包裹,内部暗藏灯带,暖黄光可以从冲孔铝板的孔洞透出来,来实现整体性。装修设计层面,通过白色,灰色水磨石和黑色三种水磨石分别对应墙顶地的装饰效果,加入哑金色金属跳色的处理,使得整体空间具有统一性。
后院螺旋楼梯形成新的视觉焦点,冲孔铝板的二次冲孔(不规则孔洞)的装置形成了新的可供住客打卡拍照的装置艺术,原有的院子的侧面大玻璃包裹为不规则洞口的形态,使得窗洞成为效果的一部分,长虹玻璃的使用隔绝了外部杂乱的环境。大厅的多个吊灯和室内设计相得益彰。棕榈树包裹了原有的柱子。
项目旨在探索尽量对原有结构最小破坏的情况下,对人的感知产生深刻的整体印象。项目的整体性是一个目标。
项目名称:300流年民宿改造
项目地址:北京市怀柔区大水峪村
建筑面积:700
项目年份:2022.1
建筑事务所/公司/机构/单位: 李根建筑工作室
主创建筑师:李根
委托方:王嘉强
结构设计:李根建筑工作室
景观设计:李根建筑工作室
施工方:于工团队
合作方:冲孔铝板 水磨石

大料建筑

苏州右见建筑装饰设计

严旸建筑设计工作室

时上建筑空间设计事务所

巢羽建筑设计事务所

蜚声设计

杭州慢珊瑚设计

也似建筑

多么工作室

大可建筑设计

虚度建筑事务所

多么工作室

多么工作室

平介设计

瑞拓设计

MAT超级建筑事务所

深建筑事务所

天元建筑设计

昱景设计

Another Sunday

GW空间设计

LEL DESIGN STUDIO

一苇建筑规划设计

野境设计事务所

nsaaa

上海小波建筑设计

介隐建筑

Studio 10

Studio 10

多么工作室

杭州观堂室内设计

不无建筑

周鑫工作室

DUS Studio

MAT超级建筑事务所

安徽科图建筑设计院

舟不离空间设计

之行建筑事务所

时地建筑工作室

边缘计划建筑工作室

超级理想建筑工作室

严旸建筑设计工作室

积木盒子建筑设计事务所

日常建造

大料建筑

灰空间建筑事务所

原榀建筑事务所

原榀建筑事务所

多么工作室

大可建筑设计

大料建筑

李根建筑设计

蜚声设计

大料建筑

偏离设计

百宸空间设计

方石建筑

大形设计

素建筑设计事务所