第一次看现场的时候,场地上几颗柿子树已经挂果,当即决定要想办法把这些柿子树保留下来,那就要把我们的三栋民宿客房,做做外形的切割和退让。
我们将ABC三栋民宿形成一个向着草坪和池塘的围合,因为自身的切角形成了形态互补的关系,群体之间又有着一种向心力来统一。ABC三栋用一个细柱钢结构连廊相连,保留的老宅只剩下墙垣。ABC三栋正负零处在和老宅同一个水平面上,它们与南侧草坪的高差用看台式台阶来处理,这些台阶周边的挡土墙取材于村落里垮掉的老房子的墙体毛石。
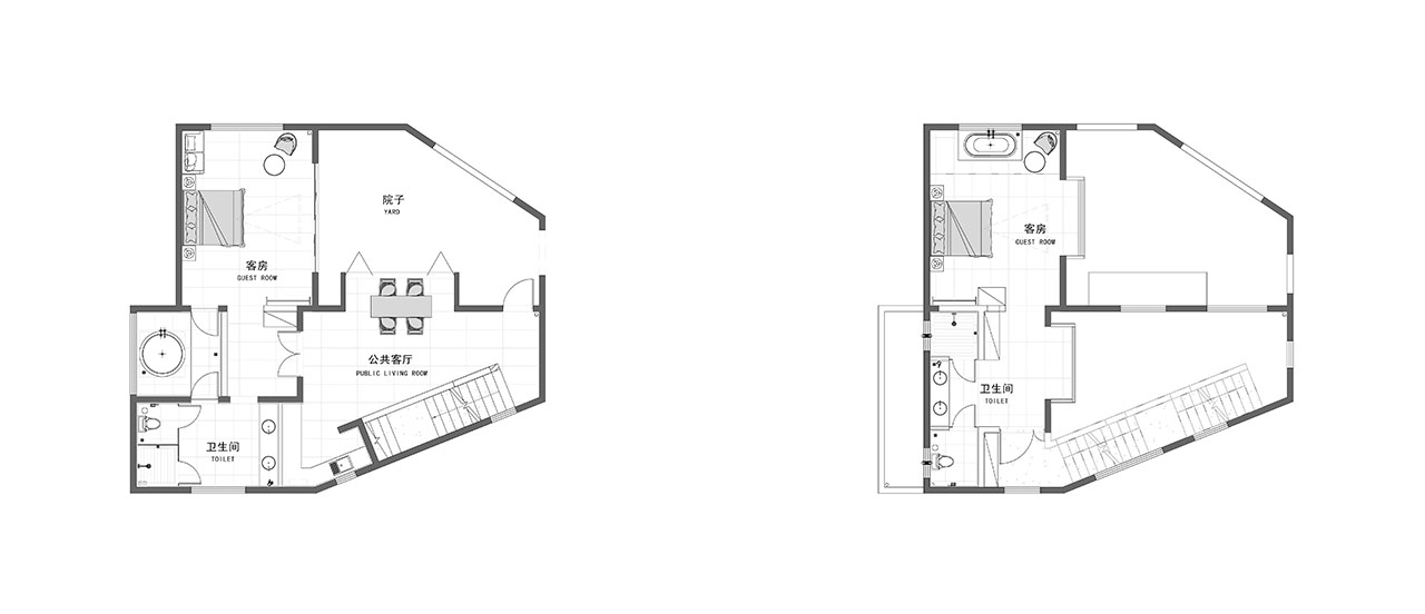
三栋民宿都是一个平面母题的变异,建筑平面都是L形的实体+一个虚的内院,但空间却有着不同的参差:A栋内院被封了屋顶,开了天窗,形成一个半室外的灰空间;B栋和C栋内院都是露天的; B栋的客厅则贯穿了两层空高,而屋顶也布置了天窗。
在立体形态上,三栋的母体是顶面被斜切后的六边柱体,各个立面和顶面则开挖了各种不规则多孔布局。
A栋面积最大,一层稍微高点的设计方便作为公共餐厅和客厅之用。它面向池塘和入口道路一侧是完全可以打开的落地玻璃折叠门;面向西面的老宅的玻璃窗,落地无框,可以看到泳池。保留的几棵构树从木地板上生长出来。二层是两居室的套房,露台的墙体开洞正好把户外保留的柿子树形成了框景;客房内的长条窗则开向了门前的法国梧桐的一个枝条;卫生间浴缸边的大无框玻璃窗则对着法国梧桐的主干。
B栋亮点在于两层高的客厅和墙面、顶面多孔的开窗;另一个亮点,是卫生间单独的圆形浴缸,一侧就是落地玻璃。
C栋一层做了粉色布局;二层结合比较高的层高做了滑滑梯,卫生间马桶上边的横向窗户,也是最佳的取景位置。
三栋民宿的外墙都是木纹清水混凝土。
不需要保温功能的院子外墙、楼梯间外墙,就是双面木纹清水混凝土;房间外墙就是单面木纹清水混凝土+内保温处理;在浇筑顺序上,完成一层清水浇筑后,等拆模后再完成二层的支模和浇筑,一二层之间用一个工艺缝来分开。
三栋民宿内在核心是其适宜的尺度和人在其中的游走关系。自然、素材与身体,是这几年我做小建筑所总结的一个基本逻辑,是手法,也是哲学。
项目名称:柿柿如意·南野际民宿
项目地址:武汉市黄陂区 木兰暖村
项目规模:607.71㎡
业主单位:湖北中科农合发展有限公司
设计单位:UAO瑞拓设计
主创设计师:李涛
设计团队
建筑结构:张杰铭、谈平、龙可成、孔繁一
景观规划:陆洲、申剑侠、张坤、林静、付余
室内设计:晏罗蒂、杜雯欣、周柏涛、白玉凡
实习生:何岱恒、肖博洋
施工团队:武汉楚耀建设工程有限公司
设计时间:2022年9月-12月
施工时间:2023年5月-11月
主要材料及品牌:
木纹清水混凝土墙体(现场浇筑)、铝镁锰屋面(雅美特)、铝合金门窗(森普)
结构形式:钢筋混凝土框架剪力墙结构
中文:李涛
摄影:然也空间建筑摄影_贾然,此间建筑摄影_赵奕龙

大料建筑

苏州右见建筑装饰设计

严旸建筑设计工作室

时上建筑空间设计事务所

巢羽建筑设计事务所

蜚声设计

杭州慢珊瑚设计

也似建筑

多么工作室

大可建筑设计

伍米尺建筑设计事务所

间筑设计

虚度建筑事务所

多么工作室

多么工作室

平介设计

MAT超级建筑事务所

深建筑事务所

天元建筑设计

昱景设计

Another Sunday

GW空间设计

LEL DESIGN STUDIO

一苇建筑规划设计

野境设计事务所

nsaaa

上海小波建筑设计

介隐建筑

Studio 10

Studio 10

多么工作室

杭州观堂室内设计

不无建筑

周鑫工作室

DUS Studio

MAT超级建筑事务所

安徽科图建筑设计院

舟不离空间设计

之行建筑事务所

时地建筑工作室

边缘计划建筑工作室

超级理想建筑工作室

严旸建筑设计工作室

积木盒子建筑设计事务所

日常建造

大料建筑

灰空间建筑事务所

原榀建筑事务所

原榀建筑事务所

多么工作室

大可建筑设计

大料建筑

李根建筑设计

李根建筑设计

蜚声设计

大料建筑

偏离设计

百宸空间设计

方石建筑

大形设计

素建筑设计事务所