游戏民宿·
2020年底,北京怀柔水关长城附近,我们同时为小喜民宿设计了三个院子,比起叫民宿也许乡间旅店更为贴切。
我设计也开过此类旅店,会喜欢能够“脱离日常”居住体验和具有“此时此地”生活方式的。而作为载体的房子,首先并不是“家建筑“,因为鲜有主人的真实生活与记忆,却更像是具有上述特点的“主题乐园”,在真实与幻境间抽离往复的游戏罢了。
既然是游戏,必然有规则,业主要求简明,尽量保留现有房屋的前提下三个院子三个模样。而具体的玩法,我们来编。
危险长城
场地难得,明长城近在咫尺,强烈的特征成了不可忽略的吸引,反而使得我多少有些排斥。
我的习惯是找这事跟人的情感关系,而长城何以动人?恰因其超人的存在。它并不源于埃及金字塔,纳斯卡线条那种人类与神对话的情由,长城是由“危险“而来。因对“危险”的恐惧,而择选了最“危险”的山脊,这足以改变大地维度的能量和勇气,即使我们从小熟知,但当亲身所处,仍会被情理之中的意料之外所不禁动容。
因此,在安身为本的建筑中制造些许“危险”挑拨,倒是让我提起了兴致。是否会带来不同的刺激和力量呢?我不知道,但好奇。
于是便把这场游戏设定为关于“危险”三出戏。
第二出戏 《猫和老鼠》
生物多样
翻过鹞子峪堡北面山梁,来到二道关村口,遮天蔽日的核桃树林使人一下凉爽轻松了许多,而第二出戏的院落正在树林后探头探脑。第一次进入院中,7、8只小猫正在嬉闹,2只土狗摊懒在阳光下,一点没有看家护院的意识,几只母鸡倒挺精神,来回溜达着无所事事。
这番场景让我想到动画片《猫和老鼠》中,貌似危机四伏实则共栖共游的奇妙画面,换个当下的词,“生物多样性”嘛不就是。而年轻人的共居空间似乎有着类似属性,尺度上的亲密,时公共时私密,忽远忽近,撩拨着彼此的危险关系。
胡同森林
而如何建立这种多样共有的生态呢?学习我所熟悉的北京胡同也许是个办法。
胡同中,几百年前的古建,几十年前的违建,近几年的新建交织在一起;光着膀子下棋的大爷,上班求学的知识分子,探店摆拍的网红小姐姐皆是时空伴随者,这里的所有貌似鱼龙混在,但若真正居住其间,感受到的却是丰富生命活力下的宁静,似森林大海包容共生。
胡同居住空间尺度较小,人们之间的距离感私密性慢慢模糊,外向的空间属性也使得人们的性格越来越外向,慢慢形成了“北京人都特能聊”的群体画像。虽不绝对,但确有此种空间改变行为甚至性格的因素在,而这,恰恰成为我们试图营造亲密热络的空间原型之所依靠。
尺度缩小
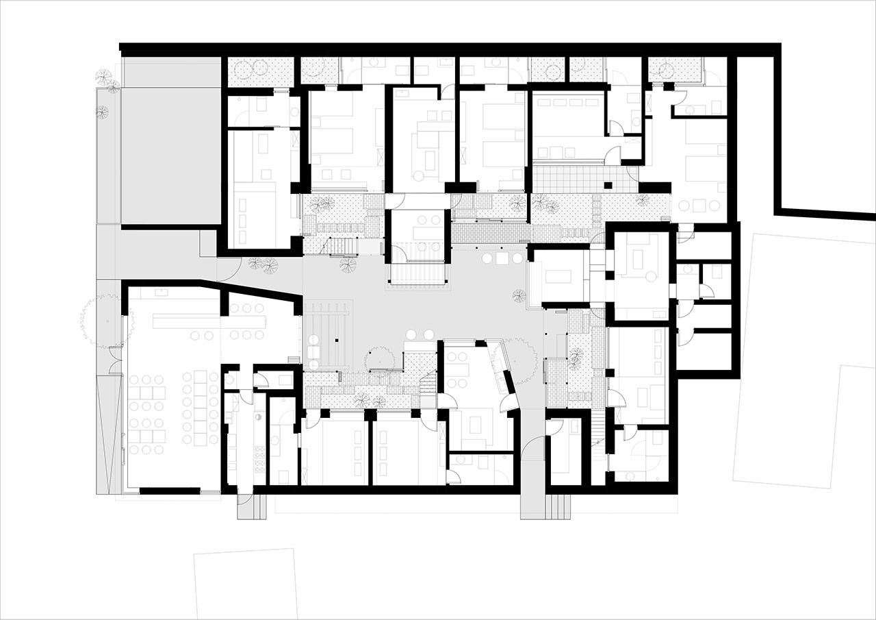
院落占地近600平米,原有房屋全部保留,加建活动室后,建筑面积400多平米。在此并不宽敞的空间内,我们细分出13个院落27个房间,容纳20来人的生活,使得居住密度逼近胡同大杂院的极限尺度关系。
在此基础上,以“拼贴式”的建构来营造无控制的时间感,同时多个层级系统彼此嵌套,统规于某种复杂关系下的亲密和宁静,是细致操作后渴望获得的空间氛围。
拼贴建构
第一级,公共餐厅,厨房,游戏室,中心院落。与院外核桃林相接,最为公共的区域。
第二级,居住空间划分为三个可拆可合的组团,各有相对私密的活动室,小庭院,露台,卧室。其中不同形态的活动室均对中心院落敞开。红砖与水泥板的墙体;木板和红砖的地面;钢柱与木梁的骨架,波纹铝板的屋面,或躲避树木或收纳风景的各异窗口,共同组成了开放而放松的形象。
第三级,中心院落周围散落着5个小庭院,他们半遮半掩的把卧室包裹起来,像窗帘一样达成灵活变化的私密。相较于起到遮蔽隐私的实用性,我们更希望他们来打破秩序,无忌传统,肆意生长出丰富而自由的气息。
第四级,8间卧室,形态各异。相邻墙体由灰色吸音毡包裹,对面墙体则用波纹金属板引入变化的光影。桦木多层板墙裙刚刚中和了些温度,定制设计的一套金属和长虹玻璃组合家具又瞄准了冰冷的机械朋克,故意与屋外的温柔划清界限,格格不入。
第五级,屋顶露台,三部分散在小院中的楼梯和屋顶种植划分出了不同区域,若即若离间群山环绕中的天空是共有的开阔风景。内院的逼仄与天台的放肆对比鲜明。人们的距离和情绪也在这种变化间得到释放和升级。
眼神交流
迷宫一样的循环空间,边界感模糊消失,胡同般亲密的尺度和随性的建造,人们的情绪似乎在上下内外间,不停被动的接收刺激而转化着,而人们的关系又同时主动转变着距离感。就像我们相互近距离凝视对方的眼睛时所得到的勇气,打破陌生,建立信任。
名称:猫和老鼠民宿
地点:北京 怀柔
面积:用地590m2, 建筑428m2
业主:小喜民宿
造价:210万(含景观及软装)
设计:大料建筑
建筑/室内/景观:刘阳,段琦,胡蓦怀
结构:高雪梅,李平
电气:侯延铭
水暖:果海凤
照片:朱雨蒙工作室,熹游迹工作室,大料建筑
视频:朱雨蒙工作室

大料建筑

苏州右见建筑装饰设计

严旸建筑设计工作室

时上建筑空间设计事务所

巢羽建筑设计事务所

蜚声设计

杭州慢珊瑚设计

也似建筑

多么工作室

大可建筑设计

间筑设计

虚度建筑事务所

多么工作室

多么工作室

平介设计

瑞拓设计

MAT超级建筑事务所

深建筑事务所

天元建筑设计

昱景设计

Another Sunday

GW空间设计

LEL DESIGN STUDIO

一苇建筑规划设计

野境设计事务所

nsaaa

上海小波建筑设计

介隐建筑

Studio 10

Studio 10

多么工作室

杭州观堂室内设计

不无建筑

周鑫工作室

DUS Studio

MAT超级建筑事务所

安徽科图建筑设计院

舟不离空间设计

之行建筑事务所

时地建筑工作室

边缘计划建筑工作室

超级理想建筑工作室

严旸建筑设计工作室

积木盒子建筑设计事务所

日常建造

大料建筑

灰空间建筑事务所

原榀建筑事务所

原榀建筑事务所

多么工作室

大可建筑设计

李根建筑设计

李根建筑设计

蜚声设计

大料建筑

偏离设计

百宸空间设计

方石建筑

大形设计

素建筑设计事务所