项目概况
项目位于北京市通州区唐大庄村,一个保存着北方传统平房建筑形态的村庄。这里的房子由红砖砌成,具有中国古建筑的元素,彩绘图案,木结构的坡屋顶等传统特征。对这些传统建筑特色的提取与重构,是一项富有挑战性的设计任务。多么工作室受委托将原本总面积只有80平米的平房和小院改造成了一个精品民宿酒店,意在原始建筑和场地的特色条件下,以现代几何元素注入全新的内核,重塑建筑脉络,实践对传统建筑的重新想象。
重构
在这次改造中,我们希望保留传统建筑的痕迹,并在现代语境下赋予新的意义。保留屋檐的经典元素,同时简化彩绘,使传统元素在整个建筑中成为抽象的表现形式。
为了给空间注入灵魂,我们提取了原始建筑中的红色,并进行了色度的调整,将其定义为此项目的主调,颜色从此不再是视觉体验,而是精神性的表达。在建筑的外立面和室内家具中,以适当的比例贯穿其中,就像一个微妙的音符,为整个项目带来了一种诗意的氛围。
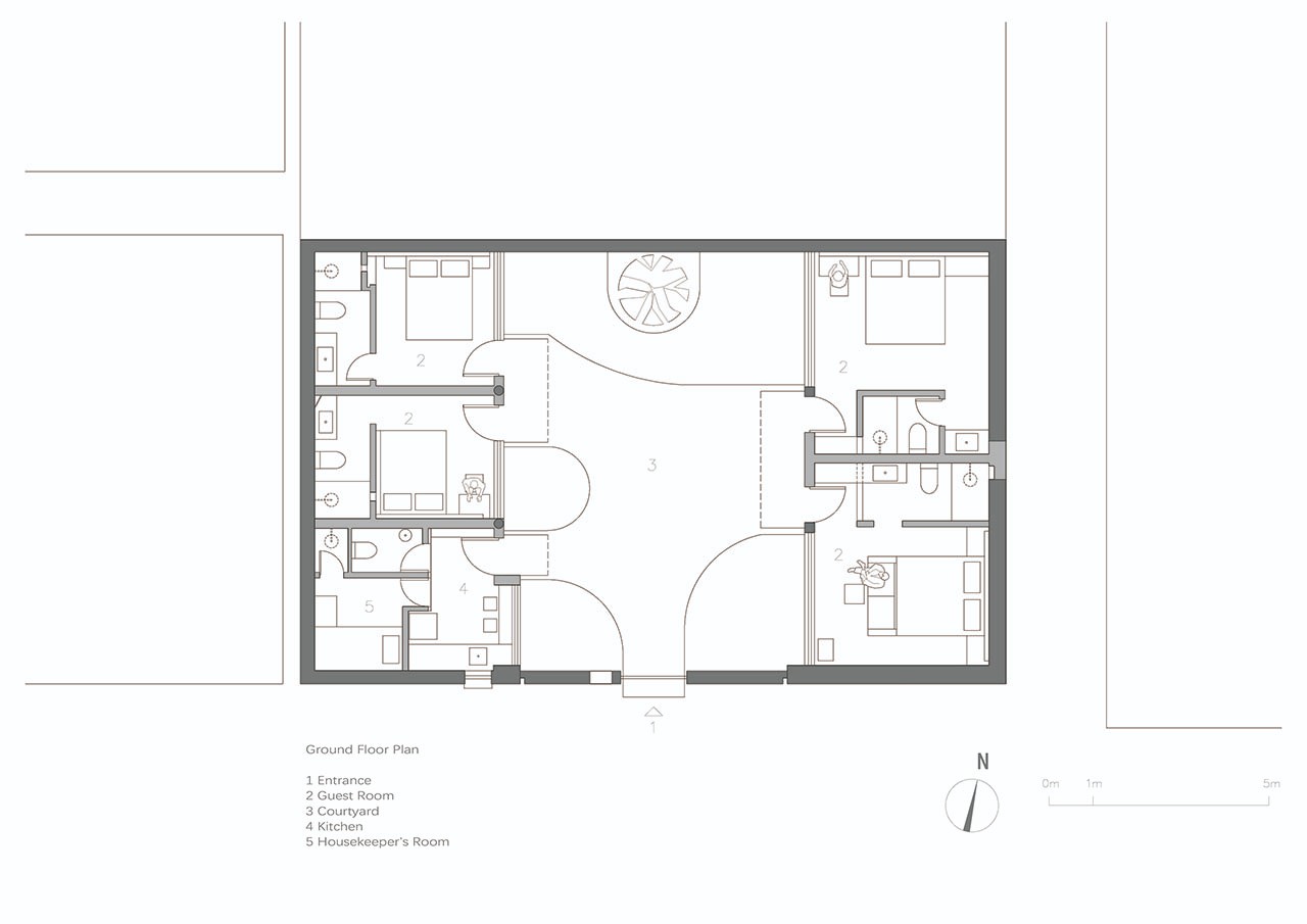
我们在庭院中引入一条主轴,以曲线的形式勾勒出几条岔路,分割出四个不同尺度的内部庭院。在视觉上营造出空间层次感,也在功能上实现了灵活性和可变性。红色火山石铺就的景观区为建筑增添了一抹别致的色彩,而水泥路面则流向各个客房空间,引导着客人行走的方向和空间范围。此外,我们用具有张力的几何形状构建了客房入口,使其具有一种新京味儿的入场仪式。室内原本面向院子的墙体被拆除后,大面积的落地玻璃代替了相对封闭的窗墙体系,室外庭院与室内空间就此成为交替的风景。
我们试图在现代的脉络里展现古老的韵律,用空间让时间的记忆共生。在旧有建筑的坡屋顶下,将屋脊部分打开,展露出原有的木梁,又在屋顶剖面关系上做出变化,用曲面勾勒出传统的坡屋顶形象,将古老的建筑语言融入现代的空间里,让历史在现代里得以传承。在这个4.1米挑高的空间下,我们设计了柔和的间接照明,每一条光线都在勾勒空间的轮廓,给人以具有精神性的空间体验。
设计手段化解施工困局
这个项目是我们迄今为止最具挑战性的小项目之一。一个令人困扰的问题是业主没有请专业的施工单位,而是雇佣了散工来进行施工。这导致工人的水平和责任心难以掌控,对于项目的完成度造成了很大的困扰。在经历了一系列施工错误之后,我们做出了一个决定:通过设计的手段深入介入施工,尽可能地减少施工方的犯错机会。
我们将室内所有的家具、柜体等都设计成了预制拼装形式,无论是明显可见的构件还是隐藏在内部的龙骨,每一块木板都被精确地定位在特定的位置上。通过这种方式来解放施工师傅的大脑,只要师傅按照我们提供的拼装图纸进行操作,最终的效果就能与设计图纸契合。这种设计策略不仅减少了施工过程中的错误和不确定性,还提高了施工效率。这也源自于工作室多年来的实践经验和设计手法,将传统榫卯节点简化并应用于家具组装中,不仅仅是为了实现功能性,也是美观和艺术性的表达,以符合项目自身的风格和理念。
项目信息
项目名称:寸二民宿
项目地址:北京,中国
建筑面积:88㎡
用地面积:150㎡
设计方(建筑/景观/室内/家具设计):多么工作室
主创建筑师:盛乐,王维
设计团队:周腾,豆会会,王春浩,赵丁一
设计和建成年份:设计时间2021年,建成时间2023年
摄影版权:多么工作室

大料建筑

苏州右见建筑装饰设计

严旸建筑设计工作室

时上建筑空间设计事务所

巢羽建筑设计事务所

蜚声设计

杭州慢珊瑚设计

也似建筑

多么工作室

大可建筑设计

伍米尺建筑设计事务所

间筑设计

虚度建筑事务所

多么工作室

多么工作室

平介设计

瑞拓设计

MAT超级建筑事务所

深建筑事务所

天元建筑设计

昱景设计

Another Sunday

GW空间设计

LEL DESIGN STUDIO

一苇建筑规划设计

野境设计事务所

nsaaa

上海小波建筑设计

介隐建筑

Studio 10

Studio 10

多么工作室

杭州观堂室内设计

不无建筑

周鑫工作室

DUS Studio

MAT超级建筑事务所

安徽科图建筑设计院

舟不离空间设计

之行建筑事务所

时地建筑工作室

边缘计划建筑工作室

超级理想建筑工作室

严旸建筑设计工作室

积木盒子建筑设计事务所

日常建造

大料建筑

灰空间建筑事务所

原榀建筑事务所

原榀建筑事务所

大可建筑设计

大料建筑

李根建筑设计

李根建筑设计

蜚声设计

大料建筑

偏离设计

百宸空间设计

方石建筑

大形设计

素建筑设计事务所