城市中心与城市观察中心
这里是复杂城市空间的观察装置,
这里聚集建筑敏感、艺术敏感、城市敏感的人群…
当独立的个体在特定的时空中彼此产生「联系」,那么我们希望这种联系是特别的、持久的、印象深刻的…
这里是Space1·一所
在设计中,我们试图保留着空间最基础的原始空间构造,相对质朴的材料与颜色形态各异的椅子塑造了空间的性格。随着光的加入,不同时间赋予空间不同的感受;智能化灯光系统,为空间提供多样的可能性。大量的黑作为空间的「留白」,在黑色的衬托下,让每一个人和每一次事件都成为主角。
复合功能的房子与房子
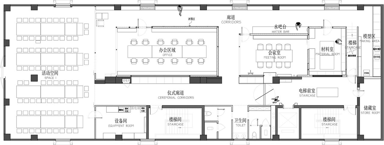
在层高7米的大房子里,为了最大程度的保留建筑内部坡屋顶,同时考虑了暖通、采光等基础问题,我们决定把一个大尺度的空间划分成几个不同功能项的小尺度单元。
利用「在房子里盖房子」的空间嵌套手法,我们缩小了空间的尺度,利用体量差排列出错落有致的独立空间:设计空间、会议空间、材料室、会客空间、模型室与公共空间Space1。
廊道中的多样片段
建造好这些「房子」,一条回形廊道也就自然形成了。设计利用蒙太奇的方法,在外廊中将不同场景切片进行排列组合,完成空间叙事场景转换流畅连贯的表达。内廊则是用于事务所内部的多功能空间,即提供日常的交流、休憩、茶歇等日常活动。最终内外两条廊道在Space1完成相交,自然地串联起空间内的动线。
自然型的系统
在这个大挑高空间的房子里,我们首先利用缩小空间尺度的方法,有效解决了能耗问题。
置于内廊窗边的工业风扇降低能耗的同时提供更大的空气流动。但「在房子里盖房子」之后,空间的采光受到一些遮挡,因此我们透过杜邦纸解决采光问题,来实现自然光的最大程度的进入房间。
作为内部空间的划分,杜邦纸的高反射率总能使空间中的光线形成漫反射,而材料本身在一天的不同时刻也会呈现出丰富的视觉效果。同时杜邦纸的轻质与混凝土的厚重形成虚实对比。
同样与混凝土形成呼应的还有陶砖。陶砖自带的野性和原生感与粗粝的混凝土自然过渡,相互呼应。
以内外回形廊道为依托,我们建立了自然性系统,在Space1和内廊空间我们预留了沿墙的种植箱,形成可以环绕整个空间的自然景观。为了与空间整体相融合,在植物配置上,我们选择了在室外景观常见的多年生植物。
复合的颜色状态
空间整体色彩协调,加之导视系统中少量的撞色、不同质感的材料选择在相同色系中融合,形成富有层次感的色彩体系。
ZOO建筑设计事务所以“仟物栖所”作为核心理念,面对高度城市建筑发展,试图从福利角度从新定义建筑对于所有生物的意义与价值。有机、可持续、自然、创造力是我们关键词。
面对行业的多重变化,我们虽然在城市高密度中心,但是我们心怀广袤的自然,向城市发起挑战,征服它,这就是我们的建筑意志。
项目名称:仟物栖所事务所改造
项目地址:天津市和平区津湾广场
建筑面积:700㎡
项目类型:建筑/室内/改造/景观
设计方:仟物栖所
项目设计:2023年5月
完成年份:2023年10月
设计团队:温佳鑫、蒋明辰、薛钰蓉、李步密、耿仲强、张书仪、彭真、王雨萱、白宇晨、胡奇轩
材料:杜邦纸、陶砖、混凝土
摄影版权:©Daily建筑摄影-刘国威

山地土壤室内设计

边缘计划建筑工作室

未午建筑事务所

Say Architects

海浪创物

松涛建筑设计事务所

喜玛拉雅设计装修

凡筑设计

全文室内设计

超级番茄设计

千墨设计

VANISHED DESIGN

拙人营造

有田建筑空间设计

陶磊建筑事务所

愈宅设计

伊波莱茨建筑咨询

米凹工作室

隐一设计

未止工作室

十合设计

非知名设计事务所

拾集建筑

相与还空间设计

柒构设计顾问

凡西空间装饰设计

林礼聪工作室

山山园林

肃画建筑

谱观建筑设计

非知名设计事务所

脚本建筑研究室

囙设计工作室

IARA设计研究事务所

深点设计PDD

凿枘设计

PMA普玛建筑设计事务所

直线建筑设计事务所

琢磨设计

由里空间设计

家语设计

熹维室内设计

介介工作室

阐领建筑

SLT设计咨询

Say Architects

深思维设计

纸间营造

黑白木设计工作室

CUN寸DESIGN

里所空间设计事务所

艾洛设计

B.L.U.E.建筑设计事务所

NOTHING DESIGN工作室

十拓建筑规划设计事务所

里外工作室

里外工作室

深度进化设计事务所

立方体设计事务所

有维建筑设计

有物设计顾问

隹聿设计工作室

慕达建筑