愿建筑是诗,温暖每一个人
空间并非填充物体的容器
而是人类意识的居所
我们诗意地建构家屋
家屋也灵性地构建我们
身处喧嚣而繁忙的都市,快节奏、紧张、高压,已经成为现代都市工作者的日常。办公空间,一个我们每天相处八小时的场所,应该具有怎样的空间特质?
我们希望是诗意、温暖、柔和,给人以力量。
‖ 城市框景 City Framing
慕达建筑成都新办公室的选址位于东二环高架旁的华润大厦,38层160米的高度,270度的高空视野,西边远眺大雪山,成都主城的天际线和城市肌理也尽收眼底。高层写字楼下是错落有致的老式居民区,成都的市井文化在此体现得淋漓尽致;二环高架上的车辆川流不息。城市的动与静、新与旧、自然与人文的景象,都共存于慕达建筑的视野中。
全景玻璃幕墙模糊了窗外城市景观与窗内办公室的空间边界,立柱、墙体与物件的构图分隔,形成了不同尺寸和不同景致的城市框景。慕达建筑希望在这样融合而通透的场景中去思考人与建筑、自然和城市的多种可能性,并将此得到的启发运用在设计创作中。
‖ 空间画卷 Space Shape
慕达建筑将写字楼原有的标准化装饰拆除,解构和重建空间的秩序。4.2米的建筑层高被设备层占用了近1米的空间,设计采用整体镂空的方格木纹吊顶,既保留了建筑原始层高,又形成了统一而有序的空间肌理。
设计以空间的舒适性为出发点,温润柔和的木色成为了空间的整体底色,以不同的材料形式在顶面、地面、立面得以呈现。白色的办公桌赋予空间明快轻松,剔除掉乳胶漆表皮的混凝土立柱彰显力量感与时间感,精心设计的家具体系,灵活的空间隔断,构成了全部的空间表征,宛如一幅当代城市山水画卷。
至繁归于至简,材料设计与功能设计,感性与理性的和谐统一,温暖、纯粹、宁静的氛围基调得以彰显。当夜幕来临,环境光的冷色与室内的暖色自然过渡衔接,半透明的木百叶窗帘使得空间节奏变得不确定,变得暧昧,空间的诗意在此刻显露无疑。
‖ 智能化灯光 Intelligent Lighting
智能化与办公场景的结合是慕达建筑在新办公室中进行的一次成功尝试,公共区域的灯光由400颗智能LED灯泡组成矩阵,手机APP可控制冷暖调色与亮度调节,无线连接实现了对每一颗灯泡的定点调节控制。多种场景模式的不同灯光设定,实现了日间办公、午休、夜景办公、会议模式、演讲模式、派对模式等多种情景的自由切换与定时切换,使得科技、功能和美学得以融合呈现。
新办公室的灯光系统设计,是针对智慧科技对生活品质的影响,以及健康、绿色和节能等多方面相互作用的一次实验性探索。智能化设计的多种可能,慕达建筑将在后续的办公生活中继续探索。
‖ 功能场域 Functional Dimensions
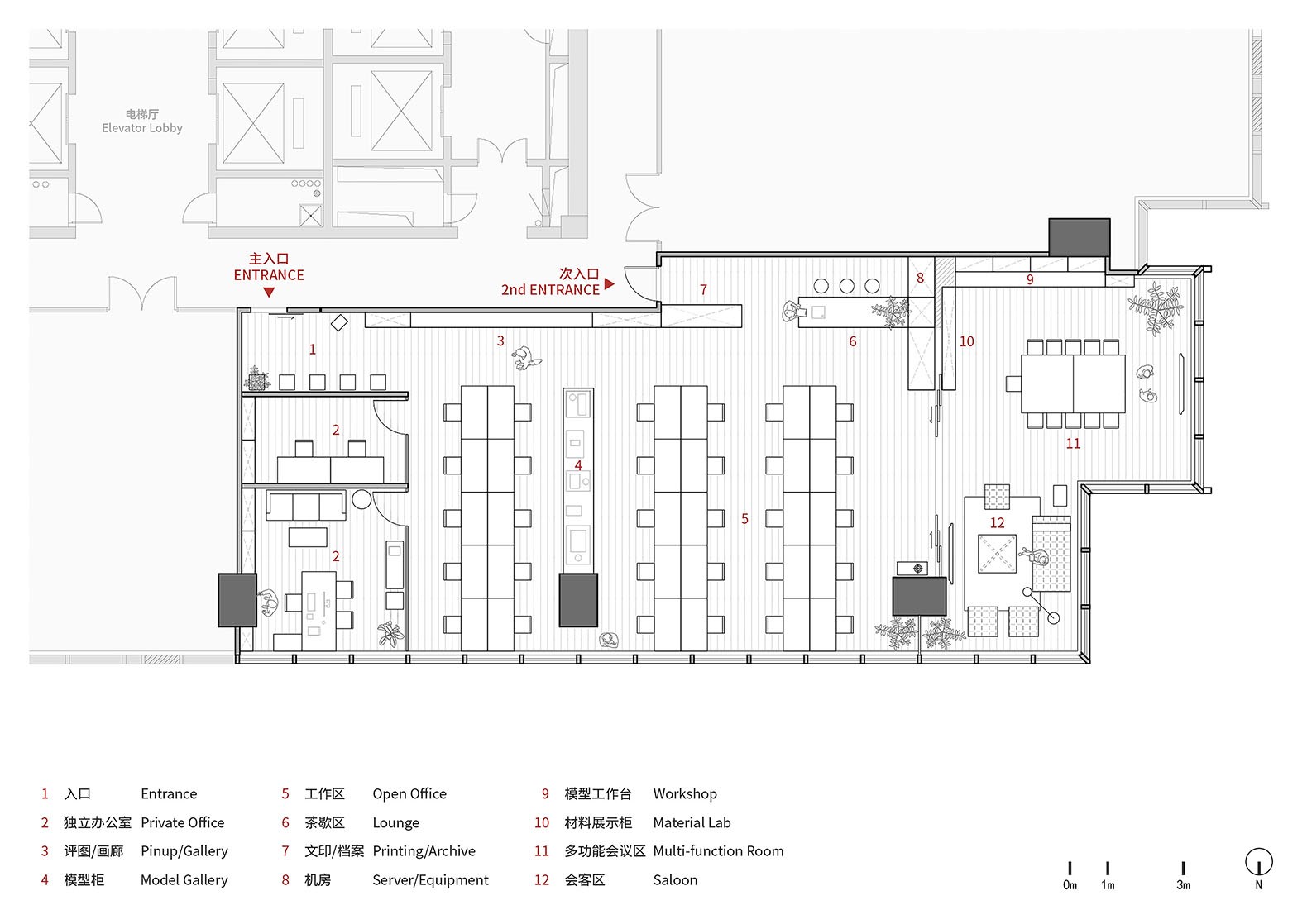
办公室主要分为入口、独立办公室、工位区、模型展示区、吧台区、会客区、多功能会议室等几个重要功能区域。开放的办公空间,视野通透,每一个工位的同事都将获得不同的城市视野;灵活的隔断分隔,将会议区与会客区实现了空间真正的自由与开放;独立办公室的电动木百叶窗帘,也实现了空间视野从封闭、半封闭到开放的灵活转变。
会议室的设计希望打破常规,传统的会议空间使用低效。新办公室的会议区是一个综合了会议、分享沙龙、娱乐(乒乓球)、聚会(狼人杀&德州扑克)、模型制作、建筑材料展示与储藏的多功能空间,同时也拥有着最佳城市视野,将是整个办公室中最受喜爱的空间。
‖ 材料与细节 Materiality and Detail
空间整体的木色,包含了吊顶-木纹铝方通、木百叶窗帘、强化木地板、定制木柜等多种质地。空间再配以混凝土粗糙的质感与艺术涂料的细腻素雅,白色的工作台面,半透明的玻璃隔断,大小别致的建筑模型,适量的软装点缀色彩和品质。
慕达建筑新办公室的空间设计,希望实现对空间诗学的思考和物理重塑。开放、温暖、通透、舒适、智能,空间以当代视角对它们进行重新诠释。“只有在拥有生存能力后,我们才能建造;居所是人类本能的生理表达,意图在世界上寻找到属于自己的根源。”
与城市发展密切关联的工作场景,更加有助于慕达建筑将对于人、建筑、自然和城市的理解,介入到未来全球化的设计和建造实践之中。
项目名称:慕达成都高空办公室
项目地点:中国 成都 - 华润大厦
设计面积:350平方米
设计时间:2021.03-2021.05
建筑事务所: 慕达建筑MUDA-Architects
主持建筑师: 卢昀
设计团队:李爱东,吕晨宇,荣典
灯光设计:BPI照明设计
施工团队:四川楚风建筑装饰设计有限公司
摄影:形在空间摄影 贺川

山地土壤室内设计

边缘计划建筑工作室

未午建筑事务所

Say Architects

海浪创物

松涛建筑设计事务所

喜玛拉雅设计装修

凡筑设计

全文室内设计

超级番茄设计

千墨设计

VANISHED DESIGN

拙人营造

有田建筑空间设计

陶磊建筑事务所

愈宅设计

伊波莱茨建筑咨询

米凹工作室

隐一设计

未止工作室

十合设计

非知名设计事务所

拾集建筑

相与还空间设计

柒构设计顾问

凡西空间装饰设计

林礼聪工作室

山山园林

肃画建筑

谱观建筑设计

非知名设计事务所

脚本建筑研究室

囙设计工作室

IARA设计研究事务所

深点设计PDD

凿枘设计

PMA普玛建筑设计事务所

直线建筑设计事务所

琢磨设计

仟物栖所事务所

由里空间设计

家语设计

熹维室内设计

介介工作室

阐领建筑

SLT设计咨询

Say Architects

深思维设计

纸间营造

黑白木设计工作室

CUN寸DESIGN

里所空间设计事务所

艾洛设计

B.L.U.E.建筑设计事务所

NOTHING DESIGN工作室

十拓建筑规划设计事务所

里外工作室

里外工作室

深度进化设计事务所

立方体设计事务所

有维建筑设计

有物设计顾问

隹聿设计工作室