过去的常州,南大街各种业态百花齐放。随着城市现代化建设发展,越来越多新型商业圈兴起,消费群体也被分散,这条历史街道也逐渐落寞。如何让服装品牌hôte hote在这条街重新发光?也是我们这次项目的最大挑战。
我们将外墙打开,同时通过地面材质及色调的运用和连接,让原本户外的走廊与内部空间形成一体,模糊边界,让hôte hote更好的融入这个街区,有意的引导人们进入到我们营造的场景中。
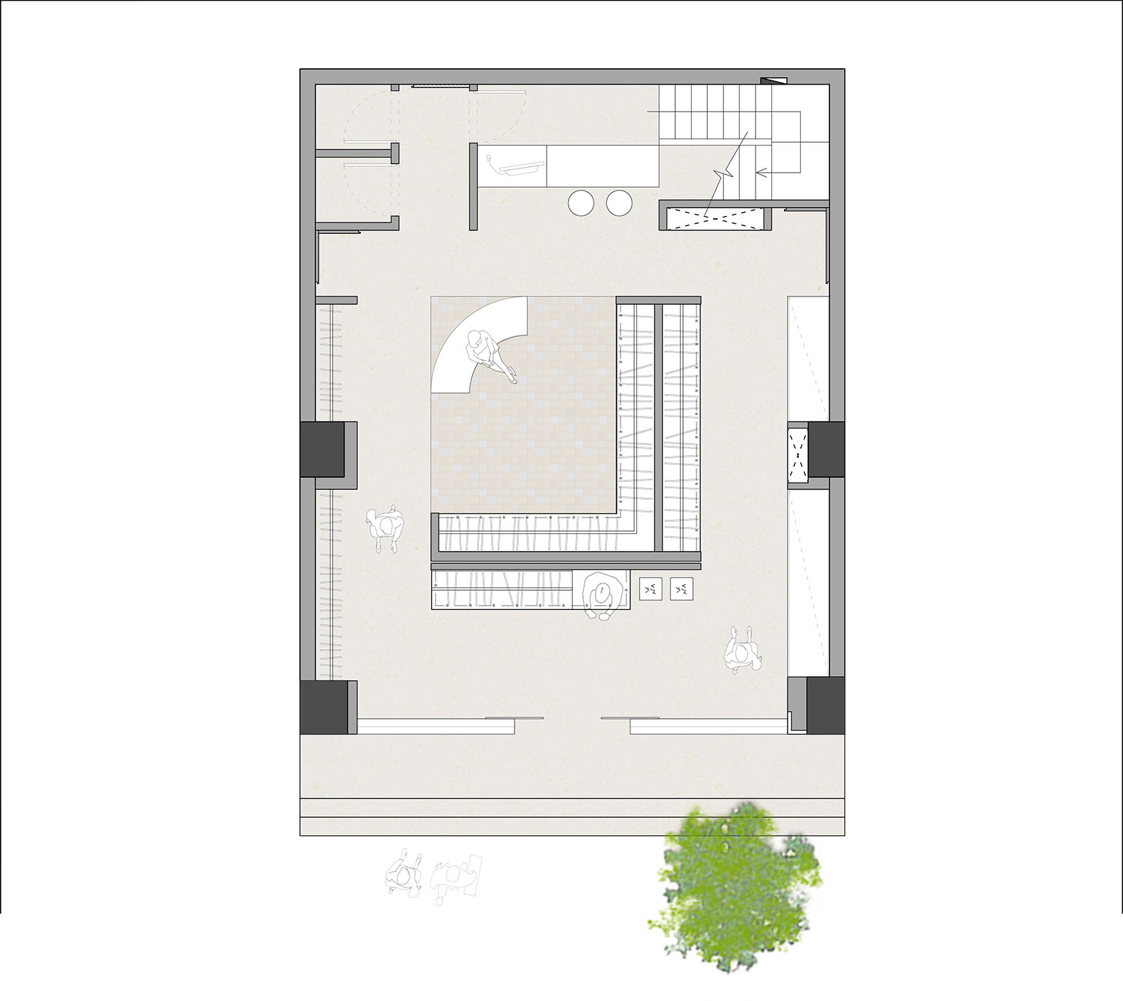
原始空间如同一个密封的盒子,于是我们采用了切割的形式,将盒子一分为二,形成前后两个部分,接着后半部分再次被我们一切为二,形成上下两部分,上面作为储藏室和卫生间,下面作为更衣区以及收银,前半部分以回字空间形成循环,同时释放最大化的展示界面,有效回应。这一小型的商业空间中,凭衣量与购物便捷的平衡需求。
二楼开口的设定既给一层空间保留一丝神秘感,同时也为二层与一层的交流增加了便利性。
为了加强户外的感觉将用于户外的材质水洗石以新的方式使用在室内,衣服上没有重点照明,用灯膜的形式让光线均匀分布在空间中,营造一种安静、平和的购物氛围。
空间中的家具有多重性,既是形式回字动的边界,同时本身也是陈列产品的展台,又可以作为客人休息的座椅。墙面试衣镜在不同角度反射处户外自然景色。
项目名称:hôte hote服装店
项目地址:常州
建筑面积:100㎡
公司名称:睿璞设计事务所(RP.DESIGN)
主创设计师:郗琪(RP.DESIGN创始人)
团队成员:王梦丹、王丽恬、陈成、戚佳瑶
项目设计:2022
完成年份:2022
摄影版权:孙强

好典空间设计

恺慕建筑设计

JANG studio

芒果建筑设计

好典空间设计

苏州无外设计事务所

杭州水丁集设计事务所

一間白设计事务所

好典空间设计

间筑设计

W SELECT DESIGN

Some Thoughts空间设计

巢羽建筑设计事务所

异向计合生活方式设计研究所

Super Fan Interior Design

Super Fan Interior Design

深圳超级平常设计

Say Architects

山地土壤室内设计

芝作室

加减智库设计事务所

今朝风日好

有寻建筑设计事务所

西涛设计工作室

东仓建设

东仓建设

Kokaistudios

叶梹室内设计

联图建筑设计

肯斯尼恩设计

CUN寸DESIGN

睿集设计

治木设计

芝作室

如恩设计研究室

Francesc Rifé Studio

叶梹室内设计

帕姆建筑

B.L.U.E.建筑设计事务所

杜兹设计

图蓝空间设计

Studio 10

栋栖设计

iZ Design Studio

东仓建设

未来以北工作室

多么工作室

ICD明之顾问

Studio Profile

立品设计

多么工作室

泛域设计

waa未觉建筑

東木筑造设计事务所

東木筑造设计事务所

多么工作室

好典空间设计

空间站建筑师事务所

白菜设计

東木筑造设计事务所

多么工作室

未来以北工作室

Studio Profile

衡建筑