Oneup是一个城市运动生活方式品牌,围绕运动与生活的无边界融合,创造轻松舒适的服饰装备与跨场景体验。深圳万象天地门店作为品牌在华南落地的首个线下零售空间,是品牌从线上走向实体零售过程中,一次关于「使用场景」的空间实践。
在对 Oneup 品牌的理解中,我们没有将空间视为被快速浏览的展示界面,而是将其设想为一个更接近真实使用状态的场所,还原“家”的松弛内核,允许人放慢脚步,走动、坐下或交流。
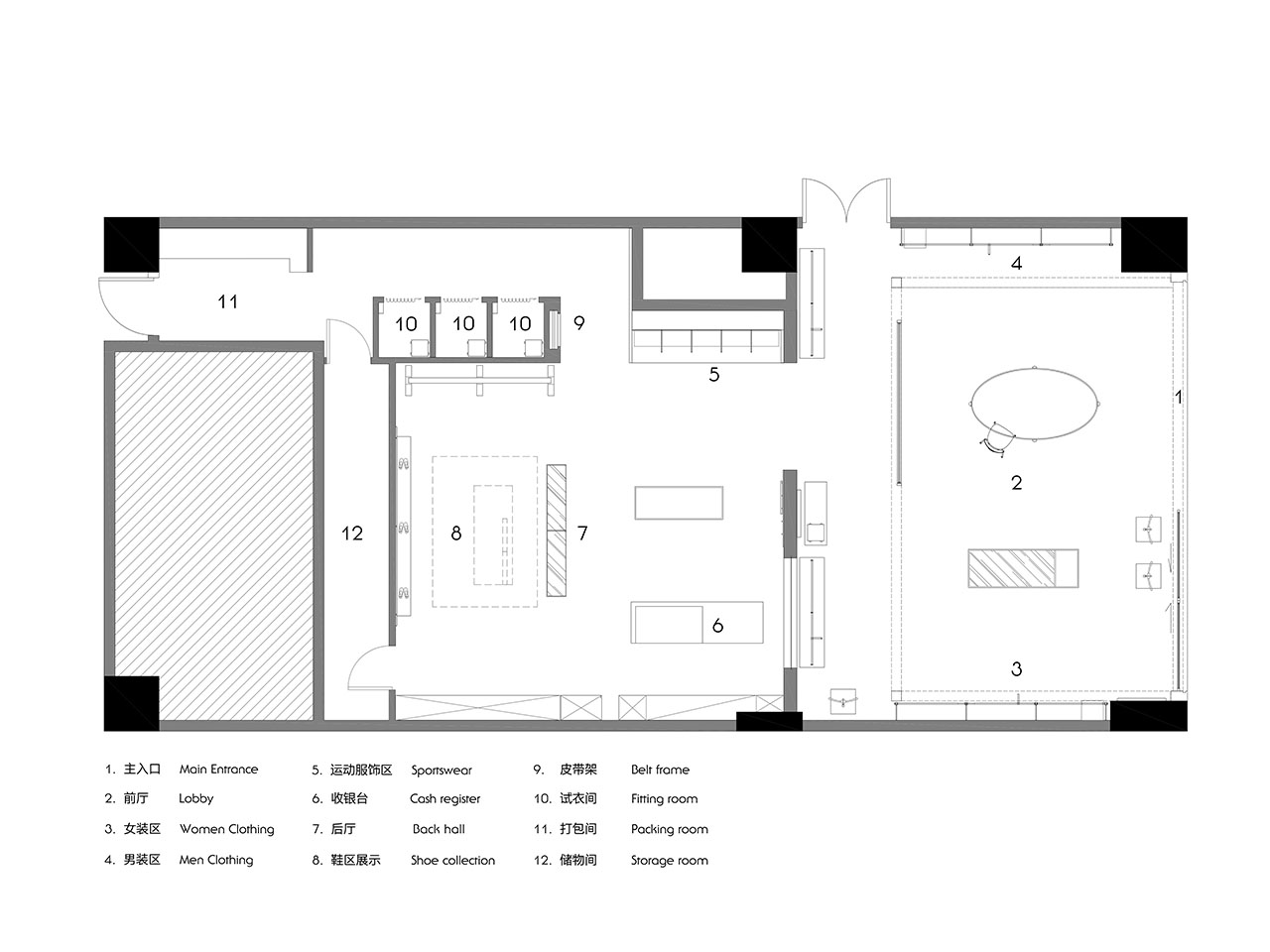
前厅与后厅:不同节奏下的空间组织
门店平面被划分为前厅与后厅两个区域。入口前厅通过四根立柱建立空间秩序,结构本身承担起组织动线与视线的作用。在克制的空间处理下,前厅形成一种介于开放与停留之间的状态,使进入门店的节奏被有意放缓。
前厅铺设的克莱因蓝色地毯,是在功能与体验之间反复权衡后的结果。一方面,它提升了行走与停留时的舒适度;另一方面,克莱因蓝以去装饰性的方式介入,在整体温和的空间基调中形成清晰而稳定的视觉记忆。
后厅尺度相对紧凑,空间色调被处理得更加轻盈,以缓解空间压力并提升使用舒适度。空调系统在设计阶段即被纳入整体考虑,设置于鞋区上方,将相对较低的天花留给以坐姿为主的使用区域,同时为收银区保留更为开阔的层高,使不同功能在使用过程中获得更合适的空间条件。
围绕「使用感」的材质与细节选择
温润原木贯穿整个空间——从前厅到后厅,从立柱、家具到展示柜与陈列架,材质成为空间组织中的重要组成部分。
在陈列系统的设计中,货架采用不锈钢与层板的组合方式,避免单一横杆带来的展示限制,使服装与配饰在空间中拥有灵活的组合可能。部分货架被设计为可移动状态,以回应品牌在不同阶段对使用方式与陈列调整的需求。
空间体验
我们将软装作为空间结构的一部分,嵌入不同功能区之中,在试穿、交流与短暂停留之间建立清晰而克制的使用关系。空间在保持合理尺度的同时,与 Oneup 所倡导的城市运动生活方式形成呼应。
今朝风日好,朝朝风日好。
项目名称:Oneup
项目地点:广东省深圳市南山区华润万象天地L325
项目面积:145㎡
项目时间:2025
主要材料:柚木、胡桃木、金属、涂料
设计机构:of gaaarden design
设计总监:李俊鹏
项目团队:张威利、方如林、苏嘉诚、周润阳
摄影团队:十观 赵宏飞

好典空间设计

恺慕建筑设计

JANG studio

芒果建筑设计

好典空间设计

苏州无外设计事务所

杭州水丁集设计事务所

一間白设计事务所

好典空间设计

间筑设计

睿璞设计事务所

W SELECT DESIGN

Some Thoughts空间设计

巢羽建筑设计事务所

异向计合生活方式设计研究所

Super Fan Interior Design

Super Fan Interior Design

深圳超级平常设计

山地土壤室内设计

芝作室

加减智库设计事务所

of gaaarden

有寻建筑设计事务所

西涛设计工作室

东仓建设

东仓建设

Kokaistudios

叶梹室内设计

联图建筑设计

肯斯尼恩设计

CUN寸DESIGN

睿集设计

治木设计

芝作室

如恩设计研究室

Francesc Rifé Studio

叶梹室内设计

帕姆建筑

B.L.U.E.建筑设计事务所

杜兹设计

图蓝空间设计

Studio 10

栋栖设计

iZ Design Studio

东仓建设

Aeonspan 设计事务所

罗宇杰工作室

予野设计

苏格SG空间设计事务所

治木设计

杭州水丁集设计事务所

未来以北工作室

多么工作室

Studio Profile

立品设计

多么工作室

waa未觉建筑

東木筑造设计事务所

多么工作室

好典空间设计

空间站建筑师事务所

白菜设计