 
      
         
        一处没有花朵的空间,包裹着花朵般的内心
如果花不是一朵捧在手中的美物,而是一处能走入的空间,当踏入后,你看到的会是自己的内心。女装品牌Chic Camélia寓意为山茶花,让人容易联想到每一位女性独有的内在气质。而项目地址位于城市干道旁一栋商务楼的首层转角商铺内,因此我们思考如何在一个规整的内部物理空间中塑造一个与外部环境相反的场所——它抵消了城市表征中均质、直白的一面,试图达到品牌释义里一个犹如内心般平和、柔软、私密的空间品质。
从场地而来的启发
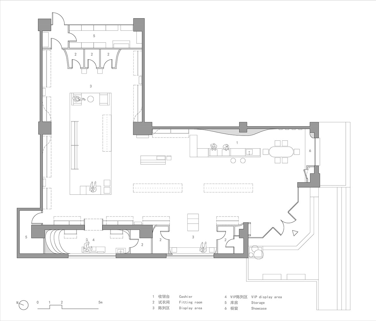
场地形态呈规整的“L”型,近半米高的入口处高差,将整个基地抬起,俯视着过往的人流。除了与入口平台相接的切角玻璃面外,空间中另有三处窗洞,离入口最近的是唯一一处沿街橱窗,它吸收了过往的目光,也吐露了内里的热络,它是与外界互动的媒介。第二个窗洞是在另一面朝向内街的墙上,浓郁的植被直接扑向了窗口,在午后的时光里,大量的光线伴随着窗外饱满的生机肆意地投射进了室内,这份涌入的自然柔化了柱网建立的秩序。由于建筑结构的特殊性,比邻的第三个窗洞,被它近处8米长的剪力墙遮挡,而在墙面的居中位置,又切割出半高的门洞,于是,光线裹挟着静谧闯入这片阴影内,又将人的视线引入阴影背后的私密。我们发现在这原本均质的柱网空间内,却蕴藏着如此丰富的异质性元素,因此,我们试着将功能性空间和陈列流线结合场地的特质一一嵌入进这个场所内,空间的雏形就出现了。
延续场地中的力
我们重新整理了地台轮廓关系,化解了原本急促的台阶步数,将室内地面浅色莱姆石铺地延伸至室外雨棚起始处,通过材质变化用塑木平台过渡了街道界面,并在最深处种植了一株山茶花树。放缓后的入口空间一改之前的傲居姿态,静候着客人的到来。拾级而上,一个由柱网构成的室内空间呈现在面前。
我们再次从场所中得到启发,空间中像是有股力,它先是依附于框架结构,从顶部出发,向下传递,近300多平方米的场地中随着进深方向被划分出前、中、后三大区域,接着又向水平方向延展,将人的视线在梁柱、窗口、门洞彼此对位关系的引导下,获得了一种感官上的平和。我们思考如何使空间中所要增加的功能性要素都能显明这股场地中的力。
我们在高度方向上构建了一层新的水平面域,它先亟待解决暴露在空中的繁杂管线。这个面域与管线最低点保持一段距离,它先是在橱窗区附近向上隆起,一颗球形灯像是随意地落入了这个倒置的弹力织物里,停留在对应于下方的前台和沙龙桌的间隔中;在第二个窗口前,光线掠过两个对称伫立的试衣间后,映在了像是受悬挂衣物拉伸渐渐下沉的顶面,光影赋予其饱满的体量感,空间的重心也随之放低,这里是陈列流线的起始;面域接着平缓地跨过中部的主梁,再次像鱼腹般跃起,这里来到了陈列的中区,此处唯一的光线从剪力墙上的门洞内逃逸出,倾洒在地面后又被对应在门洞上方像勺口般的顶面聚拢,点亮了步入窗前VIP区的仪式感;随着三联试衣间在空间尾部从墙面涌出,面域也在其顶部开口处向上拱起,就此停止在流线的尽端。新增的面域覆盖了整个顶面,每一处形变的起止都暗示着区域的边界,空间被再次还原成前、中、后三大区域,原先可见的结构形式遮蔽后被勾勒成线条般的力流,平静地流淌在整个场地内。
项目名称:Chic Camélia女装店
项目类型:商业空间,商店,时装店
项目地址:上海,中国
建筑面积:300㎡
客户:Chic Camélia
设计方(建筑改造/室内设计/道具设计/照明设计):多么工作室
项目设计:2025.04.27-2025.06.10
完成年份:2025.08.01
设计团队:陆志毅,王维,于天瑞,高健,李云霞(曲面深化),徐良俊(实习)
施工图协作:璇玑深化
施工团队:上海禾唐装饰
材料:莱姆石,无机涂料,桦木多层板
石材供应:碧莎莱姆石
道具制作:上海学羽家居
摄影版权:有松影像-周浪行

好典空间设计

恺慕建筑设计

JANG studio

芒果建筑设计

好典空间设计

苏州无外设计事务所

杭州水丁集设计事务所

一間白设计事务所

好典空间设计

间筑设计

睿璞设计事务所

W SELECT DESIGN

Some Thoughts空间设计

巢羽建筑设计事务所

异向计合生活方式设计研究所

Super Fan Interior Design

Super Fan Interior Design

深圳超级平常设计

Say Architects

山地土壤室内设计

芝作室

加减智库设计事务所

今朝风日好

有寻建筑设计事务所

西涛设计工作室

东仓建设

东仓建设

Kokaistudios

叶梹室内设计

联图建筑设计

肯斯尼恩设计

CUN寸DESIGN

睿集设计

治木设计

芝作室

如恩设计研究室

Francesc Rifé Studio

叶梹室内设计

帕姆建筑

B.L.U.E.建筑设计事务所

杜兹设计

图蓝空间设计

Studio 10

栋栖设计

iZ Design Studio

东仓建设

未来以北工作室

ICD明之顾问

Studio Profile

立品设计

多么工作室

泛域设计

waa未觉建筑

東木筑造设计事务所

東木筑造设计事务所

多么工作室

好典空间设计

空间站建筑师事务所

白菜设计

東木筑造设计事务所

多么工作室

未来以北工作室

Studio Profile

衡建筑