 
      
         
        “建筑的处理上选择了后退并与“天空之镜”雕塑装置融合的策略,从一层的品牌印象建立,到二层的生活场景体验和产品展示,设计师通过从建筑到室内空间一体化表达和层层递进的体验旅程由远及近的书写完整的品牌体验。”
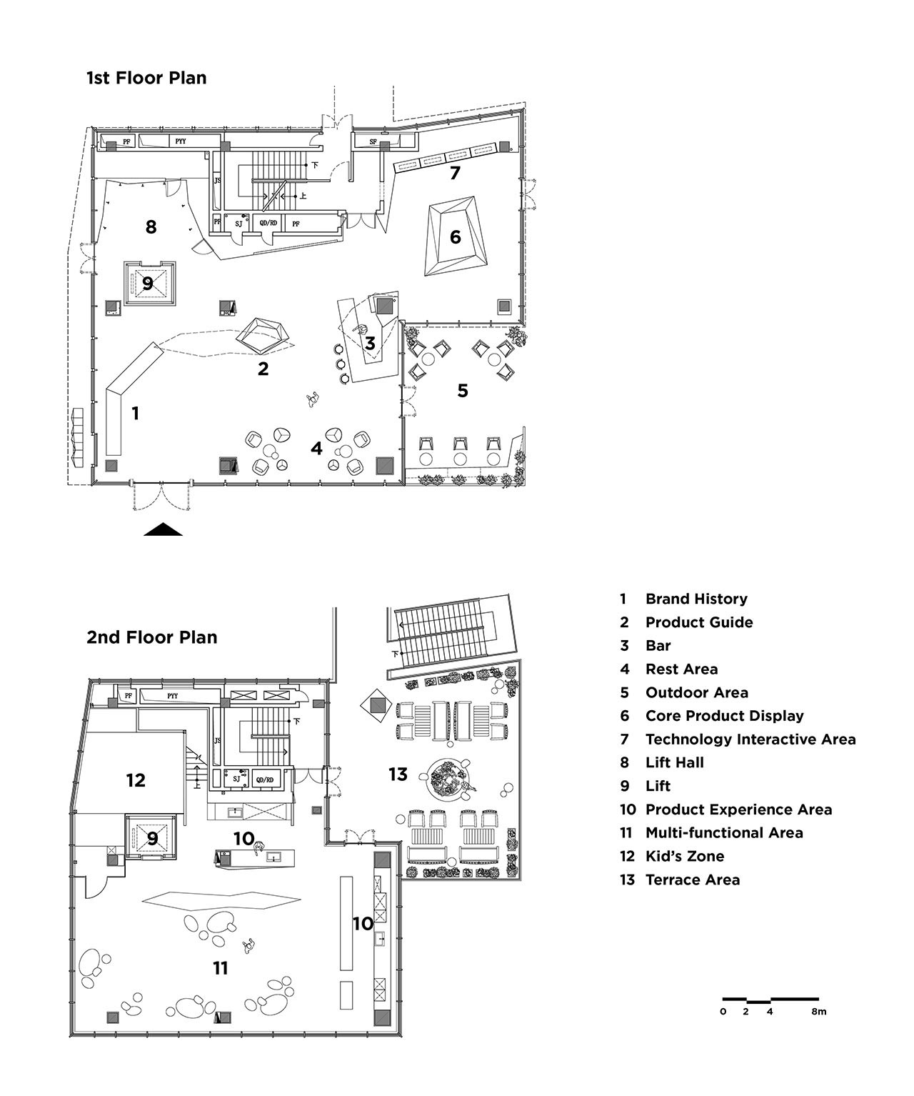
位于顺德欢乐海岸plus的首家惠而浦之家于近日揭开神秘面纱。不同于线下以销售为目的的旗舰店,“惠而浦之家”更加侧重于通过近距离的线下互动展示和体验。让消费者在互动体验中获取对品牌和产品更直接的了解,使惠而浦这一百年品牌在消费者心中焕发全新面貌。
后退的建筑
项目的场地位于具有标志性的“天空之镜”大型雕塑装置中,并且建筑与装置相互连接。
作为一个以技术立身的百年家电品牌,展厅中需要呈现科技感以给到来访者直观的第一印象。“天空之镜”的镜面效果与切割形态,天然的包含科技元素。
基于这一点,设计师在建筑立面的处理上选择了后退并与雕塑融合的策略,从建筑到室内空间一体化的完成情绪表达:内部空间设计上因地制宜地将“天空之镜”自然的延伸其中——三角棱镜造型从一层空间之中向上生长,贯穿二层楼板,延伸至二层天花之上,透过玻璃幕墙与室外“天空之镜”相互衔接。
层层递进的体验旅程
作为一个综合性的商业空间,惠而浦之家不仅需要满足品牌文化展示、体验展厅和活动论坛场地等多重需求。设计师将不同的功能置入不同的楼层,使来访者在层层递进的参观旅程中,获得从文化、体验到产品的完整体验。
一层围绕棱镜装置,构筑出整体冷峻科技的空间调性。
多媒体互动展项的融入,来访者可以从中了解品牌发展历史、品牌核心技术等内容。
展厅的另一侧规划为洗衣产品技术展示区。设计师将产品进行解构展示,墙面的互动装置游戏让参观者轻松的了解枯燥的技术细节。
毗邻休闲步道一侧的咖啡区配合可开启的幕墙,将室内的空间向室外进行延展。
通过光影流动的观光电梯上到二层,棱镜如穿过楼板般向天花延伸并与室外相连,当光线穿过时,空间产生了内与外的对话。
干净有力的建筑语言突出产品设计的简约哲学,场景化的产品体验区域融入其中,这是一个更加灵活、开放、可变的社交空间,探索空间、人、生活之间互相激活的可能性。
棱镜造型划分了不同风格的产品体验场景,木色的融入中和了金属的冷峻。
为了平衡整体空间的调性和色彩,设计师还融入了一个明黄色的儿童区。
夹层延续了木色的柔和调性,在轻松的氛围中让产品成为主角。
项目名称:惠而浦之家-顺德欢乐海岸plus
项目地点:广东顺德
项目面积:680㎡
业主单位:惠而浦
设计机构:MOC
主持设计:杨振钰,梁宁森
软装设计:吴岫微
设计管理:杨振钰
设计团队:黄镇涛、严文定、黎瑞文、谢昕妤、陈倩瑜
设计周期:2022年1月-2022年6月
完成时间:2023年2月
主材:岩板、镜面不锈钢、原色喷砂不锈钢、黑色金属烤漆、超白玻璃、木饰面板、亚克力、地毯
摄影:聂晓聪

三谷设计

末广建筑

事建组

Wutopia Lab

朱小地建筑设计事务所

goa大象设计

天元建筑设计

天华建筑设计

否格设计

印文设计

C+Z建筑师工作室

直向建筑

天元建筑设计

空气联盟建筑事务所

互建筑

炽造设计工作室

里未设计

亿端国际设计

同一建筑设计事务所

万华产品研发中心

Antoine Predock

都市实践

房木生设计事务所

大成设计

时境建筑

米思建筑

米丈建筑设计事务所

无样建筑工作室

共生形态设计

徽宗设计研究室

UDG有关工作室

本哲建筑

PLAT ASIA

小隐建筑

园·舍建筑景观

十拓建筑规划设计事务所

Kokaistudios

明懿空间设计

上海绿建建筑设计事务所

米丈建筑设计事务所

木君建筑与室内设计事务所

小隐建筑

三文建筑 – 何崴工作室