 
      
         
        “百货随潮船入市,万家沽酒户垂帘”,福州这座拥有7000多年历史文化积淀和2200多年的建城史的古城,从宋代开始,就成为重要港口城市,尤其在鸦片战争之后,更是成为首批开放的五口通商口岸之一,因此造就了黛瓦相连、百年沧桑的古建筑群。
“共和壹号”位于老仓山桥南环岛十字路口,连接烟台山、泛船浦和会展中心,是“烟台山—泛船浦”历史文脉的重要一环。其前身是福州第一茶厂春记茶行,在民国时期曾作为福州海上丝绸之路的重要源头港口和闽茶外贸的交易集散地,同时孙中山等同盟会创始革命家曾在这里短暂工作生活过。本次由华荣集团融旧修新,以建筑致敬历史,还复文物古韵光华,促使本案得以与众人会面。
尊古
连接旧与新、传统与当代
建筑是有生命的,它虽然是凝固的,可在它上面蕴含着人文思想。在漫长的时间长河里,共和壹号安安静静地伫立在老仓山,历经风雨飘零,即便如此,它仍以独有的形式见证一个城市的变迁和发展,像是文明的记录者和传承者,既见证了黄金时代十里洋场的风光,后经过开发、修缮,也将与新时代再创辉煌。
接到案子后,我们进行实地考察,看着破败的原“省外贸仓库”,心怀澎湃的同时,始终对它保持敬畏之心。因此在构思本案时,尊古成为很重要的脉络。在保留原有屋檐和外形特征的基础上,将内部重组,打造一个时间与空间、功能与内涵并存,当代与传统有序连接的场所。
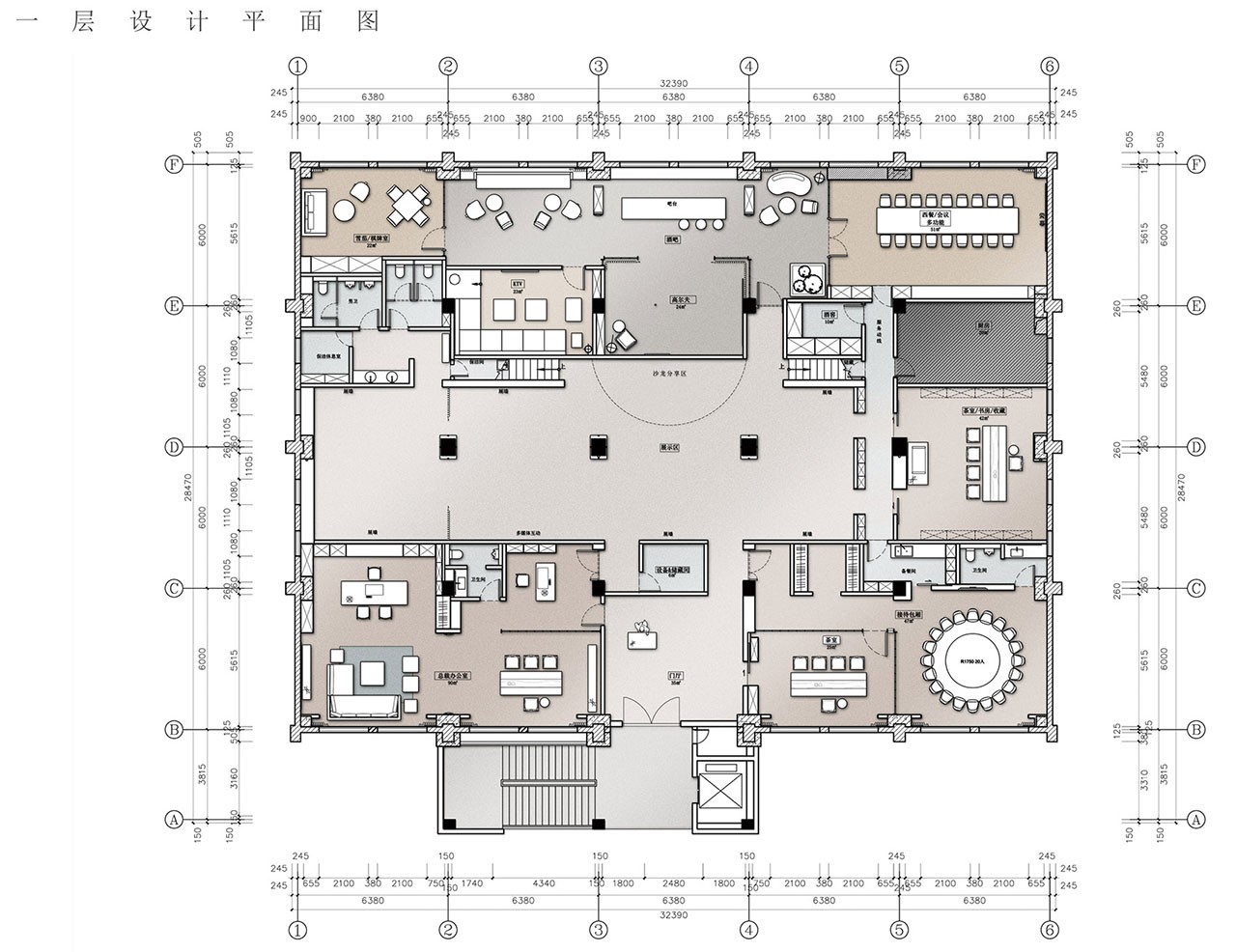
由于建筑本身是双人字屋顶结构,不同切面的层高呈规律变化,根据人在内部活动的预设,我们将挑高充足部分预留给重要的功能体块,于是空间主要被划分为前、中、后三大区域,分别作为总裁办公和接待、私人展览、以及休闲娱乐用途;区块的连接处则分布着走廊、酒窖、KTV室、操作间、卫生间等功能服务区。
对话
重现古建筑深厚的底蕴
从建筑到室内,通过砖、铜、木、石等材料的形态和材质质感关联,呈现新与旧的融合,让内与外拥有和谐统一的时间和空间感。入口接待处引入自然天光,从破晓到午夜,光影时时变幻,赋予空间灵动的气息。
右侧的茶室与餐厅相连,多路径规划令两处空间既独立又可根据场景的需要进行组合。除此之外,与接待区衔接的服务通道,同时和西厨、酒吧贯连,动线上更为灵巧合理。缓缓推开木门,复古的气息扑面而来,铜色的台灯自带时代滤镜,静静地立于桌面,夜幕降临,柔和的光晕和铜色的加持极易让人产生年代交替的错觉。
改造设计,尤其面对历史悠久的老建筑,更要撇开炫技心理,尊重建筑本源。我们花费大量精力去修复木构斜面的层顶,进而采用简洁的语言对内部空间进行重构,尽可能生动地诠释悠悠历史、环境及文化。同时,搭配材质、色彩以及陈设,将大隐于市的氛围组织得酣畅淋漓。
尺度
改造不是推翻而是良性更新
历史建筑的改造设计不仅要还原、保护建筑本体,更重要的是对其所在的空间场景进行再生设计。共和壹号正在恢复生机,在办公、接待之外,融入了美术馆的功能,我们依屋面之势,通过体块穿插,将内敛雅致的传统文化融入现代的设计语言,打造一个回廊式展区,以展现浓厚的人文底蕴与本土的艺术特色,最终延续老建筑的良性更新。
展区的屋顶铺设了两排天窗,自然光轻而易举地进入室内,再配合反光板和过滤器,使进入空间的光线尽可能柔和,观者迈入该空间,体验到的是舒适而不会过分晃眼。除此之外,自然光能够在展品展现的过程中更好地呈现出其真实性及艺术性。
复古
一场欲说还休的暧昧
穿过逼仄的走廊,映入眼帘的是墨绿的沙发和年代久远的老凳子,婉约的氛围、色彩的碰撞,空气中弥散着欲说还休的暧昧,像极了《花样年华》中呈现的经典场景,将人拉回上个世纪黄金时代。
绘画上有种技法叫“留白”,阅读理解中有“烘托气氛”,而日语中“今晚的月光真美”更是流传甚广,空间如是,没有过多的语言解释和多余的情节动作,给人留下了无限的遐想空间,不断地回味场景所要传达的思想意图。
往里走,民国时期的老家具和裹挟时代印记的琉璃灯罩,兼具实用性和复古的调性,搭配精心甄选的色彩鲜明的软装陈设,每一个转场、定格都是一幅精心构思的画卷。
都说民国是最好的时期,传统未被抛弃,新事物被温和接纳,我们何其有幸能够参与城市古建筑改造,重现经典,以致敬一个永不落幕的时代!
项目名称:共和壹号
项目地点:福建·福州
项目面积:约935平米
设计单位:DCD 大成设计
主持设计:林开新
协作设计:周成钢、韩艳香
完工时间:2021.12
软装设计:极所设计 陈威 俞鹏举
摄影:HereSpace 贺川

三谷设计

末广建筑

事建组

Wutopia Lab

朱小地建筑设计事务所

goa大象设计

天元建筑设计

天华建筑设计

否格设计

印文设计

C+Z建筑师工作室

直向建筑

天元建筑设计

空气联盟建筑事务所

互建筑

炽造设计工作室

里未设计

亿端国际设计

同一建筑设计事务所

万华产品研发中心

Antoine Predock

都市实践

房木生设计事务所

时境建筑

米思建筑

米丈建筑设计事务所

无样建筑工作室

共生形态设计

徽宗设计研究室

UDG有关工作室

本哲建筑

PLAT ASIA

MOC DESIGN OFFICE

小隐建筑

园·舍建筑景观

十拓建筑规划设计事务所

Kokaistudios

明懿空间设计

上海绿建建筑设计事务所

米丈建筑设计事务所

木君建筑与室内设计事务所

小隐建筑

三文建筑 – 何崴工作室