面朝大海,背靠会展中心,在两个巨型尺度的面前,任何形式化的表现都不是最合适的选择。我们将基地的正负零标高处理成一道“地平线”广场,承载着整个会展中心人流和市民休闲活动,让海极致舒展开来,直至无限。
由上海大椽建筑设计事务所设计的烟台金沙滩旅游咨询中心于2025年8月落成,同月20日正式对外开放。作为会展公园内的多功能文化建筑,项目为开发区提供关键的离岸配套服务:咖啡、活体昆虫博物馆、临展、市集、公共卫生间等。构筑城市与海洋的公共接口,并服务于所有市民。
折叠自然
>交错的平台,是对场地的抽象化回应
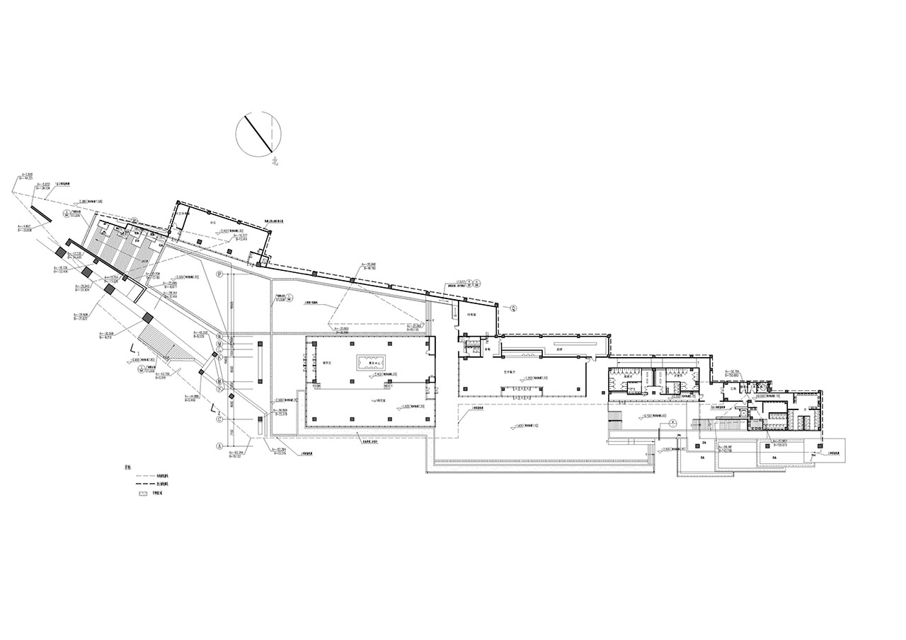
咨询中心位于会展公园的主要入口处,以其为中心,联同社区活动、皮划艇俱乐部、码头服务、共同构成会展公园的整体化设计。
基地内的场地高差造成城海之间的空间断层,为延续会展公园原有的线性肌理,咨询中心被处理成一个嵌入地表的单层体量,横向延展。升起的飘板提升昭示性,下沉区域设计多种灰空间,结合错动折叠的平台语言,形成城市向大海自然延伸的城市阳台。
从标识性的空间,到山、海、城市、空间的语言探讨,再到平实的几何建造,面对烟台与这片海,咨询中心在用丰富的空间语言与极低调的空间状态,回应着本地市民的日常需求。
咨询中心的大部分功能“藏”在地下,屋顶与地面相连并覆上绿植,倾斜屋面、下沉庭院与多层标高构架出一套连贯的“折叠”空间系统,也带来极强适应性。抬升的平台成为落日观赏点与集会场所,其下方则形成遮阳休憩长廊。
咨询中心位于平台的核心区,提供售票、咨询一站式服务,结合外广场是空间的焦点与
人群集散地。平台外可融合市集、表演、休闲、观景等多种日常活动。
空间强调的几何纯粹性更是赋予建筑足够的力度,让它具有明晰可辨的视觉特征,彰显其作为城市“主要元素”应有的公共性。
环境韧性
>连续性的尺度层次,界限模糊、允许市民自由穿行
咨询中心主张建立一种无层级差异的功能对应分区,各片区可以在未来根据需要自由调整。沿长轴展开的线性体量,最宽处约62米,最窄不足24米。设计中预留的大片开放式广场、草坪,是专门为人流高峰准备的“弹性空间”,满足其“活动模式”与“日常模式”的平滑切换。
为优化平台开口形式对行为的影响,设计对比了全覆土、大峡谷及局部下沉庭院等策略。局部下沉庭院在扩大竖向交通核心的同时,保证功能空间享有中庭与海景的双重景观。游客中心则强化竖向连接与视野通达。
海岸诗意
>镀锌板与混凝土并置的自然逻辑
建筑统一采用清水混凝土结构,但通过不同材质的细腻搭配来区分空间界面:镀锌板天花板、清水混凝土墙面与石材地面。这些材质彼此协调,共同营造出连贯质朴的空间氛围。
在直面海洋的环境中,材料必须耐用,其质感也应与环境呼应。因此我们选择了镀锌板:它的金属光泽与冷灰色调,能与粗粝的混凝土形成鲜明又协调的对比。混凝土沉稳地锚固大地,镀锌板则轻巧地反射着天光与海影。这种材质的对比,既清晰地展现了构造逻辑,又暗喻了海岸地貌中礁石与水流并置的自然逻辑。
镀锌板表面特意选用大花纹肌理,使其在不同时段的光线下呈现出波光粼粼的视觉效果,犹如将海面的波纹延伸至室内顶棚。随着一日之中光线的流转,天花板仿佛成为海洋的延续,令极简的几何现代性空间突然拥有了温度与叙事感。
空间重构
>自然、文化与日常
项目于2023年6月启动,室内设计围绕三个核心展开:海边的自然性、城市的文化性与生活的日常性。为精准服务日常市民、会展游客与水上运动爱好者这三类客群,我们梳理出如厕、就餐、休憩、办公、展示六大核心功能,并重点强化“驿站”的公共服务与“展陈”板块。
通过更衣区与办公区的位置置换,优化内部流线。释放出的原办公区域被转为商业用途,有效提升了空间活力。同时,将行政管理功能整合进服务大厅,进一步集约了空间。
咨询中心大厅以清水混凝土与水磨石为主材,中央区域通过艺术装置与色彩点缀打破单调,服务台结合电子屏与展陈功能,形成动态文化窗口。艺术餐厅以渐变色彩与曲面吊顶模拟海浪形态,鱼群灯具,小舞台与灯光共塑沉浸式用餐体验。
后记
滨海沿线日常活跃着骑行、运动、休闲的市民,却长期缺乏与之匹配的休憩与服务节点。“一道地平线”通过环境、空间的多重维度,创造人与大海接触的机会,塑造共享、开放、活跃的城市阳台,也是公共建筑对市民社会最深刻的回应。
项目名称:烟台金沙滩旅游咨询中心(八角湾)
项目地点:山东烟台经济开发区(烟台黄渤海新区海滨路与贵阳大街交界处)
建筑面积:4911.23㎡(计容建筑面积2224.50㎡)
用地面积:17500㎡
设计单位:上海大椽建筑设计事务所
主创建筑师:洪东涛
设计团队完整名单:洪东涛、唐坦、吴嘉玮、应涛、红华、喻华杰、王泰昊
业主:烟台黄渤海新区建设交通局
造价:4100万元(总);0.83万元/㎡(单位面积造价)
设计时间:2021年06月-2025年05月
建设时间:2025年9月竣工
规划+景观:AECOM
建筑:上海大椽建筑设计事务所
结构:浙江地标设计集团有限公司
室内:烟台飞龙集团有限公司
施工/照明/材料:烟台飞龙集团有限公司
摄影师:RudyKu / AUROR视觉

三谷设计

末广建筑

事建组

Wutopia Lab

朱小地建筑设计事务所

goa大象设计

天元建筑设计

天华建筑设计

否格设计

印文设计

C+Z建筑师工作室

直向建筑

天元建筑设计

空气联盟建筑事务所

互建筑

土木石建筑设计事务所

里未设计

亿端国际设计

同一建筑设计事务所

万华产品研发中心

Antoine Predock

都市实践

房木生设计事务所

大成设计

时境建筑

米思建筑

米丈建筑设计事务所

无样建筑工作室

共生形态设计

徽宗设计研究室

UDG有关工作室

本哲建筑

PLAT ASIA

MOC DESIGN OFFICE

小隐建筑

园·舍建筑景观

十拓建筑规划设计事务所

Kokaistudios

明懿空间设计

木君建筑与室内设计事务所

小隐建筑

三文建筑 – 何崴工作室