奉浦小学在奉贤新城偏西。其所在区域,在过去数十年间一直是工厂聚集地,而当下正逐渐转变为新城规划的居住生活区。校区内有一株银杏古树,旁边的小四合院建于70年代,二者一起另外作为一项保护修缮工程,和小学项目同时但分别建设。
奉浦小学的建筑设计需要面对两个问题。其一对外,如何面对全新转变过程中的城市空间;其二对内,如何面对小学生的日常生活。因此,建筑最终呈现了多个维度的双重性。
首先,建筑外观色彩缤纷,以引人注目的样貌试图在这个正在转变的全新城区中建立新的地方标识。与之相对,建筑内部用暖灰色创造了安静的学习环境。建筑内外色彩构成了强烈的对比,但同时又在空间环境中相互渗透。
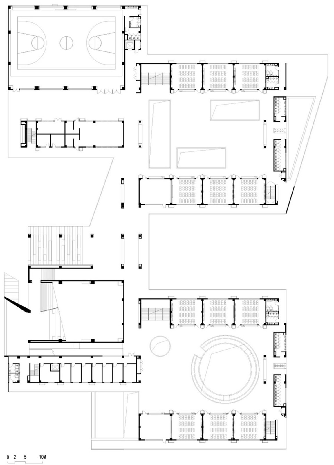
在空间格局上,建筑也具有一种双重性,以此来对应学习和玩耍、集体和个人、规训和自由的少儿日常生活。两个围合的内院构成了普通教室的集体向心空间,它们被放在建筑东侧,临近河道,相对安静。小剧场、风雨操场、图书馆、食堂等公共活动空间安排在西侧,空间相对开放,与运动场相连接。
建筑的底层庭院和二层活动露台共同形成了可以自由奔跑的共享场所,再加上穿插在建筑内的坡道和标高各异的活动平台,一起构成了与教室并置的课余空间。
在场地上,银杏古树的院子被新建的围墙与校园分隔开。学校建筑以一种当代的方式与其共存。一方面,简洁现代的外墙成为古树院子的背景,另一方面,在靠近古树的一侧,建筑设计了可以观赏景观的挑廊。
奉浦小学的设计表达了建筑师面对常规学校模式的思考,也以此呈现了建筑如何面对正在转变之中的郊区新城的复杂地方性。
项目名称:奉贤区教育学院附属实验小学奉浦小学校区
项目地址:上海市奉贤新城运河路沪杭支路
项目用地:27535m2
建筑面积 17960 m2
建筑&公共区域室内设计:无样建筑工作室
施工图设计:上海之景市政建设规划设计有限公司
主持建筑师:冯路
设计团队:杨锦雄、荆春玮、高益、李传琛
设计时间:2018-2022
竣工时间:2023
摄影师:吴清山

立方设计

立方设计

零壹城市

墨泰建筑设计

零壹城市

深圳市建筑设计研究总院-城市建筑与环境设计研究院

墨泰建筑设计

华南理工大学建筑设计研究院

华南理工大学建筑设计研究院

UUA建筑师事务所

众建筑

扉建筑

法国AS建筑工作室

goa大象设计

杭州三日室内设计

圆道设计

立木设计

GOM高目建筑

土木石建筑设计事务所

大正建筑事务所

众建筑

奥凡设计

米丈建筑设计事务所

天津大学设计总院·顾志宏工作室

宁波市民用建筑设计研究院有限公司

杭州慢珊瑚设计

米丈建筑设计事务所

都市实践

都市实践

上海交通大学设计研究总院

MAT超级建筑事务所

都设营造建筑设计事务所

亚洲捷程装饰设计

西线工作室

恒新寰宇建筑设计

天元建筑设计

深圳同济人建筑设计

意构建筑

殊至建筑

梓泉建筑设计

华造建筑设计

意度建筑

和立建筑实践

浙江大学建筑设计研究院

畎亩建筑

元新建城

华南理工大学建筑设计研究院

古风建筑

BAU建筑城市设计事务所

非寻建筑

方夏设计

深圳市建筑设计研究总院合肥分院

立方设计

BAU建筑城市设计事务所

十拓建筑规划设计事务所

修舍建筑

南大建筑钟华颖工作室

思序建筑规划设计

思序建筑规划设计