王阳明故居与纪念馆位于绍兴西小河历史文化街区,南面为明嘉靖年间礼部尚书吕本的府邸,西小河历史文化街区与场地东西相望,东面为规划的阳明故里核心区越城坊商业区,西临西小河,北靠上大路。市级文物保护单位王阳明故居遗址位于用地范围内,保护对象包括石门框、饮酒亭、王衙池(碧霞池)、观象台、伯府大埠头(遗址)及大有弄石坊残基。
基于史料考证与实地勘察,结合已有的考古调查报告,首先确定保护修缮好四处遗址和两处遗迹等文物保护单位,对王阳明故居进行复原研究,据此恢复王阳明故居建筑格局,实现研学、会议、展示功能。讨论确定将王阳明纪念馆设置于碧霞池的东侧,主出入口面向碧霞池敞开,以确保整个项目格局中王阳明故居复原呈现的主角地位。
新建王阳明纪念馆,旨在从当代的角度,重新审视和瞻仰阳明心学的发展历程与成就,并展陈有关物证佐料、阳明纪录片以及有关文旅产品。
西起大埠头,东至碧霞池的场地宜规划形成室外活态展示区,形成新的阳明广场。
面临那么多需要展现和表达的场景内容,我们通过时间和边界这两个构建元素进行归纳与区分;依据秩序感,方向性和中心点,这三个建构逻辑进行总图布局,或叫场景关联设计。
因此,本项目的展示或统领场地空间的主轴线,定义为自西向东的主轴线——即以伯府大埠头(遗址)为起点,以碧霞池(遗址)为中心,轴线北侧为自南向北由石门框展开的王阳明故居,轴线中间是饮酒亭南侧的碧霞池,两处遗址保留皆较完整。继续向东,我们将拟建的王阳明纪念馆放在轴线东端,并以置于阳明广场的王阳明雕像和衬于期后的王阳明纪念馆核心体量——心厅,作为轴线的收头。整个王阳明纪念馆以U型院落式围合中央圆形心厅,突显在心厅展示的心学成就作为纪念秩序的高潮点。
据此,完成了项目展示或统领场地空间的主轴线。
鉴于伯府大埠头已成遗址(无水面),而项目毗邻南侧吕府有一东西向贯穿通道,以西小河东岸河埠头为水路上岸起点,以大有弄石坊(拟遗构恢复)为入口标志,可一路向西,至东面规划的阳明故里文化主题街区。从而形成了项目实际意义上的东西行进流线——沿西小路河埠头,上岸,利用一老宅台门,经修复,作为项目游客中心,经大有弄石牌坊,进入阳明广场。左转往北是阳明故居的入口通道,右侧为“此心光明”的主题照壁,向东沿榆树林前行,北侧分别是碧霞池,王阳明雕塑和王阳明纪念馆的东西主轴线。继续向东可至规划的越城坊及阳明故里文化片区。
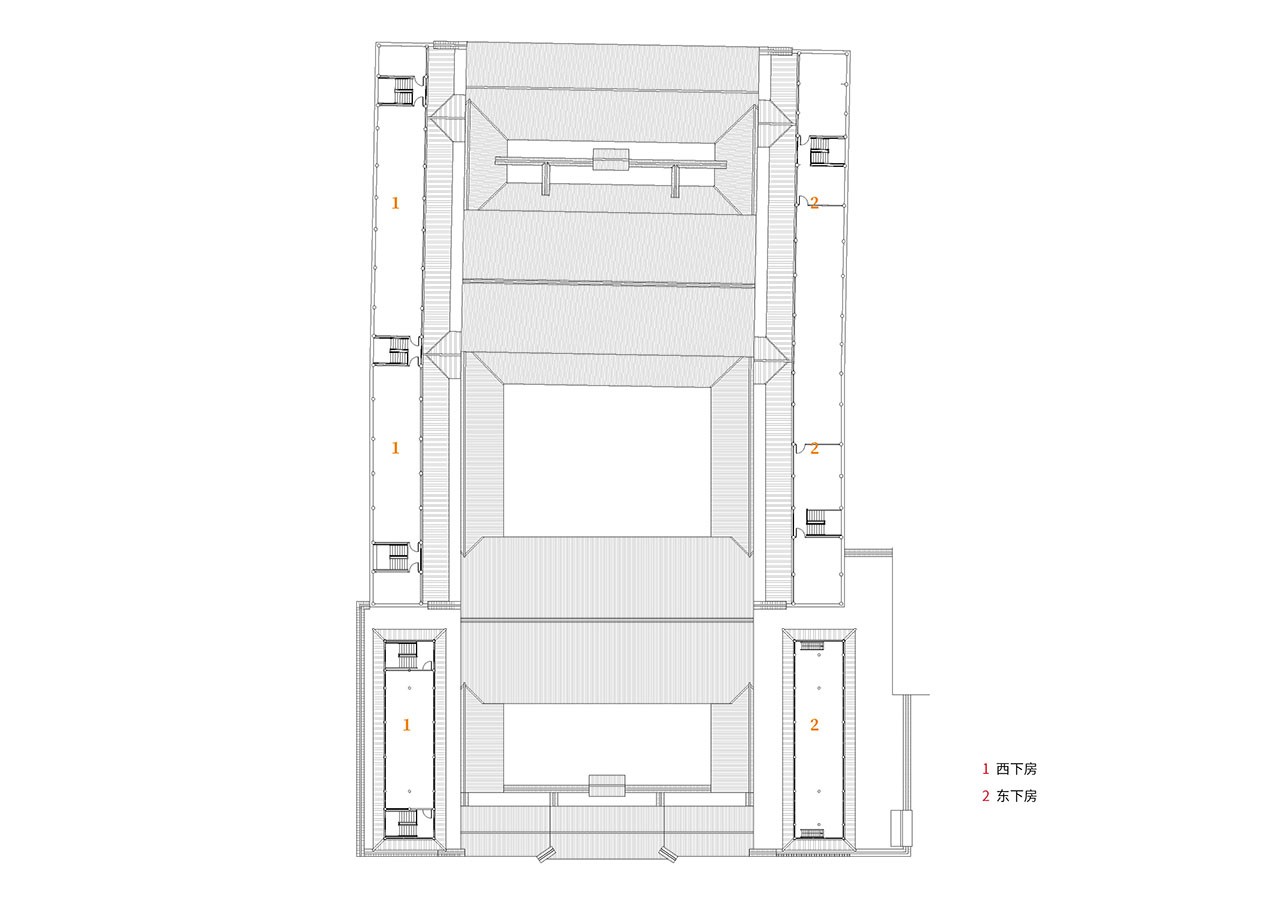
王阳明故居复建建筑遵循伯府原有格局,采用“一轴、四进、六重”的平面布置方式。建筑构造采用与历史遗存和文物推测相吻合的风貌复原;建筑在采用传统形式与构造手法的同时,兼顾现代功能与规范要求,考虑观赏、利用及消防疏散和安全救护等现代需求,源于传统,而优于传统。
纪念馆则是在尊重绍兴历史文化名城建筑风貌格局和形式控制前提下,通过独特的建筑造型(心厅)演绎了地方文化性,并将传统的建筑形式、装饰风格与当地文化、民风民俗有机结合,衔接了历史街区的风貌内涵、提升了项目纪念属性和文化品位。
设计方案突显了故居的主角地位,通过下沉庭院,将纪念馆入口引至地下一层,适度弱化了地面建筑的感受,强化遗存构件与复原建筑的场所与神圣感。纪念馆方形广场与圆形冥想厅组成了“合而不闭,虚而不空”的空间,三面白墙与柱廊则限定了围合的空间,留出的一面向碧霞池打开,呼应了场地,同时留给观者以想象的空间。
项目设计探索了现象集结与空间特性的建立,思考了场所意义与诗意力量的产生;从故居历史格局的追溯,到阳明广场的结构重塑与韵律形成;从圆的心厅的特性加强,到光与时间的永恒表达。试图探究纪念性建筑设计中,方向性与集中性是空间结构重塑的关键。原型的寻找,中心的衍生,场的建立,是在控制场所重建所必须确立的张力和态度。
项目名称:王阳明故居及纪念馆
项目地址: 浙江省绍兴市越城区上大路南
用地面积(平方米):18504.33
建筑面积(平方米):12909.34
设计机构:浙江大学建筑设计研究院+浙江省古建筑设计研究院
主创建筑师:胡慧峰、黄滋
建筑:胡慧峰、黄滋、刘杰、吕宁、曹晖、蒋兰兰、陈赟强、何川南、曹雪、王涛
结构:张杰、丁子文、何立宏、王忠明、马永华
给排水:易家松、张振宇、席斌、章玉华
暖通:潘大红、王亚林、黄云舟、徐瑞萍
电气:吴旭辉、张薇、钱坤、林立、洪娴
智能化:林华、叶敏捷、尚远卓
景观:吴维凌、章驰、吴敌、敖丹丹、朱靖、徐非同、曹晖、王茹悦
室内:张毅、许晓佳、王欢、葛鲁君、何川南
照明:王小冬、宋洛颖
幕墙:史炯炯、王建忠、苏泽奇
基坑围护:陈赟、韩嘉明、 杨勤锋
BIM设计:任伟、包青青、陈畅、张顺进、王启波、杜李兴、张恒达
EPC:房朝君、涂建锋、陈军、校战旗
展陈设计:南京百会装饰工程有限公司
委托方: 绍兴市文化旅游集团
施工方: 浙江环宇建工集团有限公司
合作方: 浙江省古建筑设计研究院
设计时间(起迄年月):2018.8-2020.9
建设时间(起迄年月):2020.10-2022.10
摄影师:赵强 贾方 吴清山

日常建造

TEMP

非常建筑

淀川建筑事务所

goa大象设计

Wutopia Lab

陶磊建筑事务所

Sasaki

正反设计

原作设计工作室

OPEN建筑事务所

三文建筑 – 何崴工作室

普罗建筑

dEEP Architects

第一实践建筑设计

waa未觉建筑

场域建筑事务所

如恩设计研究室

大舍建筑设计事务所

瑞拓设计

山水秀建筑事务所

深圳同济人建筑设计

汤桦建筑设计事务所

杭州慢珊瑚设计

加减智库设计事务所

朱小地建筑设计事务所

一树建筑工作室

严迅奇建筑师事务所

超城建筑事务所

迹·建筑事务所(TAO)

不也设计工作室

华建集团上海建筑设计研究院

HAS design and research

日兴设计

王冲工作室

Wutopia Lab

谱观建筑设计

如而建筑设计

泛式建筑事务所

FAX建筑事务所

水平线设计

布拉德建筑设计

SSAD建筑事务所

南沙原创建筑设计工作室

微介创意设计

岩川建筑

维度华伍德设计

闻非建筑设计

朴开十向设计事务所

后象设计师事务所

Wutopia Lab

深点设计PDD

众建筑

黄锋室内设计

山水秀建筑事务所

DA INTEGRATING

都市实践

本义建筑设计

WAY Studio

鳞见设计工作室

超然建筑工作室