“枢纽”来源于《文心雕龙·序志》“文之枢纽,亦云极矣。”——解释为其最重要的部分,事物互相联系的中心环节。武汉作为中国内陆最大的水陆空交通枢纽,素有“九省通衢”之称。不仅拥有浓厚的历史沉积,也拥有工业建设中快速的城市发展和变化。MAS在武汉一幢两层建筑内进行国内领先男装品牌GXG旗舰店的设计。
在武汉繁华活力的环境中,设计团队通过考察和游历获得了不同的体验和视角:日常生活的空间场景——武汉城:一个时间与空间相互穿插交织的枢纽,作为设计的主要来源。在秩序之中生长成一种体量策略,但同样也需要切割秩序,于街道之中形成一个新的公共领域和新型的商业空间。同时,思考多样材料与建筑结构,让新的干预希望在旧与新之间达到意想不到的状态。
外立面通过阵列的三个矩形方体,划开了原本模糊的店铺范围,赋予其流动的材质属性,是将时间融向空间的表达。同时,MAS在设计中依然推崇多行为及多需求的融合。通过研究人们社会行动中的复合时间及社会形态多样化下的复合场地和空间,将其进化与行为兼并后的新现象作为本次设计的核心。
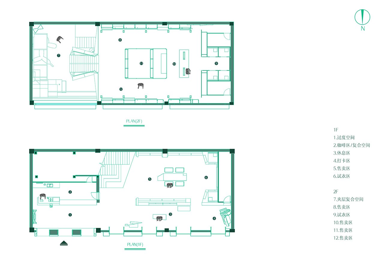
于一层入口处植入全新咖啡品牌Circle Center并向街道开放,以激活店铺与街道间的联系,作为品牌与城市、街道、人之间的连接端口。
设计过程中,团队忖量着未来概念,试图表达人们即将进入未来的时刻。一层空间停泊着一座“交通枢纽”,或许在将来,地球不再适宜人们的生存,这座枢纽便会带着希望的“潘多拉的种子”前往系外探索新的居所。枢纽舱外的“日晷”时间装置计数着这一时刻的到来,周围堆放的“生存物资”也整装待发。
一层至二层之间有一处缓冲区,是整体设计中的第二个复合空间,该自由空间提供着驻足、打卡、社交等功能。原建筑管道的穿梭与物资的堆叠共同创造出一个富有趣味性与忙碌感的场景。
建筑二层为未来枢纽核心区,整体以中轴线对称设计。阵列化的模块照明系统,逻辑化的地面分割结构,如置身于枢纽数据中心,或研究试验场。通过空间、产品及装置的交叠应用,为顾客提供极致的沉浸式体验。
时间造就了空间,而空间又承载着时间。将城市的气息融入设计,此座未来枢纽反之也会使人们解读自己和地球。当工业排放不断侵蚀着每一座钢筋水泥的丛林,日益饱和的地球生态危在旦夕,未来枢纽停留于此随时准备离开。此时,人们所能带走的是什么?最后会丢弃的又会是什么?
项目名称:GXG武汉旗舰店
项目地址:中国武汉
建筑面积:500㎡
空间及装置设计:MAS芒果建筑设计
主创设计:樊想
设计师:王佳鹏、魏星、薛金波、朱羽昕、赵紫薇
竣工日期:2022年8月
施工制作:武汉弘强汇装饰
道具制作:宁波今优的装饰
标识制作:宁波今优的装饰
灯光设计:荣熙照明
主要材料:不锈钢、石材
摄影:汪敏杰

好典空间设计

恺慕建筑设计

JANG studio

好典空间设计

苏州无外设计事务所

杭州水丁集设计事务所

一間白设计事务所

好典空间设计

间筑设计

睿璞设计事务所

W SELECT DESIGN

Some Thoughts空间设计

巢羽建筑设计事务所

异向计合生活方式设计研究所

Super Fan Interior Design

Super Fan Interior Design

深圳超级平常设计

Say Architects

山地土壤室内设计

芝作室

加减智库设计事务所

今朝风日好

有寻建筑设计事务所

西涛设计工作室

东仓建设

东仓建设

Kokaistudios

叶梹室内设计

联图建筑设计

肯斯尼恩设计

CUN寸DESIGN

睿集设计

治木设计

芝作室

如恩设计研究室

Francesc Rifé Studio

叶梹室内设计

帕姆建筑

B.L.U.E.建筑设计事务所

杜兹设计

图蓝空间设计

Studio 10

栋栖设计

iZ Design Studio

东仓建设

予野设计

苏格SG空间设计事务所

尚洋艺术

治木设计

杭州水丁集设计事务所

未来以北工作室

多么工作室

ICD明之顾问

Studio Profile

立品设计

多么工作室

泛域设计

waa未觉建筑

東木筑造设计事务所

東木筑造设计事务所

多么工作室

好典空间设计

空间站建筑师事务所