风格实穿、简单舒适、注重剪裁、小众、现代又不失女性化的服饰,正符合细分消费需求的服饰品牌。UTIEN团队将TSUEN服饰品牌观念融入其中打造空间。
多功能吧台,兼具水吧与收银功能。线条清朗利落,呼应饰品区体块组合设计。空间处理干净,明亮清澈,饱满。
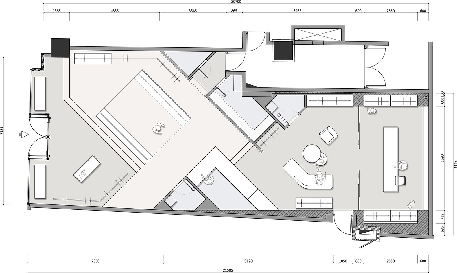
既要保证不同主题产品的陈列,又要满足消费者的视觉舒适愉悦,基于这两点的结合,简洁的设计和专业的功能分区相符共生,灰粉色地面叠加枫叶红色大理石,不同场景交错丰富、串联贯通,天性热情的珊瑚橘色在互动式空间里,引发触感与交流。
多元化思想文化、审美与空间设计碰撞交融,给这个春夏带来新的视觉体验,消费者为一件有设计感的衣服买单的意愿越来越强。颜值就是正义,好设计就是生产力。
项目名称:TSUEN设计师品牌集合店
项目地址:辽宁 沈阳
项目面积:185㎡
完成时间:2019年1月
设计公司:有田建筑空间设计有限公司
设计主创:田然
设计团队:常宁、李赛赛、解雅涵、杨兵冰
设计材料:大理石 不锈钢 玻璃
摄 影:图派影像 钟永刚

好典空间设计

恺慕建筑设计

JANG studio

芒果建筑设计

好典空间设计

苏州无外设计事务所

杭州水丁集设计事务所

一間白设计事务所

好典空间设计

间筑设计

睿璞设计事务所

W SELECT DESIGN

Some Thoughts空间设计

巢羽建筑设计事务所

异向计合生活方式设计研究所

Super Fan Interior Design

Super Fan Interior Design

深圳超级平常设计

Say Architects

山地土壤室内设计

芝作室

加减智库设计事务所

今朝风日好

有寻建筑设计事务所

西涛设计工作室

东仓建设

东仓建设

Kokaistudios

叶梹室内设计

联图建筑设计

肯斯尼恩设计

CUN寸DESIGN

睿集设计

治木设计

芝作室

如恩设计研究室

Francesc Rifé Studio

叶梹室内设计

帕姆建筑

B.L.U.E.建筑设计事务所

杜兹设计

图蓝空间设计

Studio 10

栋栖设计

iZ Design Studio

东仓建设

罗宇杰工作室

予野设计

苏格SG空间设计事务所

尚洋艺术

治木设计

杭州水丁集设计事务所

未来以北工作室

多么工作室

ICD明之顾问

Studio Profile

立品设计

多么工作室

泛域设计

waa未觉建筑

東木筑造设计事务所