TBC是一家位于天津武清区的沿街底商的买手店。面积为195㎡。在商店聚集的商圈里,如何体现品牌主理人的理念与品牌的调性成为这次设计的主要任务。
“任何问题都包含并暗示了自身的解答,要诀在于:功能创造并组织了自身的形式。”——《透明性》柯林·罗
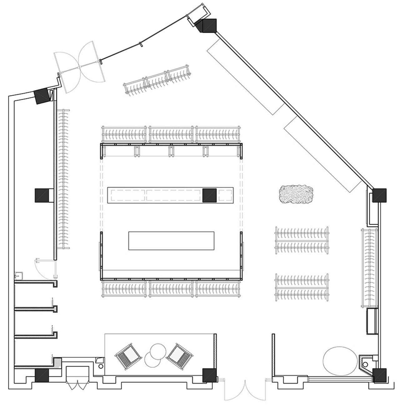
为了让空间更具趣味性,在最开始规划时我们研究了多种动线方式,最终空间是由前后两个动线交汇所组成,由场地中存在的结构柱为界,形成两大一小的“回”字行动线。为了延长客户的停留时间,我们在空间中置入了一个“房间”,利用盒子的形态来作为空间的主体。
原始、自然、舒适、不做作。是我们对这个空间的诉求。综合功能以及美观的需求,在材料的选择上我们尝试将经常应用在室外的材料引入室内,增加一种自然的感觉。在功能上阳光板这种半透明的材料可以将光线引入,并且分隔空间;在感受上,半透的材料给空间带来一种轻盈感,不会因为置入物而使得空间变得压抑和不透气;同时这种材料更加的经济。
在墙面材料和主体家具的选择上,我们选择了更清爽的桦木板。这种板材给人的感觉是原始的、不需要加多余的加工与修饰,这样给人一种亲切和舒适感,同时也给整个空间带来一些温暖的感觉。
主要展示衣架采用模块化的设计,这样衣架会拥有更加灵活的组合方式,根据需求可以调整位置长度与高度。
我们选择不对原始空间的天花以及相关电气的管线有任何的装饰以及遮盖,甚至保留了工人施工时的现场记录,保留一种原始性。这样就使空间体现了一些故事性,无形中记录了这个空间发生过什么,与人有一种微妙的隔空互动感。
项目名称:TBC买手店
项目地址:中国天津
建筑面积:195㎡
设计方:LLLOOK STUDIO
项目设计:韩路路
完成年份:2023
设计团队:韩路路、宁丰悦、张乐言
材料:阳光板、海洋板、水洗石、不锈钢
摄影版权:LLLOOK STUDIO

好典空间设计

恺慕建筑设计

JANG studio

芒果建筑设计

好典空间设计

苏州无外设计事务所

杭州水丁集设计事务所

一間白设计事务所

好典空间设计

间筑设计

睿璞设计事务所

W SELECT DESIGN

Some Thoughts空间设计

巢羽建筑设计事务所

异向计合生活方式设计研究所

Super Fan Interior Design

Super Fan Interior Design

深圳超级平常设计

山地土壤室内设计

芝作室

加减智库设计事务所

of gaaarden

有寻建筑设计事务所

西涛设计工作室

东仓建设

东仓建设

Kokaistudios

叶梹室内设计

联图建筑设计

肯斯尼恩设计

CUN寸DESIGN

睿集设计

治木设计

芝作室

如恩设计研究室

Francesc Rifé Studio

叶梹室内设计

帕姆建筑

B.L.U.E.建筑设计事务所

杜兹设计

图蓝空间设计

Studio 10

栋栖设计

iZ Design Studio

东仓建设

Aeonspan 设计事务所

of gaaarden

罗宇杰工作室

予野设计

苏格SG空间设计事务所

治木设计

杭州水丁集设计事务所

未来以北工作室

多么工作室

Studio Profile

立品设计

多么工作室

waa未觉建筑

東木筑造设计事务所

多么工作室

好典空间设计

空间站建筑师事务所