 
      
         
        身为建筑师,我们目睹新零售趋势下的商业空间层出不穷,三到五年的折旧周期导致产生巨量建筑垃圾;由于商铺道具普遍夸张的尺度、强烈的装饰感和聊胜于无的功能,使得它们无法融入其他空间加以重复利用。与此同时,可持续服装品牌klee klee的生活方式空间& friends店铺选址于一栋上世纪70年代工业遗存适应性利用改造建筑的一至二层。作为空间设计方,我们被品牌的长效设计主张所启发,在尊重场地自带的现代主义建筑氛围的同时,希望用少量、传统的建材和朴素、耐心的手法,最大限度地提升空间品质。
融于建筑本体的水洗石外墙、石灰基内墙,搭配土色系水磨石地面奠定空间基调;我们又上门回收了相识大理石工厂的加工废料,拼贴在一楼门厅,工业垃圾转身成为缤纷的迎客装饰。经过对建筑原状的考据,我们设计了与原初老钢窗模数相同的全新门窗系统,;为了规划空间的暖通机电设备,将它们含蓄地安置于不算富余的层高和裸顶中,我们采用铝合金拉伸网自制了符合klee klee调性的管线桥架与机电吊顶。除此之外,我们尝试了摈弃射灯的照明系统,启用玻璃日光灯和二手回收的70年代公建吸顶灯,利用老式陶瓷绕线端子将它们连通成画廊般的泛光矩阵;基础陶瓷灯座配以奶白龙珠灯泡,又是最经济实用的壁灯。逐渐被遗忘的长效工业品在此处汇聚成富有当代感的亲切氛围。
另一方面,我们力图以产品化的前期概念和精度标准,将追逐时效的“陈列道具”这一时装商业零售产物,打磨到可日常使用以至可贩售,成为同样长效的产品。于是,由功能主义生发而凝练耐看的比例结构主导了家具设计的推进,扎实耐用的金属与实木成为材料首选。
已成形的两组家具中,金属系列由角钢、氧化铝板和铝合金管材等现成工业型材组装而成,装配式折板工艺尽量避免了焊接、打磨等劳力密集工序,让原材采购和生产工序高度集约。待家具被废弃,所有主材和配件可轻松拆卸回收。木质系列家具的每一块部件,都是15cm或25cm统一宽度的加拿大枫木,数字来自原木常规大板尺寸。除必要的结构榫卯外,所有装饰性削切被取消,每一寸原材料都被尽量保留在成品中。
以上即借由此次空间设计项目,我们与klee klee共同探索的可持续理念商业空间解决方案。
项目名称:klee klee & friends
项目地址:上海市长宁区新华路街道上生新所园区
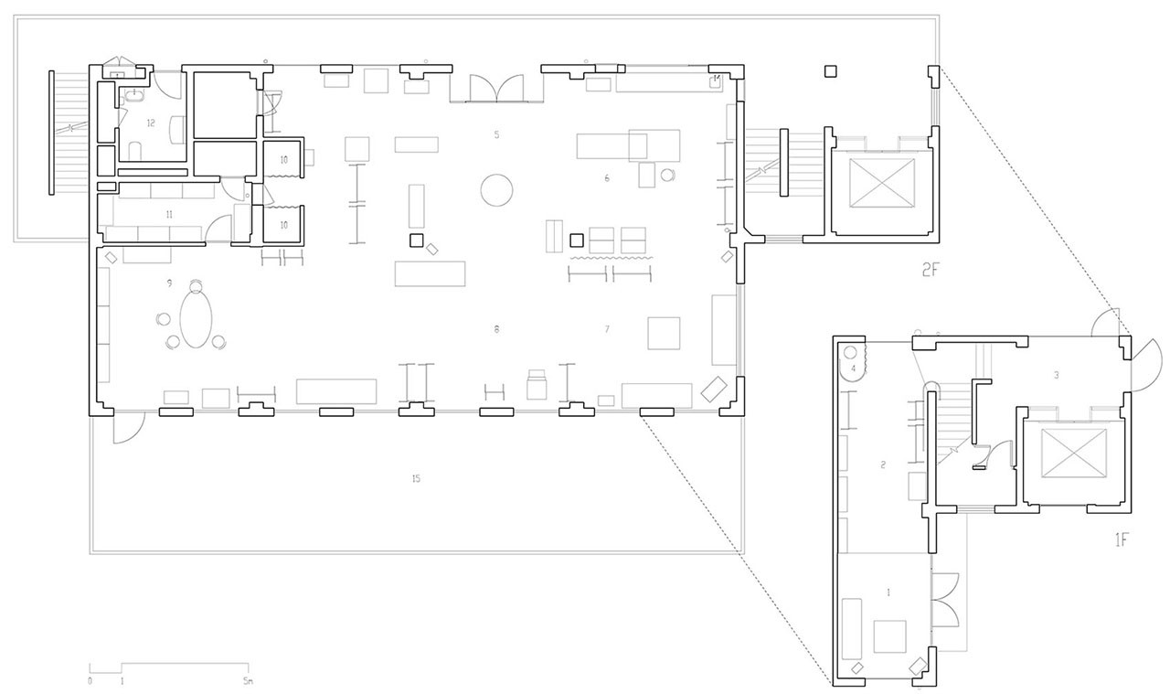
建筑面积:300㎡
项目类型:零售 – 室内/家具
客户:klee klee (素然集团旗下可持续服装品牌)
设计方:CASE PAVILION 案亭建筑设计事务所
项目设计:2021年9月 – 2022年2月
完成年份:2022年
设计团队:杨振宇, 严丹捷, 叶俊杰, 李宛儒
合作方:施工单位-EMCC结庐装饰, 景观设计-或然景观
材料:水洗石、大理石废料水磨石、铝合金拉伸网
摄影版权:朱润资, 张宏

好典空间设计

恺慕建筑设计

JANG studio

芒果建筑设计

好典空间设计

苏州无外设计事务所

杭州水丁集设计事务所

一間白设计事务所

好典空间设计

间筑设计

睿璞设计事务所

W SELECT DESIGN

Some Thoughts空间设计

巢羽建筑设计事务所

异向计合生活方式设计研究所

Super Fan Interior Design

Super Fan Interior Design

深圳超级平常设计

Say Architects

山地土壤室内设计

芝作室

加减智库设计事务所

今朝风日好

有寻建筑设计事务所

西涛设计工作室

东仓建设

东仓建设

Kokaistudios

叶梹室内设计

联图建筑设计

肯斯尼恩设计

CUN寸DESIGN

睿集设计

治木设计

芝作室

如恩设计研究室

Francesc Rifé Studio

叶梹室内设计

帕姆建筑

B.L.U.E.建筑设计事务所

杜兹设计

图蓝空间设计

Studio 10

栋栖设计

iZ Design Studio

东仓建设

未来以北工作室

多么工作室

ICD明之顾问

Studio Profile

立品设计

多么工作室

泛域设计

waa未觉建筑

東木筑造设计事务所

東木筑造设计事务所

多么工作室

好典空间设计

空间站建筑师事务所

白菜设计

東木筑造设计事务所

多么工作室

未来以北工作室

Studio Profile